
Flat for sale 3+kk • 98 m² without real estateLudwig-Feuerbach-Straße 43 Nürnberg Wöhrd Bayern 90489
Ludwig-Feuerbach-Straße 43 Nürnberg Wöhrd Bayern 90489Public transport 4 minutes of walkingThis bright and well-designed 3.5-room apartment with approximately 98 m² of living space is located on the 3rd floor of a well-maintained multi-family building in the popular Nuremberg district of Schoppershof. The apartment impresses with a generous floor plan, two bathrooms, and a living/dining area filled with plenty of natural light – ideal for couples, families, or investors. This is a private sale without any broker fees.
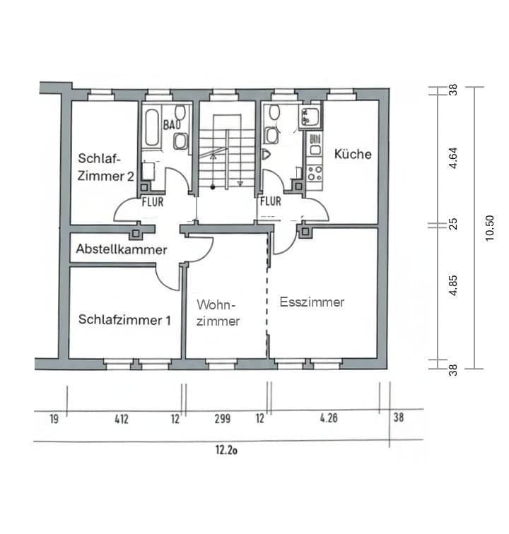
Amenities & Layout
• Spacious living and dining room
• Two bedrooms
• Kitchen with an adjoining bathroom renovated in 2018
• Second bathroom
• Wooden flooring
• New gas-fired boiler installed in 11/2018
• South-facing windows renewed in 2015, all equipped with shutters
• Private cellar compartment associated with the apartment
• Fitted kitchen with appliances
• Plans for a balcony extension are available
The apartment has been owner-occupied since 2016 and will be available from March 1, 2026.
Nuremberg-Schoppershof: Quiet, Central, and Excellently Connected
The Schoppershof district is one of the most sought-after residential areas east of Nuremberg’s old town. It combines a peaceful, green environment with excellent infrastructure and ideal connectivity.
Advantages of the Location:
• City Center Proximity: Approximately 10 minutes by bicycle or public transportation to Nuremberg’s city center
• Excellent Public Transport: Tram (Deichslerstraße) and subway (Rennweg) are accessible within minutes
• Close to Nature: Wöhrder See and expansive green areas such as the city park and Rechenbergpark are practically at your doorstep – perfect for walks, jogging, or relaxing by the water
• Shopping Facilities: Supermarkets, bakeries, pharmacies, and cafés are in the immediate vicinity
• Family-Friendly: Schools, daycares, and playgrounds are nearby. Fenitzerplatz, Mammutspielplatz, and AKI are just a stone’s throw away
• Medical Practice: The in-house doctor’s office directly opposite is easily accessible
• Popular Residential Area: Quiet side streets, a green surroundings, and a friendly neighborhood characterize Schoppershof
The combination of a central location, high quality of life, and excellent infrastructure makes this apartment extremely attractive both for owner-occupiers and for investors.
Property characteristics
| Age | Over 5050 years |
|---|---|
| Condition | Good |
| Floor | 3. floor out of 4 |
| Usable area | 98 m² |
| Available from | 01/03/2026 |
|---|---|
| Layout | 3+kk |
| Listing ID | 976708 |
| Price per unit | €4,071 / m2 |
What does this listing have to offer?
| MHD 4 minutes on foot |
What you will find nearby
Still looking for the right one?
Set up a watchdog. You will receive a summary of your customized offers 1 time a day by email. With the Premium profile, you have 5 watchdogs at your fingertips and when something comes up, they notify you immediately.













