
House for sale 5+1 • 140 m² without real estateHöhenkirchen-Siegertsbrunn Siegertsbrunn Bayern 85635
Beautiful, very bright semi-detached house with extremely high-quality fittings, 2 west-facing terraces with a large garden.
Living area: 140 m²
Usable area (basement): 64 m²
In the attic additionally: room under the sloping roof approx. 33 m²
Total: 237 m²
Plot size: 365 m²
Communal area (cooperative shares such as access roads, lawns, etc.): 90 m²
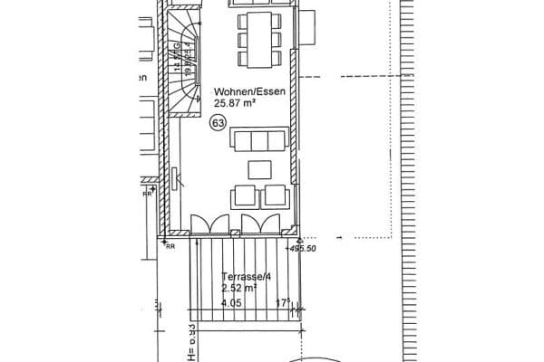
Ground Floor: Living room with fireplace, kitchen with fitted kitchen, dining room, 2 west terraces, 1 guest WC
First Floor: 3 bedrooms and a large bathroom with shower and bathtub as well as 2 washbasins
Attic: 1 fully developed studio, possibility for a 2nd bathroom (all connections already in place)
Basement: Heating room, hobby room (currently used as a home cinema), utility room, workshop room, storage room, pellet bunker
Garden + 2 terraces, 1 garage + 1 parking space in front
The municipality of Höhenkirchen-Siegertsbrunn is located about 17 km southeast of Munich.
Originally, both districts were independent until they were united in 1978.
Whether by car or public transport, you can reach Munich in about half an hour. The S-Bahn runs every 20 minutes here. In addition, the town offers numerous bus connections to various schools or neighboring communities.
The A8 motorway, and thus connecting motorways, can be reached in just a few minutes.
Everyday shops such as EDEKA and Penny, doctors, banks, post offices, restaurants, and cafés are sufficiently available in the town. Larger shopping trips can be made in the neighboring towns of Brunnthal or Ottobrunn. There, alongside stores like Ikea, Hagebau, Lidl, Aldi, and Metro, many other businesses from various sectors are represented. Families with children especially appreciate the excellent range of schools, kindergartens, nurseries, and clubs. In the town, one can attend an elementary school, a primary and secondary school, and a high school. A secondary school is located in nearby Neubiberg, with another planned to open in 2027 in the neighboring town of Hohenbrunn.
Infrastructure:
Pharmacy, discount grocery store, general practitioner, kindergarten, elementary school, secondary school, high school, comprehensive school, public transportation
The house was built in 2005. In 2013, an extension was planned and implemented, resulting in a beautiful, sunny dining room with its own west terrace. During this construction, high-quality maple parquet was installed throughout the ground and first floors in the living area, and tiles were laid in the entrance area and kitchen.
Also in 2013, the basement was developed and connected. In 2022, the attic was developed.
The heating system is a modern SOLVIS pellet heating system.
The house can be occupied without further construction work by agreement already in 2026. There is no backlog in maintenance or other work that would need to be carried out.
The house is offered to the buyer commission-free. We look forward to your inquiries.
We will be happy to send you an exposé with detailed plans/floor plans and the address.
Please check your spam folder regularly if you have sent us an inquiry, thank you.
Property characteristics
| Age | Over 5050 years |
|---|---|
| Layout | 5+1 |
| Usable area | 140 m² |
| Total floors | 2 |
| Condition | Very good |
|---|---|
| Listing ID | 1011452 |
| Land space | 365 m² |
| Price per unit | €9,392.86 / m2 |
What does this listing have to offer?
| Balcony | |
| Garage | |
| MHD 1 minute on foot |
| Basement | |
| Parking | |
| Terrace |
What you will find nearby
Still looking for the right one?
Set up a watchdog. You will receive a summary of your customized offers 1 time a day by email. With the Premium profile, you have 5 watchdogs at your fingertips and when something comes up, they notify you immediately.




































