
House for sale 5+1 • 173 m² without real estateOberhaching Oberhaching Bayern 82041
Oberhaching Oberhaching Bayern 82041Public transport 1 minute of walking • Parking • GarageConstructed in 2019, this modern corner house is located in the beautiful and quiet district of Deisenhofen in Oberhaching. The property offers high residential comfort, a well-thought-out layout, and a family-friendly environment, making it ideal for families. The house is in very well-maintained condition and is ready for immediate occupancy – no renovation or modernization work is required.
The house is part of a well-maintained, committed, and family-friendly townhouse complex. The neighborhood is characterized by families and distinguished by a very friendly, helpful community spirit.
The house includes an outdoor parking space with its own charging station for an electric car as well as an underground parking space (additional 27,000 EUR).
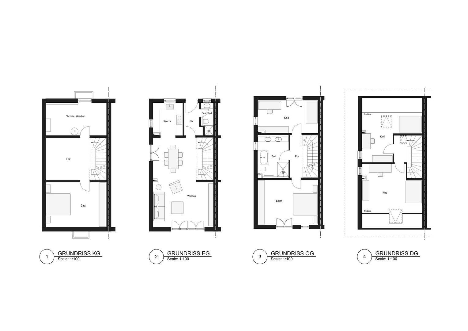
Thanks to its orientation and generous ceiling height of approximately 2.65 m, the house is exceptionally bright. The ground floor features a welcoming hallway with an adjacent shower room, equipped with a high-quality built-in washbasin and a level-access shower. The living and dining area is designed openly and generously. The modern, high-quality built-in kitchen is integrated into the open concept and is pleasantly bright thanks to two windows. In the living area, the preparation for a surround sound system is already in place.
From the living area, you can access the sunny southwest-facing terrace and the lovingly designed, established garden. This garden, featuring a garden house, sandbox, and ample space for grilling and playing, offers ideal conditions for families.
On the upper floor, there are two spacious bedrooms, one of which has access to a southwest-facing balcony. This floor is complemented by a roomy bathroom with a large level-access shower, a bathtub, two washbasins, and a high-quality, large built-in washbasin cabinet.
The finished attic provides two additional bright and well-proportioned rooms with generous ceiling heights that can be flexibly used as bedrooms, studies, or guest rooms. In one of the rooms, custom-made, high-quality built-in cupboards ensure optimal use of the sloped ceilings.
The basement rounds out the space with a large hobby room, a hallway with a high-quality built-in cupboard for extra storage, as well as a spacious laundry and heating room.
Kindergartens, a primary school, a secondary school, the new FOS Oberhaching (Oberhaching school campus), and shopping opportunities are all within walking distance. The high school and the middle/business school, as well as doctors, pharmacies, and additional shopping facilities, can be reached in a 5-minute drive. Bus stops are in the immediate vicinity, and the S-Bahn stations Furth and Deisenhofen are accessible by bus or a 5-minute drive.
Every full floor (including the basement) has a ceiling height of approximately 2.65 m.
Throughout the house, elegant oak parquet flooring has been installed; in the entrance area, bathrooms, and laundry room, high-quality porcelain stoneware has been used.
The house features several custom carpentry installations, including a high-quality built-in kitchen and additional built-ins in the basement, attic, and bathrooms.
Technically, the property is up to date and features underfloor heating on all floors, a low-maintenance district heating system (geothermal), a fresh water decalcification system, and a balcony power plant.
The parking space comes with its own charging station for an electric car.
Property characteristics
| Age | Over 5050 years |
|---|---|
| Condition | Very good |
| Listing ID | 1005156 |
| Usable area | 173 m² |
| Total floors | 3 |
| Available from | 05/04/2026 |
|---|---|
| Layout | 5+1 |
| EPC | A - Extremely economical |
| Land space | 325 m² |
| Price per unit | €8,035 / m2 |
What does this listing have to offer?
| Balcony | |
| Garage | |
| MHD 1 minute on foot |
| Basement | |
| Parking | |
| Terrace |
What you will find nearby
Still looking for the right one?
Set up a watchdog. You will receive a summary of your customized offers 1 time a day by email. With the Premium profile, you have 5 watchdogs at your fingertips and when something comes up, they notify you immediately.















