
House for sale 6+1 • 150 m² without real estateHändelstr. 1 Feldkirchen Feldkirchen Bayern 85622
Händelstr. 1 Feldkirchen Feldkirchen Bayern 85622Public transport 1 minute of walking • GarageA very well-maintained end-of-row house in the best residential area of Feldkirchen, located directly on the green belt and with an ideal south-facing orientation.
The house offers:
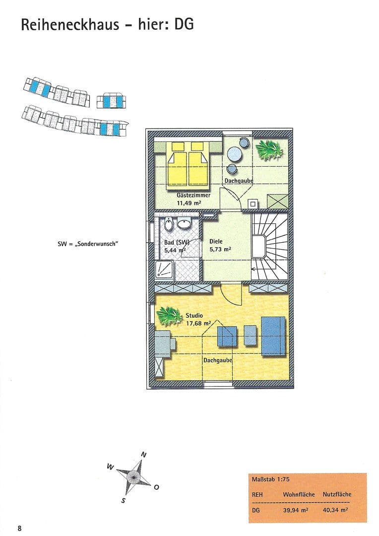
• 5 full-sized bedrooms
• 3 daylight bathrooms
• a large hobby room
• a south garden with outdoor access
• a separate kitchen with a dining area
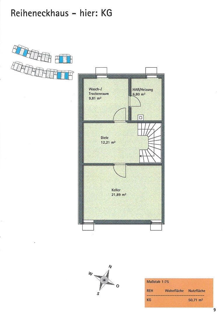
• a laundry/drying room and storage room in the basement
• a single garage plus 1 outdoor parking space (storage space) right at the house; optionally, an additional underground parking space can be purchased for EUR 23,500 (approximately 80 m away)
• modern energy and building technology (solar thermal system, condensing gas boiler installed in 2020, air conditioning, fiber-optic connection, balcony power plant).
Perfect for families who need plenty of space and a quiet, safe environment.
The family-friendly town of Feldkirchen is one of the most desirable residential and commercial locations in eastern Munich.
The community combines excellent transportation links with a high quality of life and immediate proximity to important economic and leisure hubs. Feldkirchen is still in the M-zone.
Optimal transportation connectivity: Feldkirchen is located directly on the A94 and A99 highways, providing quick access to the entire Munich area as well as to the wider motorway network – ideal for commuters in every direction.
The S-Bahn line S2 connects the town with central Munich at short intervals (Ostbahnhof approximately 10 minutes, Marienplatz approximately 15 minutes).
The U-Bahn station Messestadt Ost (U2) is reachable in about 10 minutes by bike or bus – ideal for commuters and trade fair visitors.
Munich Airport is accessible by car or public transport in about 30 minutes.
Close to trade fairs and the Riem Arcaden: Messe München is virtually on your doorstep, making Feldkirchen an attractive location for international companies and visitors.
The Riem Arcaden offer a wide range of shopping, dining, and services, and can be reached within a few minutes.
Family-friendly infrastructure: Feldkirchen has a broad range of nurseries, kindergartens, after-school care, lunch care, and schools. The town is known for its family-friendly approach, short distances, and modern childcare facilities.
Doctors can be found in Feldkirchen as well as in the nearby towns of Riem, Haar, and Heimstetten.
Perfect for everyone: The recreational area Heimstettener See is one of the most popular local leisure destinations in eastern Munich – ideal for swimming, walking, and relaxing.
The leisure options are complemented by the nearby Riemer Park with its lake, the Kirchheim/Heimstetten landscape park, sports facilities, clubs, expansive green spaces, and even the Aschheim water ski park.
The house is located in a traffic-calmed zone, where children can safely play outside and explore nearby playgrounds.
Barrier-free adaptations are possible. There are no steps at the entrance or leading into the garden.
• Very good thermal insulation and correspondingly low operating costs
• Solar thermal system to support hot water (retrofitted in 2020)
• Modern and energy-efficient condensing gas boiler (installed in 2020)
• Possibility to install a heat pump in the medium term (feel free to check with the neighbors)
• Air conditioning in the attic
• Balcony power plant for generating your own electricity
• The attic was later converted into a storage room (with a false ceiling, drywall, and laminate floor – not included in the living area calculation)
• Fiber-optic connection (up to 1,000 Mbit/s)
Flooring:
Parquet on the ground floor and first floor, laminate in the attic, tiles in the basement, bathrooms, kitchen, and ground floor hallway.
Quality of life and economic strength: With a mix of peaceful residential areas, good local supply, and numerous companies, Feldkirchen offers an attractive environment for families, commuters, and investors.
The combination of urban proximity, modern infrastructure, and a nature-friendly environment makes the town one of the most sought-after locations in the surrounding area.
Infrastructure: There is a supermarket, restaurant, kindergarten/daycare center, bus stops, a public playground and a soccer field within a 250 m radius; the S-Bahn is 650 m away (M-zone), the U-Bahn is 3.5 km away, express bus X202 is 500 m away (serving Haar, Garching/U-Bahn, Unterschleißheim), a bathing lake with a beer garden is 1.2 km away via a cycle path, Riemer Park is 3.5 km away (featuring a landscape park and bathing lake), and the Riem Arkaden are 4.5 km away. There is also very good access to the airport by car and public transport.
Additionally, there is a pharmacy and a dentist 750 m away, a general practitioner 1 km away, further childcare centers in town, an elementary school 600 m away, after-school care 400 m away, the Aschheim school center 1.9 km away (comprising a secondary school and high school), and an elementary/middle school and high school in Kirchheim 3.5 km away.
The property is being sold commission-free directly by the original owner, who possesses detailed knowledge of the property.
The specific process of the sale will be determined during communications with interested parties.
Available by arrangement (at the earliest from May 1, 2026).
Broker inquiries are not wanted! According to § 7 UWG, unsolicited contact by brokers without the explicit consent of the recipient is prohibited!
Property characteristics
| Age | Over 5050 years |
|---|---|
| Condition | Good |
| Listing ID | 1006997 |
| Usable area | 150 m² |
| Total floors | 4 |
| Available from | 01/05/2026 |
|---|---|
| Layout | 6+1 |
| EPC | A - Extremely economical |
| Land space | 207 m² |
| Price per unit | €7,300 / m2 |
What does this listing have to offer?
| Balcony | |
| Garage | |
| Terrace |
| Basement | |
| MHD 1 minute on foot |
What you will find nearby
Still looking for the right one?
Set up a watchdog. You will receive a summary of your customized offers 1 time a day by email. With the Premium profile, you have 5 watchdogs at your fingertips and when something comes up, they notify you immediately.







































