
Flat for sale 2+kk • 65 m² without real estateTorstraße 220b Berlin Mitte Berlin 10115
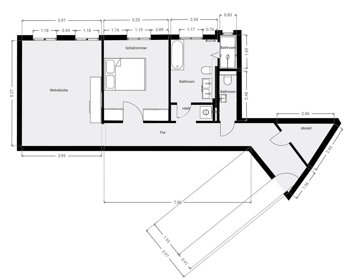
This exceptionally high-quality, fully renovated period apartment is located on the second floor of a listed Gründerzeit building from 1900 on Torstraße in Berlin-Mitte. The apartment immediately impresses with its spectacular ceiling height of approximately 360 cm and the restored historical stucco, which lends the property a distinctive sense of spaciousness and elegance. On approximately 65 m², a modern living concept has been implemented that combines the charm of an old building with contemporary design. The newly laid herringbone oak parquet floor provides warmth and a high-quality atmosphere. From the entrance hall, all rooms are perfectly arranged: first, a practical storage room, followed by a stylish guest WC with designer wallpaper. Next, you reach the utility room with an integrated washing machine connection and plenty of storage space. The large bathroom is an absolute highlight of the apartment. Handmade cement tiles, high-quality wall ceramics, a Duravit washbasin unit, black fixtures from Steinberg, and an inset shower area beneath a restored brick arch create an exclusive, hotel-like ambiance. The bathtub and spacious shower are harmoniously designed as a whole. The quiet bedroom, with its high windows and stucco ceiling, offers a pleasant retreat atmosphere. At the end of the hall, the light-flooded living and kitchen area opens up, impressing with its generous ceiling height and view over the courtyard. The displayed kitchen is part of a professional home staging and is used for better spatial illustration; all connections for an individual kitchen solution are prepared. The shown furniture and accessories are not included in the purchase price but can be acquired separately upon request.
A new gas-fired apartment heating system, high-quality brand products, and a coherent overall concept complete this unique property.
This apartment is the perfect choice for buyers seeking design, high-quality renovation, and authentic period building charm in the heart of Berlin.
The apartment is located in an absolutely prime area of Berlin-Mitte, right on the famous Torstraße – one of the liveliest and most sought-after hotspots in the capital. Few streets embody modern, creative, and international Berlin as much as Torstraße: here, scene, gastronomy, design, architecture, and urban lifestyle converge.
In the immediate surroundings, trendy cafés, high-end restaurants, bars, concept stores, galleries, and small boutiques – everything that characterizes Berlin-Mitte today – can be found. The environment is marked by historic old buildings, contemporary architecture, and a unique cultural diversity. The transportation connections are excellent: several tram and subway lines (including U8, U2, U6, as well as various tram lines) are accessible within minutes on foot. Through Alexanderplatz, Rosenthaler Platz, or Hackescher Markt, all of the city’s main hubs can be reached in no time. At the same time, quiet side streets, landscaped inner courtyards, and numerous small parks in the area offer pleasant retreats from urban life. Torstraße is one of the streets that has seen enormous appreciation in recent years and today is considered a premium location for condominiums – both for owner-occupiers and investors. In short: one of the most desirable, pulsating, and value-retaining locations in Berlin – urban, authentic, central, and full of character.
• Complete renovation in 2025 – first occupancy after renovation
• Impressive ceiling height of approximately 360 cm with restored stucco elements
• Newly laid herringbone oak parquet (PARAT, natural oil/wax)
• High-quality gas-fired apartment heating system (new 2025)
• Listed Gründerzeit building from 1890 (ensemble protection)
• Large designer bathroom featuring:
– Handmade cement tiles
– “Lume Bone Lux” wall tiles
– Duravit Qatego washbasin unit
– Black Steinberg fixtures
– Bathtub & spacious shower
– Inset shower area under a historic brick arch
• Separate guest toilet with high-quality designer wallpaper by Hooked on Walls
• Utility room (HWR) with washing machine connection & storage space
• Modern new electrical installations & new light spots
• High-quality wooden doors with black fittings
• Practical storage room right by the entrance
• Open living and kitchen area facing the courtyard
• Displayed kitchen is home-staging – connections for a fitted kitchen are available
• All furniture, lamps & decorations are not included in the purchase price but can be acquired separately upon request
• Quiet bedroom with stucco, high windows & an elegant atmosphere
• Basement storage compartment available
• Bicycle parking in the inner courtyard
• Particularly sought-after location on the famous Torstraße – right in the heart of Berlin-Mitte
Has this offer caught your interest?
Then we look forward to your inquiry. Please use the contact form for this purpose or call us directly if you would like further information or to arrange a viewing appointment.
This offer is made directly by the owner and is commission-free.
All information has been compiled to the best of our knowledge. However, we cannot guarantee the completeness, accuracy, or timeliness of the information.
Property characteristics
| Age | Over 5050 years |
|---|---|
| Condition | After reconstruction |
| Floor | 2. floor out of 5 |
| EPC | D - Less economical |
| Price per unit | €8,077 / m2 |
| Available from | 04/04/2026 |
|---|---|
| Layout | 2+kk |
| Listing ID | 1008752 |
| Usable area | 65 m² |
What does this listing have to offer?
| Basement |
| MHD 2 minutes on foot |
What you will find nearby

Flat for saleColbestrasse 22 Berlin Friedrichshain Friedrichshain Berlin 10247- 2+kk
- 86 m²
€605,000 + €350



Still looking for the right one?
Set up a watchdog. You will receive a summary of your customized offers 1 time a day by email. With the Premium profile, you have 5 watchdogs at your fingertips and when something comes up, they notify you immediately.

















