
Flat for sale 3+1 • 63 m² without real estateSchaffhauser Str. 12 München Fürstenried Bayern 81476
This charming and modernized 3-room ground-floor apartment is located in a well-maintained multi-family house at Schaffhauser Straße 12, 81476 Munich – in a quiet residential area with good infrastructure and immediate proximity to nature.
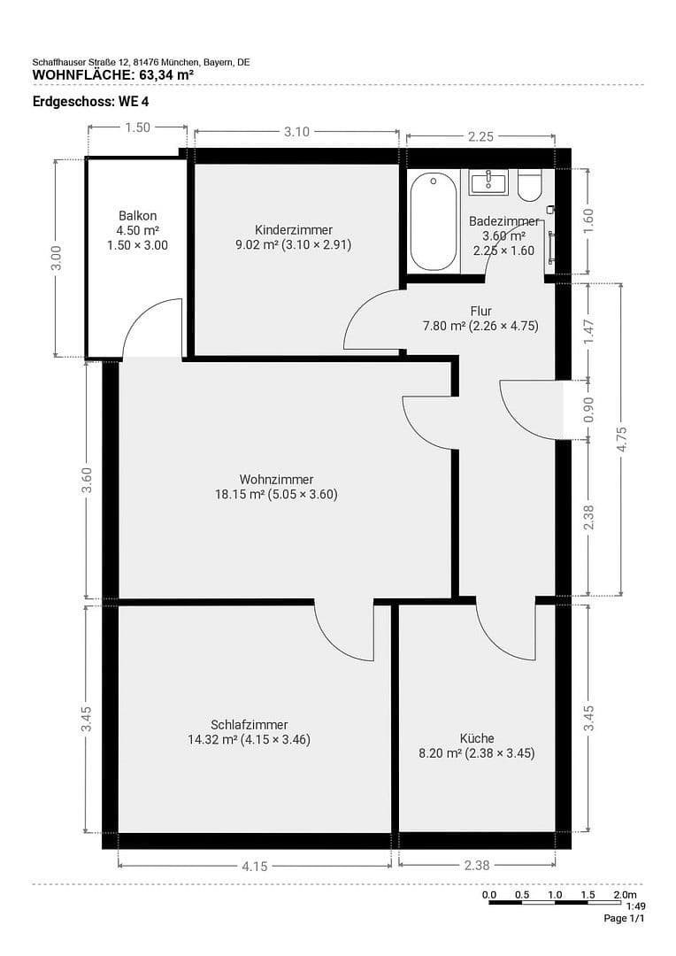
The functional floor plan impresses with its well-thought-out division of space:
- The bright living room with a large window offers a lovely view of greenery and direct access to the covered west loggia, ideal for relaxed evenings.
- The bedroom (approx. 14 m²) is easily furnished and offers space for a double bed and a wardrobe.
- The second room can be used flexibly as a children's room, an office, or a guest room – with a beautiful view of greenery.
- The separate eat-in kitchen provides ample space for your desired kitchen and features a practical washing machine connection.
- The modern daylight bathroom is equipped with large-format tiles, a bathtub with a glass shower partition, a wall-hung WC, and a new washbasin with a mirror.
- High-quality solid wood parquet in all living areas gives the apartment a warm atmosphere.
- The apartment has been comprehensively renovated – with a new bathroom, modern electrical installations, new doors, and a fresh coat of paint – and is ready for immediate occupancy.
- The barrier-reduced ground-floor location makes the apartment ideal for seniors, families with strollers, or anyone who appreciates short distances.
The apartment is situated in the quiet and green district of Fürstenried-West, which impresses with excellent infrastructure and recreational quality. All daily necessities as well as public transportation are located in the immediate vicinity.
Key location advantages at a glance:
- U-Bahn line U3 (Forstenrieder Allee) – approx. a 5-minute walk away, with direct access to the city center
- Shopping opportunities, supermarkets, pharmacies, and restaurants in the immediate surroundings
- Kindergartens, schools, and sports facilities conveniently reachable on foot
- Direct connection to the A95 (Munich – Garmisch-Partenkirchen) – ideal for commuters or weekend trips towards the Alps
- Green recreational areas: Südpark (Sendlinger Park) and Forstenrieder Park invite you for walks and sports activities
- Bright living room with access to the loggia
- Separate kitchen with a window and washing machine connection
- Daylight bathroom with bathtub, shower partition, WC, and washbasin
- Solid wood parquet in all living areas
- Freshly renovated: bathroom, new electrical installations, new doors, freshly painted
- Barrier-reduced ground-floor location
- Heating via environmentally friendly district heating – reliable & efficient
- Energy consumption: 123.6 kWh/(m²·a), energy efficiency class D (energy certificate, valid until 2028)
- Convenient washing machine connection available in the kitchen
- Private basement storage compartment for additional storage
- Shared green areas for communal use – ideal for relaxing or for children
- No inquiries from brokers!
Property characteristics
| Age | Over 5050 years |
|---|---|
| Condition | After reconstruction |
| Listing ID | 986635 |
| Price per unit | €6,476 / m2 |
| Available from | 01/02/2026 |
|---|---|
| Layout | 3+1 |
| Usable area | 63 m² |
What does this listing have to offer?
| Balcony | |
| Lift |
| Basement | |
| MHD 7 minutes on foot |
What you will find nearby
Still looking for the right one?
Set up a watchdog. You will receive a summary of your customized offers 1 time a day by email. With the Premium profile, you have 5 watchdogs at your fingertips and when something comes up, they notify you immediately.




















