
Flat for sale 3+kk • 56 m² without real estateVratislavská, Prague - Bohnice
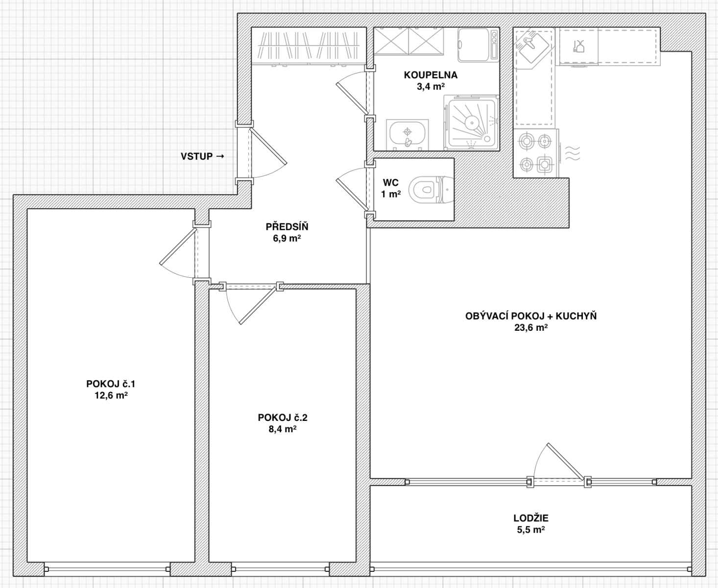
Vratislavská, Prague - BohnicePartially equipped • Lift • Cellar 2 m² • Loggia 5.5 m²Nabízím k prodeji světlý byt v osobním vlastnictví 3+kk o celkové ploše 56 m² s lodžií 5,5 m² a sklepem 2 m², celkem 63,5 m². Byt je umístěný v sedmém podlaží panelového domu v klidné ulici Vratislavská, Praha 8 – Bohnice.
Bohnice jsou oblíbenou lokalitou s výbornou občanskou vybaveností i dopravní dostupností. V docházkové vzdálenosti jsou obchody, služby, lékaři i školy a školky. Krátkou procházkou se ocitnete na stezkách Bohnického údolí, Draháňského údolí a na vyhlídkách směřujících nad Vltavu. O kousek dál začíná ZOO, botanická zahrada, Troja, Čimický háj, aquacentrum Šutka a množství sportovišť, která celou lokalitu dělají ještě příjemnější pro život. Zastávka autobusu je přímo u domu – do 10 minut na metro Kobylisy a parkování v okolí je bez modrých zón.
Byt je orientovaný na západ s širokým výhledem a krásnými západy slunce. Dispozice bytu je řešená velmi prakticky, kdy je společenská zóna (tvořená velkým obývacím pokojem a kuchyňským koutem) oddělena vstupní předsíní od klidové zóny, tedy od dvou neprůchozích pokojů. I ten menší z pokojů pojme vše potřebné – postel, noční stolek i malou skříň, případně může sloužit jako pracovna. Druhý pokoj je ještě větší a více flexibilní. Kuchyň je rohová, s vestavěnou myčkou a horkovzdušnou troubou. Koupelna je moderní se sprchovým koutem a pračkou, toaleta je samostatná a má bidetovou spršku. V praktické vstupní předsíni se nachází velká šatní skříň a je zde prostor na botník i věšáky. Další úložné prostory pak nabízí sklepní kóje o velikosti cca 2 m² v suterénu domu, která je součástí jednotky.
Měsíční zálohy na bydlení dle předpisu SVJ pro 2 osoby jsou 4 004 Kč (z toho fond oprav 899 Kč), elektřina cca 1 200 Kč dle spotřeby. Vodu zajišťuje dálkový vodovod a topení je ústřední dálkové, což přispívá k nízkým provozním nákladům. SVJ funguje velmi dobře, nesplácí žádný úvěr a pravidelně hospodaří s přebytkem. Celý dům je v pěkném stavu po rekonstrukci (zateplení, stoupačky, společné prostory) bez nutnosti dalších větších investic.
Byt je vhodný pro páry i rodiny, s výborně fungující polohou, veškerými službami na dosah a klidným okolím plným zeleně.
Pro bližší informace či domluvení prohlídky mě neváhejte kontaktovat skrz zprávy prostřednictvím komunikační platformy.
Property characteristics
| Available from | 15/01/2026 |
|---|---|
| Building construction | Precast concrete |
| Fully furnished | Partly |
| Listing ID | 981586 |
| EPC | D - Less economical |
| Usable area | 56 m² |
| Condition | Very good |
|---|---|
| Layout | 3+kk |
| Floor | 7. floor out of 17 |
| Ownership | Personal |
| Location | Quiet area |
| Price per unit | CZK 133,750 / m2 |
Are you choosing a apartment?
Make sure you have all the important information!
What does this listing have to offer?
| Basement: 2 m² | |
| Loggia balcony: 5.5 m² |
| Lift |
What you will find nearby
Still looking for the right one?
Set up a watchdog. You will receive a summary of your customized offers 1 time a day by email. With the Premium profile, you have 5 watchdogs at your fingertips and when something comes up, they notify you immediately.























