
Flat for sale 2 bedroom • 55 m² without real estateArndtstrasse 50 Längenfeldgasse 7 Wien 12. Bezirk Wien 1120
Below is the complete translation of the text within the tag into English:
Private Sale – No Real Estate Agent Commission
The furniture shown in the photos is for staging purposes only and is not part of the sale.
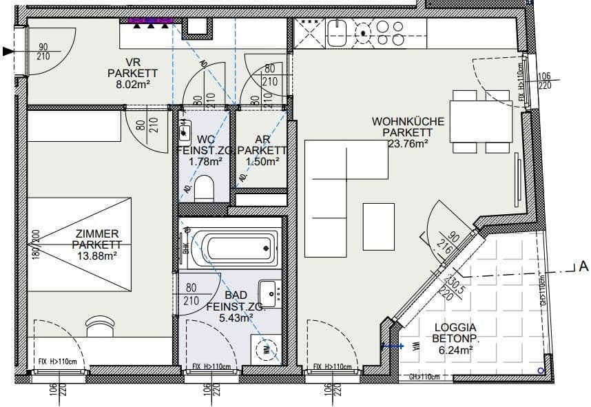
The approximately 54.37 m² 2-room apartment (which consists of 1 bedroom and 1 combined kitchen/living area) with an approximately 6.24 m² loggia is located on the 5th floor (with elevator) of a new building near the U4/U6 Längenfeldgasse station in Vienna’s 12th district (Meidling).
Ideal for owner-occupiers or as a rental investment, with the possibility of setting up two home office workstations.
Apartment Layout (approx. 54.37 m² living space):
• Entrance hall and corridor (ceiling height approx. 2.20 m)
• Bedroom (ceiling height approx. 2.52 m)
• Bathroom with shower-bathtub combination (ceiling height approx. 2.20 m)
• Separate WC (ceiling height approx. 2.20 m)
• Storage room (ceiling height approx. 2.20 m)
• Open-plan living kitchen (ceiling height approx. 2.52 m)
Extra:
• Loggia approx. 6.24 m² with a new outdoor furniture set (optional purchase)
The apartment also includes:
• A separate basement storage unit (approx. 1.37 m²) with heavy-duty corner shelving (optional purchase)
• A car parking space in the building’s underground garage (upper spot on a car lift), included in the price (value: EUR 30,000)
Monthly Operating Costs: EUR 151.79
Operating Costs for the Parking Space: EUR 14.56
If you would like further information or arrange a viewing, please contact me (available by phone Monday–Sunday, 9:00 a.m. – 8:00 p.m.). Please note that inquiries or appointment arrangements by real estate agents are not desired.
─────────────────────────────
Infrastructure (within walking distance):
• Bipa, Penny – 1-minute walk
• Kindergarten – 1-minute walk
• Adult Education Center (VHS Meidling) – 2-minute walk
• Primary School – 3-minute walk
• Pharmacy, General Practitioner – 4-minute walk
• Billa – 4-minute walk
• Hofer – 6-minute walk
• Interspar – 7-minute walk
• Diefenbach-Gymnasium – 7-minute walk
• Secondary School – 8-minute walk
• Meidling Market – 8-minute walk
• Theresienbad (swimming pool) – 12-minute walk
• Fitness Studio (well-known chain) – 13-minute walk
Public Transport Connections:
• Bus: 12A at Arndtstraße – 1-minute walk
• Underground: U4/U6 Längenfeldgasse – 4-minute walk
• Tram: Lines 6 and 18 at Margaretengürtel or Arbeitergasse/Gürtel – 11-minute walk
─────────────────────────────
Apartment Features:
• Located on the 5th floor with elevator
• New, high-quality fitted kitchen
Kitchen Equipment:
• Neff built-in refrigerator–freezer combination (No Frost)
• Miele XXL dishwasher
• Falmec extractor hood with LED lighting
• Neff Domino Flex induction cooktop
• Neff built-in microwave (door hinges on the right)
• Neff built-in oven with retractable door, integrated convection air fryer, and pyrolytic self-cleaning function
• Dimmable LED under-cabinet lighting with touch control
For the kitchen and appliances, multi-year warranties are in place. Operating manuals and the original lacquer used on the kitchen fronts are available.
Bathroom:
• Equipped with high-quality sanitary fixtures, including an approximately 190 cm sanitary acrylic shower–bathtub with a tiled shelf/seat, a sink with faucet, a mirror, connections for a washing machine/dryer, a ventilation fan with a humidity sensor, and an electric towel radiator.
WC:
• Deep-flush toilet with additional wall tiling on the sink side, including a mirror and washbasin unit, as well as an exhaust fan with delayed shutdown.
Flooring:
• Oak parquet floors in the rooms; tiled floors in the bathroom and WC.
Windows:
• Plastic–aluminum windows.
Sun Protection:
• External sunshade with remote control.
Heating:
• Underfloor heating (district heating)
• Installation of air conditioning units is possible.
─────────────────────────────
Building Details:
• New construction (year built: 2024)
• Energy Performance Certificate: HWB Ref SK – Energy Class B, fGEE SK – Energy Class A, valid until 26 August 2031
• Video intercom system including a smartphone app
• Mailbox system with parcel box and app connection
• A children’s and youth playroom/communal room with a kitchen, WC, and a sports area (equipped with wall bars and gym mats) is available to residents
• Bicycle storage in the garage
• Barrier-free access
Property characteristics
| Age | Over 5050 years |
|---|---|
| Condition | Very good |
| Floor | 5. floor |
| EPC | B - Very economical |
| Price per unit | €9,073 / m2 |
| Available from | 20/12/2025 |
|---|---|
| Layout | 2 bedroom |
| Listing ID | 974622 |
| Usable area | 55 m² |
What does this listing have to offer?
| Balcony | |
| Garage | |
| MHD 0 minutes on foot |
| Basement | |
| Lift |
What you will find nearby
Still looking for the right one?
Set up a watchdog. You will receive a summary of your customized offers 1 time a day by email. With the Premium profile, you have 5 watchdogs at your fingertips and when something comes up, they notify you immediately.
















