
Flat for sale 3+1 • 78 m² without real estate, Schleswig-Holstein
, Schleswig-HolsteinPublic transport 2 minutes of walking • Lift • GarageThe offered property is located on the 3rd upper floor/attic of a very well-maintained residential and commercial building. An elevator takes you directly from the basement or ground floor right to the apartment door.
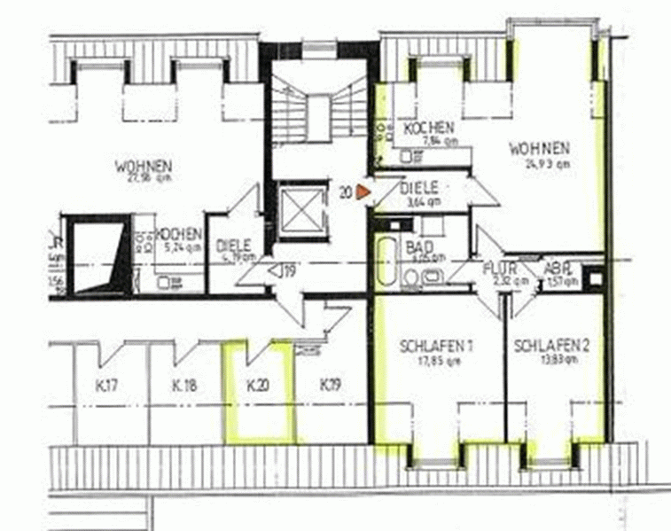
The entire living area of the three-room apartment is approximately 78 m². The living room and kitchen are separated by a glass wall (with door), which gives the space more light and a sense of openness.
In addition, the apartment features two bedrooms, a spacious storage room within the apartment, as well as a large storage room with an electrical connection directly next to the apartment. An underground parking space, including a remote control for the rolling gate, is included in the price.
The apartment can also be used as an office.
The offered condominium is located in the central residential area of the town of Ahrensburg. All shopping facilities are conveniently within walking distance. In the center of the town you will find, besides numerous boutiques and retail stores, a well-stocked department store—the City Center Ahrensburg (CCA), various doctors and banks, as well as many cafés and restaurants.
In terms of infrastructure, the apartment is very well situated. The A1 motorway between Hamburg and Lübeck is quickly reached, so that you can reach central Hamburg within 30 minutes by car. A bus stop is located right next to the property. The Regionalbahn station in Ahrensburg is reachable in just a few minutes by bus or on foot. From there, downtown Hamburg can be comfortably reached in 15 to 23 minutes.
For individual leisure activities, there is plenty on offer; the range of sports facilities is diverse and quickly accessible.
The living/dining area as well as the hallway are timelessly tiled in white, while the bedroom and children's room have laminate flooring. The kitchen is equipped with granite countertops (natural stone) and high-quality Bosch appliances, including a dishwasher. The oven is combined with a microwave.
The bathroom is white-tiled, features a bathtub, and has a connection for a washing machine. In addition, there is an extra water connection available to easily retrofit the toilet with a “bidet shower.”
The windows in the kitchen and one of the bedrooms have high-quality, custom-made blinds.
The apartment’s entrance door is additionally secured against burglary with a solid security bolt.
Non-smoking apartment. Private sale, commission-free.
Property characteristics
| Age | Over 5050 years |
|---|---|
| Condition | Good |
| Floor | 3. floor |
| EPC | D - Less economical |
| Price per unit | €3,833 / m2 |
| Available from | 13/12/2025 |
|---|---|
| Layout | 3+1 |
| Listing ID | 972627 |
| Usable area | 78 m² |
What does this listing have to offer?
| Basement | |
| Lift |
| Garage | |
| MHD 2 minutes on foot |
What you will find nearby
Still looking for the right one?
Set up a watchdog. You will receive a summary of your customized offers 1 time a day by email. With the Premium profile, you have 5 watchdogs at your fingertips and when something comes up, they notify you immediately.



















