
Flat for sale 3+kk • 77 m² without real estateTreptower Strassse 92 Hamburg Rahlstedt Hamburg 22147
Treptower Strassse 92 Hamburg Rahlstedt Hamburg 22147Public transport 1 minute of walking • ParkingThis high-quality and comprehensively renovated 3-room apartment is located on the raised ground floor of a well-maintained multi-family building comprising only six residential units. The building stands on an expansive plot that offers plenty of space, distance, and a refreshingly open living environment.
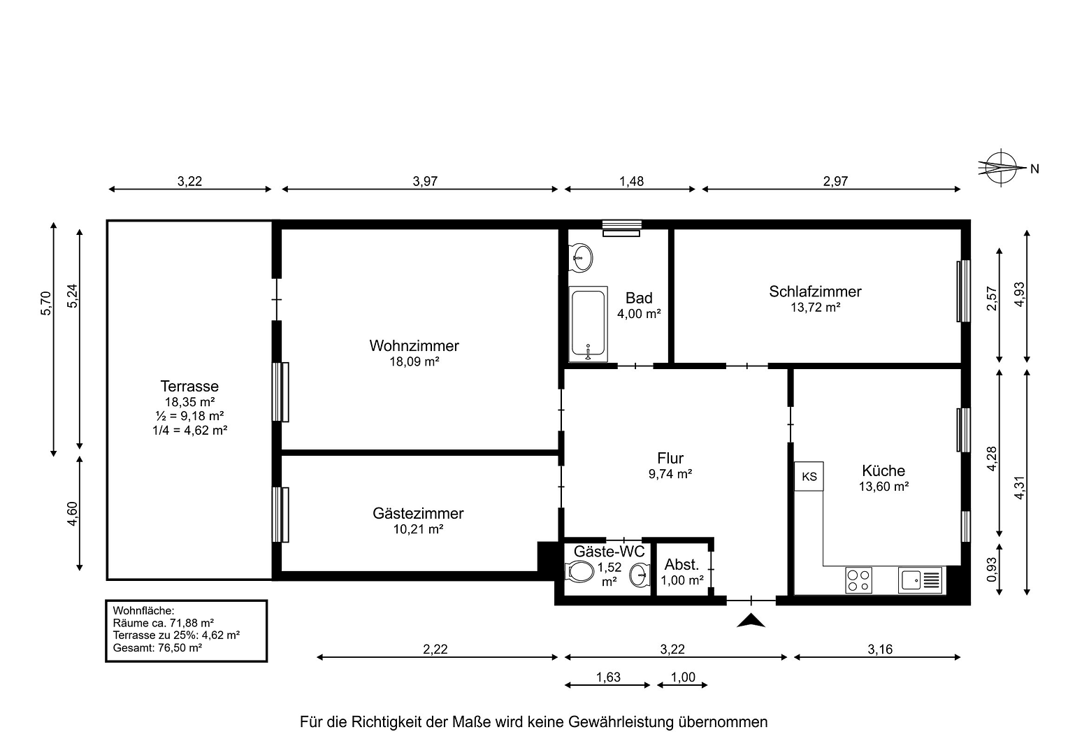
The apartment impresses with its very well thought-out layout. It features a cozy bedroom, a bright children's/office room, a spacious living kitchen, and a large living room with direct access to the sunny south terrace. This creates an ideal mix of living comfort, abundant daylight, and a high quality of life.
A bathroom with a bathtub, a separate toilet, and a practical storage room round off the available space perfectly.
In addition, a private basement storage room provides extra storage space.
A carport parking space is also available.
The building is heated by a gas central heating system that was renewed in 2016, ensuring efficient and reliable heating. Additionally, the basement level offers a well-maintained laundry room and drying room for communal use.
The apartment is ideally suited for owner-occupiers or investors looking for a property in a stable location with high rental potential. It is situated in a quiet yet well-connected residential area in the popular Hamburg district of Rahlstedt.
The surroundings are characterized by a well-maintained mix of single-family houses and small multi-family houses, creating a pleasant and harmonious living environment.
The green, park-filled surroundings and nearby recreational areas offer a high leisure value – ideal for walks, jogging, or outdoor sports activities.
The infrastructure is excellent:
Everyday shopping options, kindergartens, schools, doctors, and pharmacies are within walking distance or quickly reachable by bicycle.
Public transportation is optimally connected. Several bus lines and the nearby S-Bahn station ensure a quick connection to the surrounding districts and to Hamburg city center, which can be reached in about 20 minutes.
The combination of nature, established infrastructure, and a very pleasant living environment makes this location ideal for couples, small families, and anyone who wants to combine urban living with a peaceful residential atmosphere.
• High-quality and comprehensively renovated apartment
• Spacious living kitchen – ideal as a dining and social hub
• Large living room with access to the south terrace
• Well-proportioned bedroom and children’s room
• Bathroom with bathtub and washbasin
• Separate toilet
• Practical storage room within the apartment
• Private basement storage room with additional storage space
• Carport parking space
• Well-maintained communal areas: laundry room & drying room
• Gas central heating, renewed in 2016
• Peaceful residential complex with a pleasant community
• Large, well-kept plot (approximately 1,481 m²)
The service charge already includes the reserves (183€ / month) as well as the heating costs.
Property characteristics
| Age | Over 5050 years |
|---|---|
| Condition | After reconstruction |
| Listing ID | 969255 |
| Price per unit | €4,273 / m2 |
| Available from | 05/12/2025 |
|---|---|
| Layout | 3+kk |
| Usable area | 77 m² |
What does this listing have to offer?
| Basement | |
| MHD 1 minute on foot |
| Parking | |
| Terrace |
What you will find nearby
Still looking for the right one?
Set up a watchdog. You will receive a summary of your customized offers 1 time a day by email. With the Premium profile, you have 5 watchdogs at your fingertips and when something comes up, they notify you immediately.























