
House for sale • 232 m² without real estateBürgermeister-Regitz-Str. 61, , Saarland
Bürgermeister-Regitz-Str. 61, , SaarlandPublic transport 2 minutes of walking • Parking • GarageThis freshly renovated **4-family house** in Neunkirchen-Wellesweiler offers a variety of possibilities for both investors and owner-occupiers.
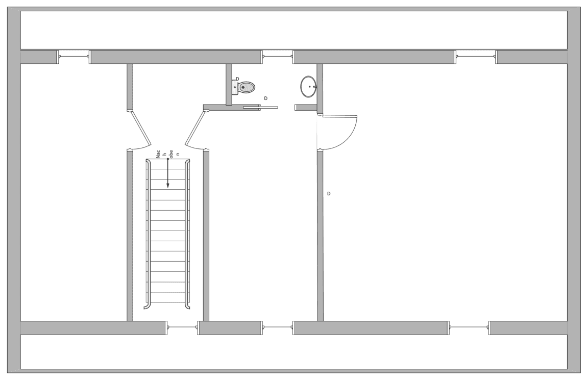
- **4 apartments**: on each floor, one 2-room apartment (approx. 32 m²) and one 3.5-room apartment (approx. 70 m²)
- **Attic**: additionally, two converted rooms (approx. 28 m²) with a bathroom
- **Total area**: approx. 232 m² of living space + approx. 100 m² of ancillary areas (basement, utility rooms)
- Each apartment comes with its own bathroom (toilet/shower or bathtub)
- One apartment is already equipped with a fitted kitchen
The house is fully basemented; the basement rooms are partially fitted with windows and sanitary facilities.
The property includes an **inner courtyard with an entrance gate**, a **double garage** (one with a pit), as well as additional storage and possibilities for designing the courtyard (e.g., additional parking spaces).
The renovation of all four apartments, as well as the ancillary areas and the garage, has recently been completed – the house is ready for immediate occupancy and rental.
- Each apartment comes with its own bathroom (toilet/shower or bathtub)
- One apartment is already equipped with a fitted kitchen
The house is fully basemented; the basement rooms are partially fitted with windows and sanitary facilities.
The property includes an **inner courtyard with an entrance gate**, a **double garage** (one with a pit) as well as additional storage and design possibilities in the courtyard (e.g., additional parking spaces).
The renovation of all four apartments, as well as the ancillary areas and the garage, has recently been completed – the house is ready for immediate occupancy and rental.
The property is located at **Bürgermeister-Regitz-Straße 61, 66539 Neunkirchen-Wellesweiler**.
There is good access to public transport, shopping facilities, and schools in the vicinity.
- freshly renovated (apartments, basement, garages)
- ready for immediate occupancy
- 2 garages, courtyard entrance, potential for additional parking spaces
- Basement with utility rooms, heating, and laundry room
- **Private sale, commission-free** (no buyer commission!)
- Real estate agent inquiries are expressly not desired.
Property characteristics
| Age | Over 5050 years |
|---|---|
| Condition | After reconstruction |
| Usable area | 232 m² |
| Total floors | 3 |
| Available from | 06/12/2025 |
|---|---|
| Listing ID | 971369 |
| Land space | 466 m² |
| Price per unit | €1,336 / m2 |
What does this listing have to offer?
| Basement | |
| Parking |
| Garage | |
| MHD 2 minutes on foot |
What you will find nearby
Still looking for the right one?
Set up a watchdog. You will receive a summary of your customized offers 1 time a day by email. With the Premium profile, you have 5 watchdogs at your fingertips and when something comes up, they notify you immediately.























