
Flat for sale 3+1 • 102 m² without real estateHamburg Lohbrügge Hamburg 21031
Below is the English translation of the text marked by the XML tag :
In a central location of Bergedorf/Lohbrügge, this attractive three-room apartment is situated on the second floor. It features a spacious sun terrace and is very bright.
The entrance to the property is located right on the busy pedestrian zone of Alte Holstenstraße, offering an attractive downtown location. The larger part of the apartment faces away from the pedestrian zone.
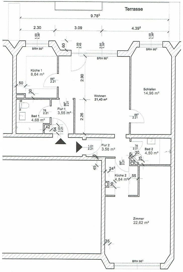
The floor plan consists of two formerly separate apartments that were merged into one unit during the 2021 renovation. However, this connection is reversible and can easily be restored to its original state. The rooms of the two apartments have been combined in a sensible manner without losing the individual advantages of the original layouts.
Both bathrooms and the kitchen have been extensively renovated. In this process, high-quality elements from specialist companies were used. The kitchen equipment from Häcker was fitted with a natural stone worktop in the Labrador-Blue Pearl color. As brand partners, the steam oven and all other electrical appliances from Siemens were chosen. The kitchen floor and the bathroom floors are laid with branded tiles in a wood-look design. The utility room, which has space for a washing machine and dryer, also offers plenty of storage possibilities.
The building also has an elevator.
Hamburg-Bergedorf is located in the southeast of the city of Hamburg and spans a large area with plenty of greenery, fields, and water bodies – a perfect blend of nature and urban life. At the same time, the town center of Bergedorf features a pedestrian zone, harbor, historic buildings, and half-timbered houses – giving the area a small-town charm.
Hamburg-Bergedorf combines quiet, nature-oriented living with excellent infrastructure: recreational green spaces, solid amenities (doctors, schools, daycare centers, etc.), and functional shopping opportunities. Ideal for families, nature lovers, or those who prefer a more relaxed lifestyle while still wanting to remain in Hamburg.
Culture & City: In the heart of Bergedorf lies Bergedorf Castle. The historic old town invites you for a stroll and the picturesque Bille hiking trail offers pleasant walks.
In the immediate vicinity, you will find a wide range of cultural activities, events, theaters, cinemas, and exhibitions.
Shopping Opportunities: You can shop conveniently here, right in the pedestrian zone, and at several weekly markets in the surrounding area.
Nearby, you’ll also find the Marktkaufcenter Bergedorf with a large retail space and excellent local supply. The City-Center Bergedorf (CCB) at the train station offers about 80 specialty stores.
In the historic pedestrian zone of the old town, there are also small specialty shops that complement the offerings.
Public Transportation: The Bergedorf train station with train and bus connections is just a three-minute walk away.
Parking: Various parking spaces and underground garages can be rented.
• 2 entrances
• 3 rooms
• 1 bathroom with shower / built in 2021
• 1 bathroom with bathtub / built in 2021
• 25 m² large terrace
• High-quality fitted kitchen / built in 2021
• Designer floor / tiles / built in 2021
• Flexible floor plan
• High-quality, opaque, and sun-resistant pleated blinds
Property characteristics
| Age | Over 5050 years |
|---|---|
| Layout | 3+1 |
| Listing ID | 962317 |
| Usable area | 102 m² |
| Condition | After reconstruction |
|---|---|
| Floor | 2. floor |
| EPC | E - Wasteful |
| Price per unit | €3,873 / m2 |
What does this listing have to offer?
| Basement | |
| MHD 3 minutes on foot |
| Lift |
What you will find nearby
Still looking for the right one?
Set up a watchdog. You will receive a summary of your customized offers 1 time a day by email. With the Premium profile, you have 5 watchdogs at your fingertips and when something comes up, they notify you immediately.



















