
Flat for sale 3+1 • 74 m² without real estateBerlin Lichterfelde Berlin 14167
The ground floor apartment is part of a development project comprising four multi-family buildings with a total of 100 residential units. The stairwells are designed to be bright and functional and are each equipped with elevators. The communal green space is set up as a playground and is used once a year for the homeowners’ summer festival.
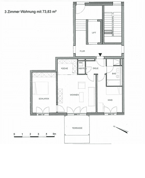
The building consists of 15 residential units and features a shared bicycle and stroller storage cellar. The offered apartment is located on the ground floor and is barrier-reduced. It was freshly renovated after the previous tenant moved out. The apartment includes a hallway, a modern bathroom with both a bathtub and a walk-in shower, a small room of 12.14 m², a large room of 15.68 m², as well as a spacious living room with an adjoining kitchen equipped with a high-quality built-in kitchen. Additionally, there is a storage room available with a connection for a washing machine.
Harry-S.-Truman-Allee is located in the green district of Lichterfelde in southwest Berlin, right next to the historic architecture of the former Telefunken factory, which has been redeveloped into a residential complex with extensive green areas. Numerous parks and the adjacent elaborately designed playground give the neighborhood the family-friendly character of a garden city.
Families, couples, and singles will appreciate not only the peaceful residential location but also the excellent urban infrastructure: Goerzallee, with its numerous shopping options (including Kaufland and Obi), is within walking distance and offers everything from everyday shops to large retail chains.
The proximity to daycare centers and various educational institutions, including the renowned German-English Phorms School with both a primary school and a high school, makes the location particularly attractive for families. For high leisure and recreational value, there are nearby playgrounds and sports fields, the Teltow Canal, numerous allotment gardens, and the horticulturally landscaped Lichterfelde Cemetery.
Several bus lines at Pinnauweg/Osteweg and at the Billy-Wilder-Promenade/Goerzallee provide fast connections to downtown Berlin and other parts of the city center. The well-known Steglitzer Schloßstraße is reachable in only 15 minutes by car via Goerzallee, and the bustling center of Zehlendorf is also accessible in just 10 minutes by bus or car.
High-quality parquet floors, triple glazing, and underfloor heating create a pleasant living atmosphere and an optimal indoor climate. The apartment also features a spacious, ground-level terrace paved with thermo wood planks measuring 11 m², as well as the exclusive right of use for the adjacent garden of 61.50 m², which includes a raised bed and its own separate access. The apartment also includes a cellar storage room measuring 6.78 m².
Property characteristics
| Age | Over 5050 years |
|---|---|
| Layout | 3+1 |
| Usable area | 74 m² |
| Condition | After reconstruction |
|---|---|
| Listing ID | 956993 |
| Price per unit | €6,419 / m2 |
What does this listing have to offer?
| Basement | |
| MHD 4 minutes on foot |
| Lift | |
| Terrace |
What you will find nearby
Still looking for the right one?
Set up a watchdog. You will receive a summary of your customized offers 1 time a day by email. With the Premium profile, you have 5 watchdogs at your fingertips and when something comes up, they notify you immediately.




















