
This listing is no longer active
Flat for sale 3+1 • 100 m² without real estateGräfelfing Gräfelfing Bayern 82166
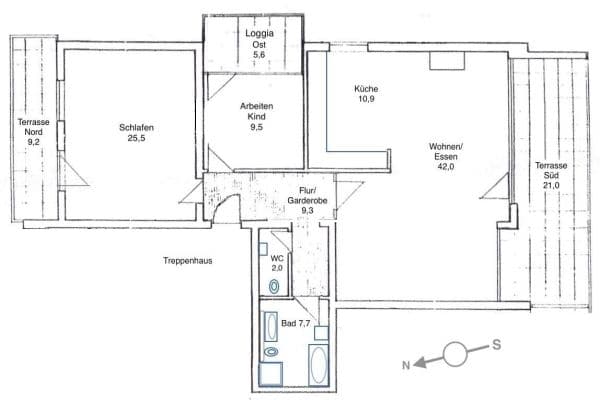
Gräfelfing Gräfelfing Bayern 82166Public transport 1 minute of walking • Lift • GarageWonderful attic maisonette of a special kind. Open concept with plenty of natural light and large window surfaces.
Two roof terraces with different layouts (southeast and south orientation), offering space for sun loungers, a grill, and a dining area.
One of the two last available apartments in a small residential complex (9 units).
High-quality, low-maintenance construction focused on low ancillary costs.
The apartment includes an underground parking space (additional €29,500 on top of the apartment purchase price) in a spacious underground garage (approx. 7 m wide driveway).
Located on the outskirts of Planegg.
The S-Bahn and everyday shops are within walking distance.
- Wooden windows
- Electric aluminum roller shutters including those for the skylights
- Genuine hardwood flooring
- Large-format tiles in the bathrooms
- 2 bathrooms with daylight and one guest WC
- High-quality sanitary fittings including base cabinets
- A small loft space above the dining area
No agency fees.
Property characteristics
| Age | Over 5050 years |
|---|---|
| Layout | 3+1 |
| Listing ID | 956054 |
| Price per unit | €9,990 / m2 |
| Condition | New-build |
|---|---|
| Floor | 2. floor out of 2 |
| Usable area | 100 m² |
What does this listing have to offer?
| Balcony | |
| Garage | |
| MHD 1 minute on foot |
| Basement | |
| Lift |
What you will find nearby
Still looking for the right one?
Set up a watchdog. You will receive a summary of your customized offers 1 time a day by email. With the Premium profile, you have 5 watchdogs at your fingertips and when something comes up, they notify you immediately.




