
House for sale • 235 m² without real estateVaterstetten Vaterstetten Bayern 85591
Vaterstetten Vaterstetten Bayern 85591Public transport 1 minute of walking • Parking • GarageThis extremely well-maintained vacant three-family house presents a rare opportunity for owner-occupiers, multi-generation families, or forward-thinking investors seeking very good returns. The building impresses with its solid construction and a condition that reflects the careful upkeep of recent years.
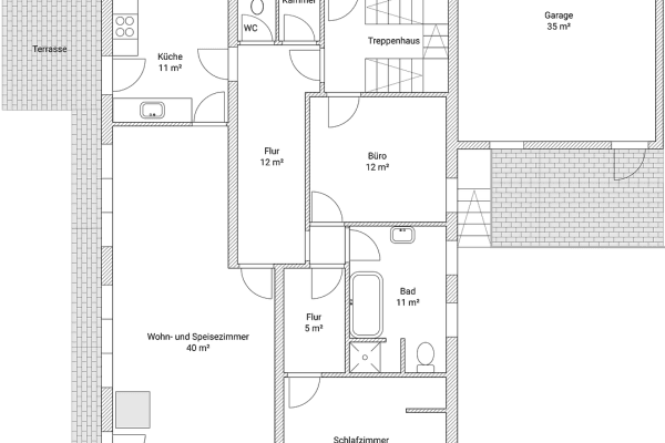
The property’s centerpiece is the separate, spacious staircase. It allows discreet access to all three residential units and guarantees maximum privacy for the occupants—ideal for separating work and living spaces or for uniting different rental parties under one roof.
The apartments on the ground and upper floors are already vacant. The attic apartment will be available for occupancy on July 1, offering an excellent opportunity. Discover the potential of this property and actively shape its future—whether as an owner-occupier or an investor.
This semi-detached house, built in 1972, offers generous space over four levels with versatile usage possibilities—ideal even for large families. The property is in very well-maintained condition. In total, nine rooms are available, distributed across the ground floor, upper floor, and attic.
In all three apartments, you are greeted by an open and welcoming entrance hall that provides access to all rooms. Besides a kitchen equipped with fitted appliances, both the ground floor and upper floor include a bathroom with a bathtub as well as a separate guest WC (except in the attic). The bright living room with its large window forms the centerpiece and offers access to the sunny south terrace and garden. In addition, there is a large, bright bedroom and a well-proportioned children’s room. Direct access from the staircase to the single garage is a practical bonus in everyday life.
The basement provides additional rooms for storage and technical installations. The large drying room has its own exit to the garden. Additional basement space (54 m²) can be used as a hobby room or home office. This room, along with the adjacent single kitchen, features a spacious, green-lit light well. Also very practical is a fully equipped bathroom. In addition to the heating and technical room and the laundry room, four basement compartments complete the space offerings.
Vaterstetten – First-Class Quality of Life in a “Garden City” Idyll
The property is located in a good residential area of Vaterstetten. This address stands for upscale living in a mature, extremely well-cared-for neighborhood characterized by single-family homes and small residential units.
Living with the Highest Leisure Value
The surroundings invite you to enjoy long walks or bike rides in the nearby Ebersberger Forest or at the Reitsberger Hof. Despite this idyllic calm, you benefit from excellent infrastructure: The S-Bahn station (S4/S6) is reachable within a few minutes and will take you directly to Munich’s Marienplatz in about 20 minutes.
Education Comes First
For families, Vaterstetten offers an educational range that leaves nothing to be desired. All school types are represented locally or in the immediately adjacent Baldham:
• Elementary Schools: Several renowned elementary schools are located in the municipality (e.g. on Wendelsteinstraße or Brunnenstraße).
• Middle School: The Vaterstetten middle school offers modern learning concepts.
• Secondary School: The state secondary school in Vaterstetten enjoys an excellent reputation.
• High School: The Humboldt-Gymnasium Vaterstetten is known well beyond the community borders for its broad educational offerings.
• Special Schools & Adult Education: There are also support centers and one of Bavaria’s largest adult education centers right on site.
Top-Level Medical Care
The health care infrastructure is excellent. In and around the town center and nearby Baldham you will find:
• Specialists in all fields: From general practitioners and pediatricians to specialized cardiologists and orthopedists, ensuring comprehensive care.
• Pharmacies: Several pharmacies are within walking distance or a short bike ride away.
• Proximity to Clinics: The Ebersberg District Hospital as well as Munich clinics (e.g. in Bogenhausen or Neuperlach) are quickly accessible via the motorway or main road.
In summary, the location on Luitpoldring offers the rare combination of absolute privacy, familial comfort, and a highly accessible infrastructure.
Features: Upscale Comfort & Technical Sophistication
The features of this triple-family house impress with a successful combination of timeless elegance, high functionality, and modern technology. Quality and durability have been consistently prioritized.
Living Comfort & Flooring:
• Premium Materials: High-quality solid wood parquet has been installed in all living areas, ensuring a warm and cozy atmosphere.
• Low-Maintenance Elegance: Hallways, kitchens, and bathrooms are outfitted with tasteful, durable tiles.
In the staircase, a bright, timeless natural stone was used, and the artistically forged railing completes the refined overall impression.
Windows & Light Management:
• Efficient Thermal Insulation: The house features thermally insulated windows with modern insulating glazing (double and triple glazing) that ensure excellent sound insulation and low energy costs.
• Optimized Roof Windows: The windows in the attic offer maximum comfort through external sun protection against summer heat, and complete blackout capability from the inside.
Kitchen & Bathroom:
• Three Fitted Kitchens: Each of the three residential units is already equipped with a fitted kitchen—ideal for immediate rental or owner-occupation.
• Professional Exhaust System: A special plus for cooking enthusiasts— all extractor hoods vent the air directly outside (exhaust system), ensuring a significantly better room climate than conventional recirculation systems.
• Wellness Preparation: The bathrooms are pre-equipped with connections for bidets, which underscores the high standard of the sanitary facilities.
• Additional Comfort: In the basement there is also a practical single kitchen, and a bathroom with a shower, toilet, and sink.
Technology & Energy:
• Modern Heating Technology: The building is efficiently heated by a new gas boiler (2024).
• Smart Metering: For hassle-free and precise utility billing, all apartments are equipped with modern meters capable of remote reading for heating, cold water, and hot water. This eliminates the need to enter the apartments for meter reading.
Garage, Basement & Outdoor Areas:
• The “XL Garage”: An absolute highlight is the large, heated garage, which is also fully incorporated into the basement, providing enormous additional storage space or room for hobbies.
• Outdoor Seating: Directly behind the garage, there is a sheltered outdoor seating area inviting you to enjoy relaxing moments outside.
• Bicycle Parking: Fixed bicycle stands are available for residents, comfortably accommodating two bicycles per residential unit.
Energy Performance (according to the Energy Certificate):
The building, for its construction year, has an above-average energy efficiency, which underlines the low utility costs:
• Type of Energy Certificate: Energy Consumption Certificate
• Final Energy Consumption: 69 kWh/(m²a)
• Energy Efficiency Class: B
• Main Energy Source: Natural Gas H
• Year of Installation of the Heating Unit: 2024
Property characteristics
| Age | Over 5050 years |
|---|---|
| Listing ID | 1010415 |
| Usable area | 235 m² |
| Total floors | 3 |
| Condition | After reconstruction |
|---|---|
| EPC | B - Very economical |
| Land space | 408 m² |
| Price per unit | €5,476.60 / m2 |
What does this listing have to offer?
| Balcony | |
| Garage | |
| MHD 1 minute on foot |
| Basement | |
| Parking | |
| Terrace |
What you will find nearby
Still looking for the right one?
Set up a watchdog. You will receive a summary of your customized offers 1 time a day by email. With the Premium profile, you have 5 watchdogs at your fingertips and when something comes up, they notify you immediately.























