
House for sale 5+1 • 147 m² without real estate, North Rhine-Westphalia
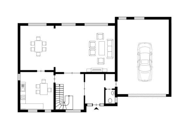
This house built by the developer Glückauf in 2000 impresses with its well-conceived layout spread over three floors. Four living rooms offer diverse possibilities for families, couples, or a home office. In the basement, in addition to the building services, there is extra space available for hobbies, leisure, or storage. The west-facing garden invites you to enjoy the sun after work.
The house is located in Moers-Hochstraß in a quiet and family-friendly area. The access street is designed as a play street, which makes the residential setting particularly attractive. A playground is situated in the immediate vicinity. Kindergarten and elementary school are conveniently reachable in about a 10-minute walk. Supermarkets and DIY stores are also located nearby and are easily accessible.
Within walking distance, you will find the "Gerdtbach" landscape conservation area, followed by the Üttelsheimer See recreational area. Here, you can enjoy your leisure time in a relaxed manner and be actively engaged. Additionally, for a walk, the northward-located Baerler Busch or the nearby Rhine meadows also invite you.
Property characteristics
| Age | Over 5050 years |
|---|---|
| Layout | 5+1 |
| EPC | A - Extremely economical |
| Land space | 286 m² |
| Condition | Good |
|---|---|
| Listing ID | 999124 |
| Usable area | 147 m² |
| Price per unit | €3,367 / m2 |
What does this listing have to offer?
| Basement | |
| Parking | |
| Terrace |
| Garage | |
| MHD 2 minutes on foot |
What you will find nearby
Still looking for the right one?
Set up a watchdog. You will receive a summary of your customized offers 1 time a day by email. With the Premium profile, you have 5 watchdogs at your fingertips and when something comes up, they notify you immediately.
























