
Flat for sale 3+1 • 74 m² without real estate, Baden-Württemberg
This well-maintained 3-room apartment on the first floor of a multi-family house built in 1993 impresses with its well-thought-out floor plan, pleasant living atmosphere, and attractive location in 71729 Erdmannhausen – just about a 6-minute walk from the S-Bahn station.
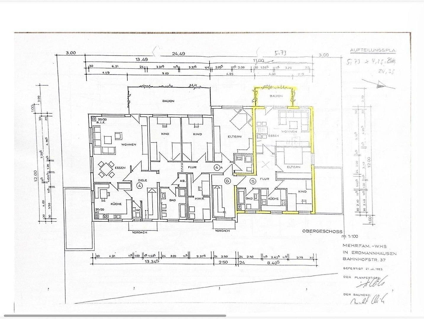
On approximately 74 m² of living space, you will be greeted by a spacious living and dining area with access to the balcony, two additional well-proportioned rooms, a separate kitchen with fitted kitchen (installed 2017) including electrical appliances, and a daylight bathroom. The balcony offers additional residential comfort and is equipped with an electric awning (2018) as well as an insect-proof swing door (2023).
The living areas are fitted with low-maintenance laminate flooring (skirting boards renewed in 2017); the kitchen and bathroom are tiled. The plastic windows feature double insulated glazing.
Also included with the apartment:
• a basement storage room
• a communal laundry room
• a bicycle storage room
• an outdoor parking spot (included in the purchase price)
The property is heated through a gas central heating system.
The monthly service charge is €407.00 and includes, among other things, heating costs, water, sewage, building insurance, reserves, and the television connection.
The apartment is expected to be available from July 2026 and is ideally suited for couples, small families, or investors.
The purchase price is €270,000, including the outdoor parking space.
The sale is conducted privately and is therefore commission-free.
The property is located in the central area of Erdmannhausen, a popular municipality in the district of Ludwigsburg. The apartment is situated on a through road with a speed limit of 30 km/h, ensuring good accessibility while maintaining a traffic-calmed character.
The location is particularly attractive for families, commuters, and investors as it combines excellent infrastructure with a high quality of living.
A major plus is the excellent connection to public transportation: The Erdmannhausen S-Bahn station is only about a 6-minute walk away. From here, there is a connection to the S4 towards Stuttgart as well as Backnang – ideal for commuters.
Local supplies are also very good: shopping opportunities for daily needs, bakeries, banks, and a pharmacy are located directly in town and are partly within comfortable walking distance.
Families benefit from a very good educational and childcare offering. Several kindergartens as well as the Astrid-Lindgren School (primary school) are located directly in Erdmannhausen. Secondary schools are situated in the surrounding towns such as Marbach am Neckar or Ludwigsburg and are easily accessible.
In addition to the good infrastructure, Erdmannhausen offers a high value for leisure and recreation. Numerous cycling and walking paths, sports clubs, and an active club scene significantly contribute to the high quality of life. The natural surroundings with fields and meadows invite a variety of leisure and outdoor activities.
Overall, this location combines central accessibility with a family-friendly environment and good connectivity to the Stuttgart region.
The apartment is in a well-maintained condition and features a solid, modern equipment. In the living and bedrooms, light laminate flooring is installed (with skirting boards renewed in 2017), and the kitchen and bathroom are tiled.
The daylight bathroom is functionally equipped; the toilet was renewed just last year.
The balcony with an electric awning (2018) as well as an insect-proof swing door (2023) offers additional comfort. The fitted kitchen (installed in 2017) including electrical appliances is included in the purchase price.
A basement storage room, communal laundry room, bicycle storage room, and an outdoor parking spot complete the offer. The heating is provided by a gas central heating system.
Property characteristics
| Age | Over 5050 years |
|---|---|
| Layout | 3+1 |
| Listing ID | 997074 |
| Price per unit | €3,649 / m2 |
| Condition | Good |
|---|---|
| Floor | 1. floor out of 3 |
| Usable area | 74 m² |
What does this listing have to offer?
| Balcony | |
| Parking |
| Basement | |
| MHD 2 minutes on foot |
What you will find nearby
Still looking for the right one?
Set up a watchdog. You will receive a summary of your customized offers 1 time a day by email. With the Premium profile, you have 5 watchdogs at your fingertips and when something comes up, they notify you immediately.













