
Flat for sale 3+kk • 84 m² without real estate, Baden-Württemberg
This well-maintained and very bright 3.5-room attic apartment is located in a quiet area, away from street and railway noise, in a well-kept multi-family house in Beutelsbach. Thanks to its attic position, good orientation, and generous window areas, the apartment offers a pleasant living ambiance.
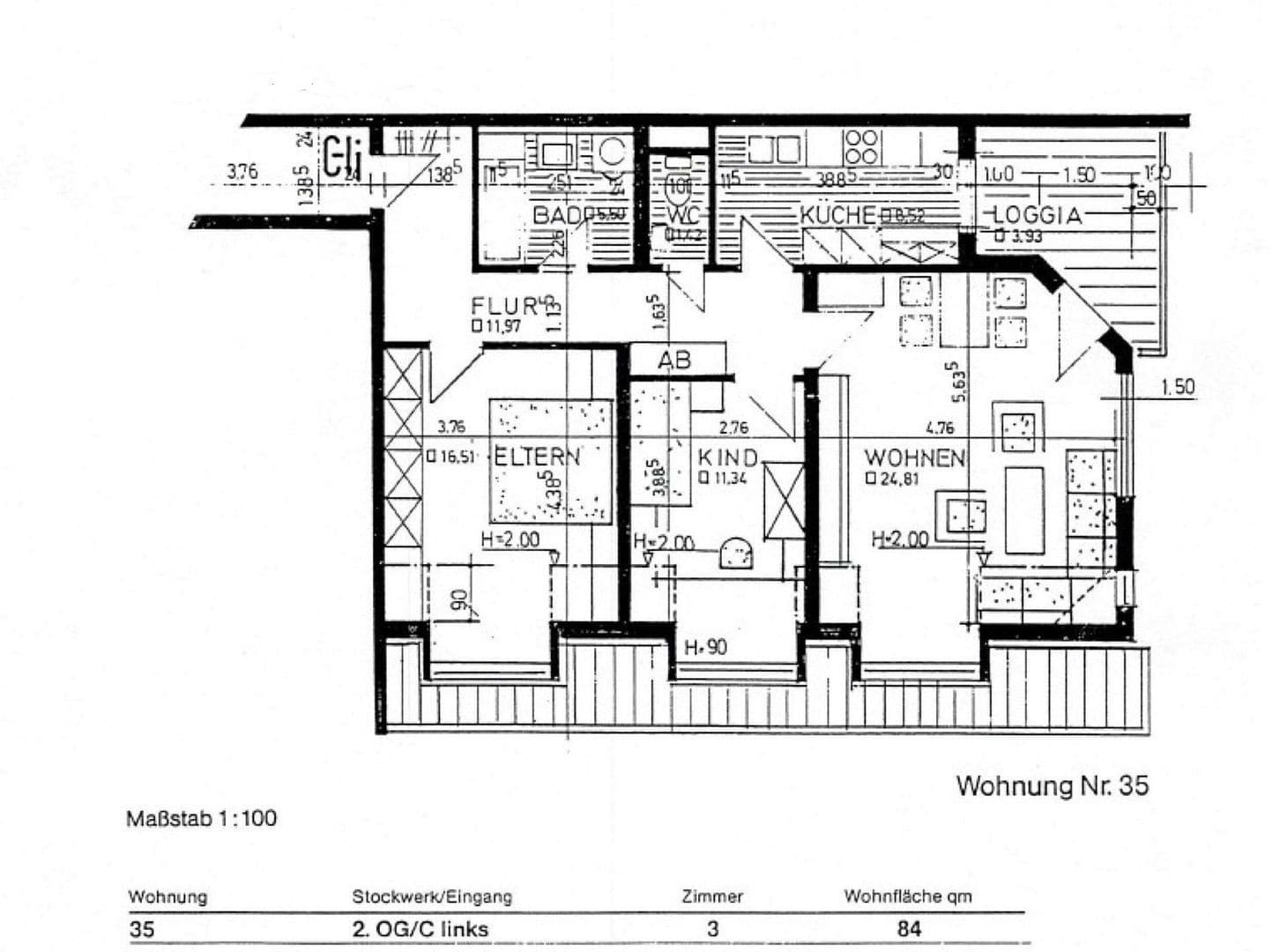
The spacious living and dining area forms the central focal point of the apartment and opens onto a covered loggia facing south. This inviting space encourages you to linger and creates a protected outdoor area.
The kitchen is equipped with a high-quality fitted kitchen, which is included in the purchase price. The daylight bathroom and the separate WC each feature electrically opening skylights, ensuring natural lighting and good ventilation. In addition to the bedroom, there is another room available that can be flexibly used as an office, guest room, or children’s room. A generous hallway provides easy access to all the rooms.
Another feature is the large attic belonging to the apartment, which is accessible directly from the apartment via a pull-down ladder and offers exceptionally ample additional storage space. Additionally, there is a separate cellar room that is part of the individual ownership.
An underground parking space is sold together with the apartment and is allocated to the individual ownership (purchase price €15,000).
Furthermore, the building offers various communal rooms, for example for bicycles or strollers, which are available for community use.
Note: According to the building plans, the apartment is located on the 2nd floor; in reality, four flights of stairs must be climbed as there is no elevator. The apartment is therefore not barrier-free.
The apartment is situated in a quiet yet well-connected residential area in the Beutelsbach district of Weinstadt. The location combines a pleasant, established living environment with very good infrastructural connections.
The Beutelsbach S-Bahn station is reachable within a few minutes on foot and provides quick and comfortable access toward Stuttgart as well as the surrounding regions. This makes the location suitable both for commuters and owner-occupiers who value good accessibility while enjoying a peaceful living environment.
Shopping opportunities for everyday needs, bakeries, doctors, pharmacies, schools, and kindergartens are found in the immediate vicinity and are mostly within walking distance. The center of Beutelsbach, offering additional services and dining options, is also easily accessible.
The surroundings are characterized by vineyards, green spaces, and recreational areas. Walking and bike paths, along with the scenic landscape of the Remstal, offer high leisure and relaxation value.
Overall, the location is distinguished by the successful combination of peaceful living, good infrastructure, and excellent transport connections.
• Floor coverings of laminate and tiles
• High-quality fitted kitchen with appliances from Siemens or Miele
• Modernized daylight bathroom (completely renewed a few years ago) with an electrically opening skylight
• Separate WC with an electrically opening skylight
• Covered loggia facing south
• Large attic accessible directly from the apartment (pull-down ladder) with additional storage space
• Separate cellar room as part of the individual ownership
• Underground parking space (purchase price €15,000)
• Use of communal rooms (e.g., for bicycles and strollers)
Property characteristics
| Age | Over 5050 years |
|---|---|
| Floor | 2. floor out of 4 |
| EPC | D - Less economical |
| Price per unit | €3,679 / m2 |
| Layout | 3+kk |
|---|---|
| Listing ID | 987993 |
| Usable area | 84 m² |
What does this listing have to offer?
| Balcony | |
| MHD 1 minute on foot |
| Garage |
What you will find nearby
Still looking for the right one?
Set up a watchdog. You will receive a summary of your customized offers 1 time a day by email. With the Premium profile, you have 5 watchdogs at your fingertips and when something comes up, they notify you immediately.






















