
Flat for sale 3+kk • 58 m² without real estatePoštovská, Prague - Vysočany
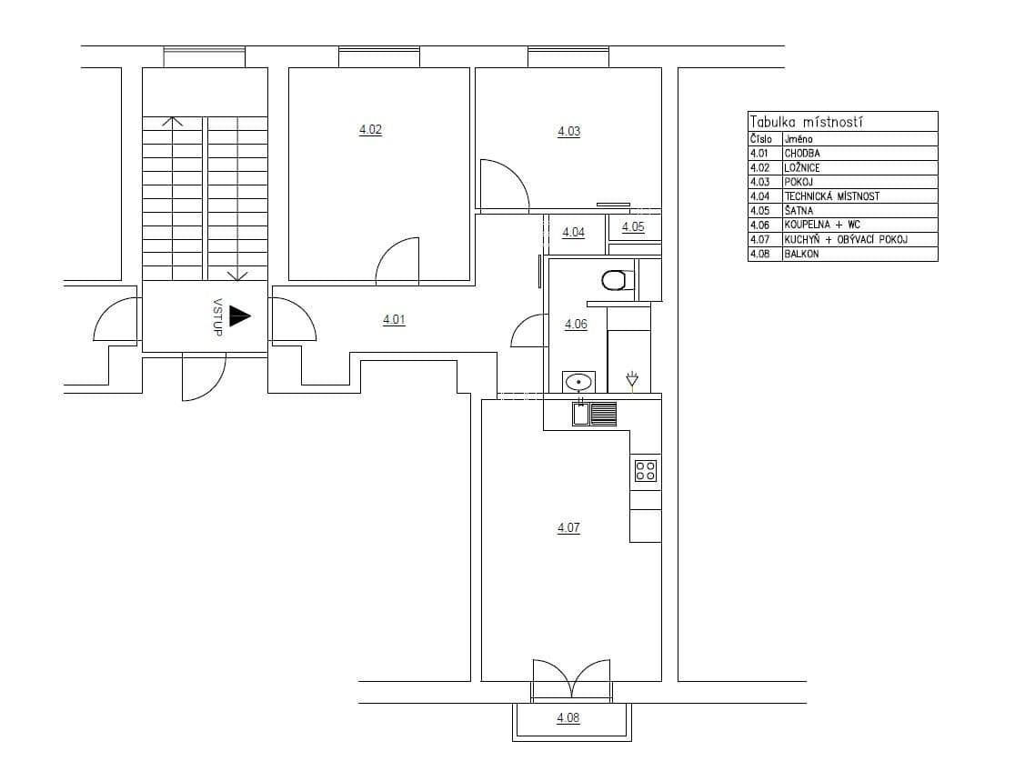
Nabízíme k prodeji zcela jedinečný a elegantní designový byt 3+kk o podlahové ploše 58 m², situovaný v klidné ulici Poštovská, Praha 9 – Vysočany. Byt se nachází ve 3. patře udržovaného bytového domu bez výtahu. Jeho součástí je balkon (1,2 m²) a sklepní kóje (6 m²).
Interiér bytu prošel kompletní a pečlivě provedenou rekonstrukcí, při které byl kladen důraz na nadčasový design a kvalitní materiály. Rekonstrukce zahrnovala kompletně novou elektroinstalaci, nové rozvody vody a kanalizace, nové omítky a nové rozvody topení s možností chytrého ovládání přes mobilní telefon.
V celém bytě se nachazí kvalitní dřevěná třívrstvá podlaha, která dodává interiéru teplo a elegantní nadčasový vzhled. V koupelně je provedena designová epoxidová stěrka, která koupelně davá moderní a minimalistický charakter. Kuchyň je řešena jako zakázková výroba od truhláře, doplněná spotřebiči české značky ETA. Celkový dojem interiéru podtrhují kvalitní bezfalcové interiérové dveře a nové bezpečnostní vstupní dveře, které zajišťují klid i soukromí.
Bytový dům je zateplen, má novou střechu a je plánována revitalizace společných vnitřních prostor, což přispívá k dlouhodobé hodnotě nemovitosti.
Byt se prodává zařízený a je ihned k nastěhování.
Je ideální volbou jak pro mladý pár, tak pro rodinu s dítětem, případně jako kvalitní městské bydlení s investičním potenciálem.
Velkou výhodou je také výborná dopravní dostupnost do centra mesta – stanice metra B Vysočanská a Kolbenova jsou vzdáleny přibližně 5 minut chůze.
V případě jakýchkoliv dotazů nebo zájmu o domluvení prohlídky nás neváhejte kontaktovat.
Property characteristics
| Available from | 01/03/2026 |
|---|---|
| Building construction | Brick |
| Fully furnished | Partly |
| Design | Luxurious |
| Listing ID | 992096 |
| EPC | C - Economical |
| Location | Quiet area |
| Price per unit | CZK 170,672 / m2 |
| Condition | Very good |
|---|---|
| Layout | 3+kk |
| Floor | 3. floor out of 4 |
| Heating | Central |
| Ownership | Personal |
| Reconstruction | Complete |
| Usable area | 58 m² |
Are you choosing a apartment?
Make sure you have all the important information!
What does this listing have to offer?
| Balcony: 1.2 m² |
| Basement: 6 m² |
What you will find nearby
Still looking for the right one?
Set up a watchdog. You will receive a summary of your customized offers 1 time a day by email. With the Premium profile, you have 5 watchdogs at your fingertips and when something comes up, they notify you immediately.


















