
Flat for sale Studio • 40 m² without real estateHnězdenská, Prague - Troja
Nabízím k prodeji nadstandardně velký a světlý byt 1+kk se spací nikou v lokalitě Praha 8 Troja. Byt je orientovaný na jih do klidného vnitrobloku a nachází se ve 3. patře moderního domu s nadstandardním servisem a bezpečím.
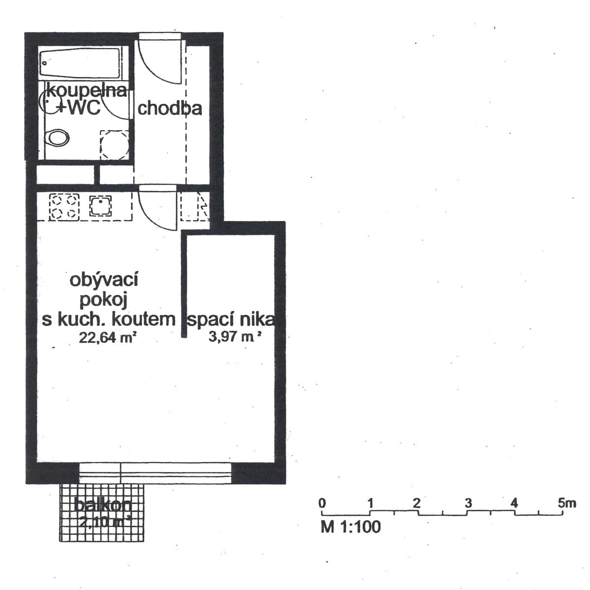
Dispozice a vybavení:
Interiér (35,9 m²): Velkorysý obývací pokoj s chytře řešenou spací nikou, která poskytuje soukromí oddělené od denní části, koupelna s vanou a předsíň s úložnými prostory.
Balkon (2,2 m²) do vnitrobloku.
Zděný sklep (2,6 m²) s bezpečnostními dveřmi.
Dům: Vchod je vybaven dvěma výtahy (jeden je větší, což oceníte při stěhování i velkých nákupech) a bezbariérovým přístupem. Dům je hlídán nonstop ostrahou. V domě je dostupná optika pro připojení k internetu.
Lokalita:
Doprava: Zastávka autobusu jen 150 m od domu (7 min na metro C Kobylisy). Parkování je možné u domu (nejsou zde zóny) nebo je možné si pronajmout parkovací stání v suterénu budovy.
Příroda: Je možná sousedská permanentka do Botanické zahrady za manipulační poplatek. V okolí také Čimický háj a mnoho další zeleně, včetně Trojské kotliny.
Vybavenost: V docházkové vzdálenosti OC Krakov, poliklinika, pošta a kompletní síť obchodů.
Property characteristics
| Available from | 13/02/2026 |
|---|---|
| Building construction | Skeleton |
| Fully furnished | Partly |
| Listing ID | 990916 |
| EPC | C - Economical |
| Usable area | 40 m² |
| Condition | Very good |
|---|---|
| Layout | Studio |
| Floor | 3. floor out of 16 |
| Ownership | Personal |
| Location | Residences |
| Price per unit | CZK 159,750 / m2 |
Are you choosing a apartment?
Make sure you have all the important information!
What does this listing have to offer?
| Balcony: 2.2 m² | |
| Basement: 2.6 m² | |
| Parking |
| Wheelchair accessible | |
| Lift |
What you will find nearby
Still looking for the right one?
Set up a watchdog. You will receive a summary of your customized offers 1 time a day by email. With the Premium profile, you have 5 watchdogs at your fingertips and when something comes up, they notify you immediately.


















