
Flat for sale 2 bedroom • 52 m² without real estate, Baden-Württemberg
Facts for Capital Investors
- Calculated net cold rent: approx. €900/month = €10,800 per annum
- Nearly 100 inquiries on the rental listing within 2 weeks
- Purchase price: €199,900
- Gross yield: approx. 5.5%
- Monthly service charge: only €155
- Available – immediate re-letting possible
- Commission-free – direct purchase from the owner
- Double depreciation through appraisal
The photos of the apartment are original and have not been processed with AI.
The apartment is located in the central core of Lörrach. Its micro-location is characterized by short distances and excellent everyday infrastructure – a clear advantage for its rentability.
- Bus stop: approx. 2–3 minutes’ walk
- Train station / S-Bahn (towards Basel): approx. 8–10 minutes’ walk
- City center / pedestrian zone: approx. 6–8 minutes’ walk
- Supermarket: approx. 4–5 minutes’ walk
- Bakery / dining options: approx. 2–5 minutes’ walk
- Doctors / pharmacy: approx. 5–7 minutes’ walk
The combination of a central location, excellent public transport connections, and nearby amenities ensures stable demand, especially among singles, couples, and commuters – particularly given the proximity to the Swiss border.
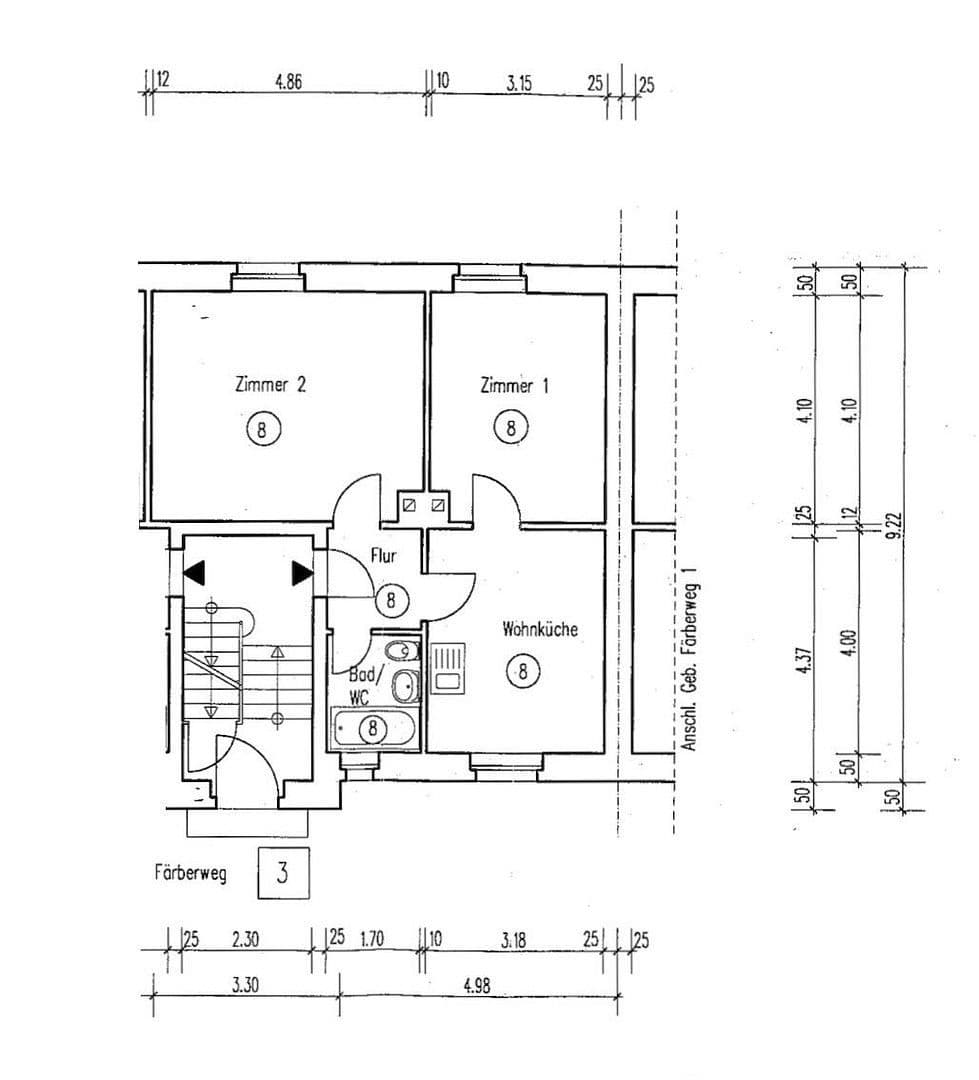
- Living area approx. 52 m²
- 2 rooms
- Raised ground floor
- Completely renovated
- New gas-fired apartment heating system (2026)
- New electrical system
- New bathroom including all installations
- High-quality vinyl flooring
- Bathroom with window
- Parking available with a resident permit
- Available – immediate re-letting possible
- Commission-free – direct purchase from the owner
- District heating connection in preparation – future-proof perspective
- High ceilings – classic old building character
- Central inner-city location with stable rental demand
Imprint
Nils Weisel
WohnVision Südbaden
Pelzwinkel 1
79426 Buggingen
Contact
Phone: +49 (0)7634 3500318
E-mail: info@wohnvision-suedbaden.de
Economic Identification Number
DE437872375
Property characteristics
| Age | Over 5050 years |
|---|---|
| Condition | New-build |
| Listing ID | 988320 |
| Usable area | 52 m² |
| Available from | 06/02/2026 |
|---|---|
| Layout | 2 bedroom |
| EPC | E - Wasteful |
| Price per unit | €3,844 / m2 |
What does this listing have to offer?
| Basement |
| MHD 2 minutes on foot |
What you will find nearby
Still looking for the right one?
Set up a watchdog. You will receive a summary of your customized offers 1 time a day by email. With the Premium profile, you have 5 watchdogs at your fingertips and when something comes up, they notify you immediately.














