
Flat for sale 2 bedroom • 49 m² without real estate, Baden-Württemberg
, Baden-WürttembergPublic transport 1 minute of walking • ParkingNow take advantage of the Early Bird price benefit and save €30,000: reserve the apartment by December 31, 2025, and secure a price advantage of €240,000 instead of €270,000.
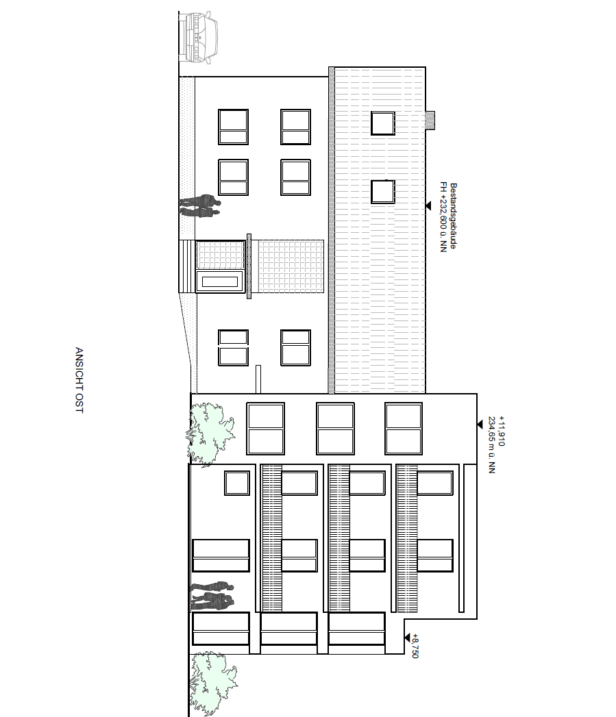
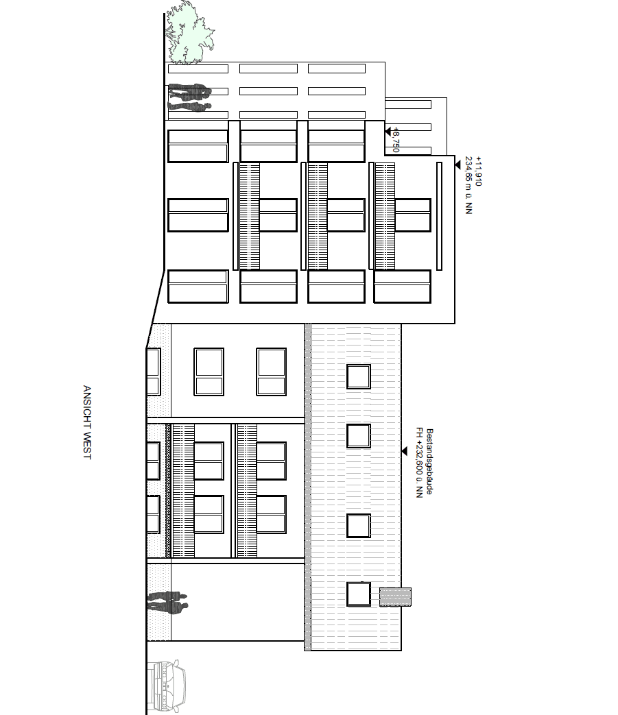
Not far from the spa park area of the municipality of Bad Bellingen, adjacent to an older existing building, an independent new construction project consisting of seven residential units is being developed. The two apartments on the ground floor, first floor, and second floor each offer living spaces between 48 sqm and 49 sqm and comprise two rooms. The penthouse apartment on the third floor features an additional bedroom and a living space of over 80 sqm. All apartments benefit from a bright and pleasant living atmosphere thanks to the numerous floor-to-ceiling windows. The well-thought-out layout with an open-plan living/kitchen and dining area underlines the modernity of the project. The bathrooms in all apartments are equipped with a curbless shower; the three with eastward orientation, as well as the large one in the attic, also feature a window. The ground-floor apartments are barrier-free accessible and are therefore ideal for senior couples. On the large terrace, you can enjoy either the morning or the evening sun. The apartments on the upper floors are accessed via the staircase, with only a few steps due to the low number of floors. These units offer a balcony instead of a terrace, with the penthouse apartment providing even two balconies.
Bad Bellingen is a municipality with over 5,000 inhabitants located in the northwest of the Lörrach district, right at the tri-border area of Germany, France, and Switzerland. The on-ramp to the Bundesautobahn No. 5 is just a 10-minute drive away, making it possible to reach the city of Lörrach in 30 minutes, Mulhouse in 40 minutes, and Basel in 30 minutes—the latter being known for its international airport. The transportation network is completed by the regional trains and express services of the Rheintal rail line, and Bad Bellingen itself has its own train station.
Since the discovery of thermal springs in the 1950s, the municipality has established itself as a spa and tourism destination with regional standing. This has enormously benefited the local economy and, consequently, the town’s infrastructure. Near the spa park area—which is within walking distance of the new development project and offers a variety of recreational activities such as the popular Balinea thermal bath, a barefoot trail, a playground, and a fitness course—there are various everyday stores, a large supermarket, and a range of culinary dining options. The adjacent Rhine River and the nearby Hertinger Forest further enhance the natural diversity.
• Sustainable construction in the energy-efficient KfW 40 standard
• Underfloor heating in all rooms (air-to-water heat pump)
• Modernly designed living concept with an open kitchen
• Floor-to-ceiling plastic windows (triple glazed) with electric aluminum roller shutters
• Flooring: parquet in the living and sleeping areas and 60x60 cm tiles in the bathroom
• Wall covering: painted non-woven fabric in the living and sleeping areas and 60x30 cm tiles in the bathroom
• Timeless bathroom design with a curbless shower, window, and sanitary fixtures or fittings from the renowned companies Duravit and Hansgrohe
Property characteristics
| Age | Over 5050 years |
|---|---|
| Condition | New-build |
| Listing ID | 981080 |
| Price per unit | €4,490 / m2 |
| Available from | 01/12/2026 |
|---|---|
| Layout | 2 bedroom |
| Usable area | 49 m² |
What does this listing have to offer?
| Wheelchair accessible | |
| Parking | |
| Terrace |
| Basement | |
| MHD 1 minute on foot |
What you will find nearby
Still looking for the right one?
Set up a watchdog. You will receive a summary of your customized offers 1 time a day by email. With the Premium profile, you have 5 watchdogs at your fingertips and when something comes up, they notify you immediately.


















