
Flat for sale 2 bedroom • 49 m² without real estate, Baden-Württemberg
, Baden-WürttembergPublic transport 1 minute of walking • ParkingNow take advantage of the early bird price benefit and save €30,000: reserve the apartment by 31 December 2025 and secure a price advantage of €235,000 instead of €265,000.
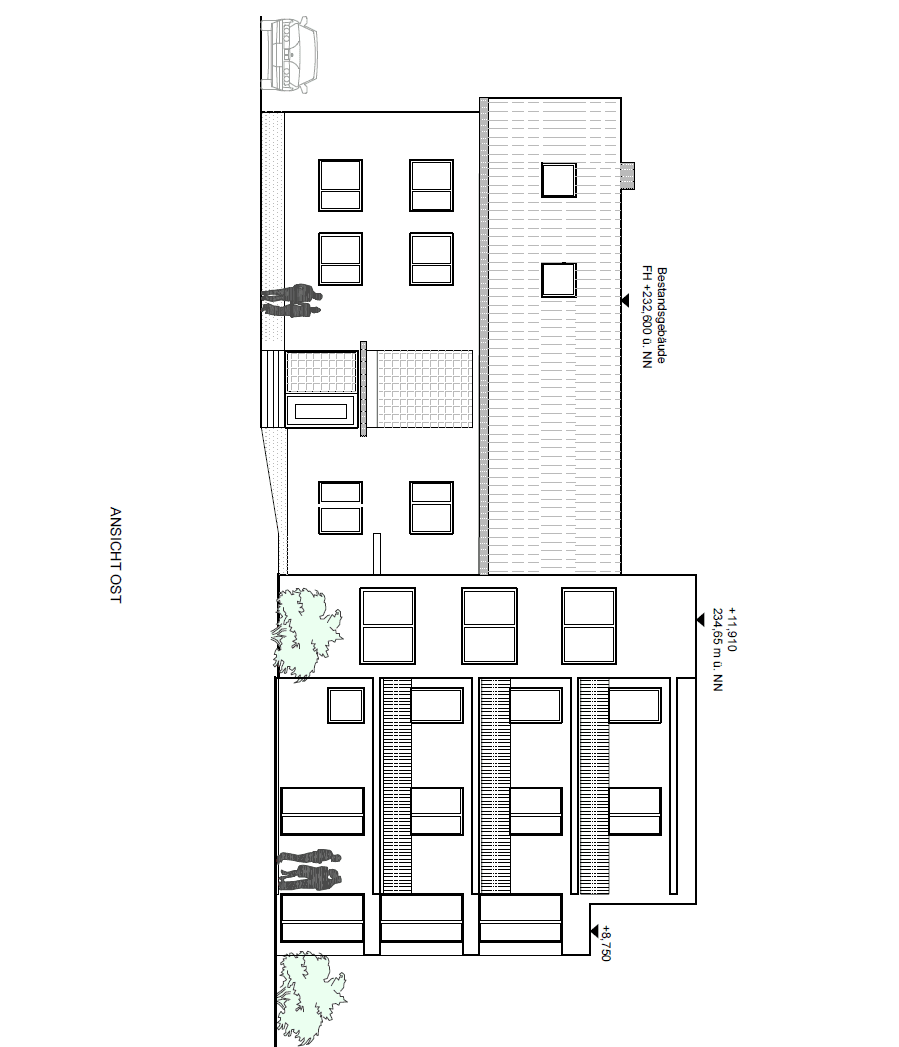
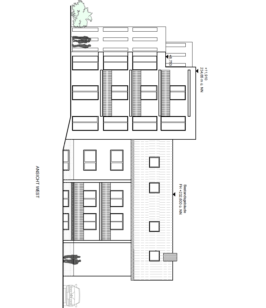
Adjacent to the spa park area of the municipality of Bad Bellingen, a standalone new construction project consisting of seven residential units is being built next to an older existing building. The two apartments on the ground floor, 1st floor, and 2nd floor each offer living areas between 48 m² and 49 m² and two rooms. The penthouse apartment on the 3rd floor is distinguished by an additional bedroom and a living area of over 80 m². All apartments benefit from a bright and pleasant living atmosphere thanks to the abundance of floor-to-ceiling windows. The well-thought-out floor plan with an open living/kitchen and dining area underscores the modernity of the project. The bathrooms in all the apartments feature a curbless shower; the three east-facing ones as well as the large one on the top floor additionally have a window. The apartments on the ground floor are barrier-free accessible and are therefore ideal for senior couples. On the large terrace, you can enjoy either the morning or the evening sun. The apartments on the upper floors are accessed via the staircase, with the number of steps being correspondingly low due to the few floors. Instead of a terrace, these units offer a balcony, and the penthouse apartment even has two.
Bad Bellingen is a community of over 5,000 inhabitants in the northwest of the Lörrach district and is located exactly at the tripoint of Germany, France, and Switzerland. The access to Federal Motorway No. 5 is only a 10-minute drive away, allowing the cities of Lörrach to be reached in 30 minutes, Müllheim in 40 minutes, and Basel also in 30 minutes. The latter is well known for its international airport. The transport network is completed by the regional trains and express services of the Rhine Valley Railway, and Bad Bellingen itself has its own train station.
Since the discovery of thermal springs in the 1950s, the municipality has made a name for itself as a spa and tourist destination beyond the region. The local economy and consequently the local infrastructure benefit enormously from this. To complement the spa park area, which is within walking distance of the new construction project and offers numerous leisure activities such as the popular Balinea thermal bath, a barefoot trail, playground, or fitness parcours, there are various daily convenience stores, a large supermarket, and a range of culinary dining options. The adjacent Rhine River and the nearby Hertinger Forest enhance the natural diversity.
• Sustainable construction in the energy-efficient KfW 40 standard
• Underfloor heating in all rooms (air-to-water heat pump)
• Modern designed living concept with an open kitchen
• Floor-to-ceiling plastic windows (triple-glazed) with electric aluminum shutters
• Flooring: parquet in the living and sleeping areas, and 60x60 cm tiles in the bathroom
• Wall covering: painter's fleece in the living and sleeping areas, and 60x30 cm tiles in the bathroom
• Timeless bathroom design with a curbless shower, window, and sanitary items or fixtures from the renowned companies Duravit and Hansgrohe
Property characteristics
| Age | Over 5050 years |
|---|---|
| Condition | New-build |
| Floor | 2. floor out of 4 |
| Usable area | 49 m² |
| Available from | 01/12/2026 |
|---|---|
| Layout | 2 bedroom |
| Listing ID | 981075 |
| Price per unit | €4,388 / m2 |
What does this listing have to offer?
| Balcony | |
| Parking |
| Basement | |
| MHD 1 minute on foot |
What you will find nearby
Still looking for the right one?
Set up a watchdog. You will receive a summary of your customized offers 1 time a day by email. With the Premium profile, you have 5 watchdogs at your fingertips and when something comes up, they notify you immediately.


















