
Flat for sale 2 bedroom • 49 m² without real estate, Baden-Württemberg
, Baden-WürttembergPublic transport 1 minute of walking • ParkingNow take advantage of the early bird price benefit and save €30,000: reserve the apartment by December 31, 2025, and secure a price advantage of €230,000 instead of €260,000.
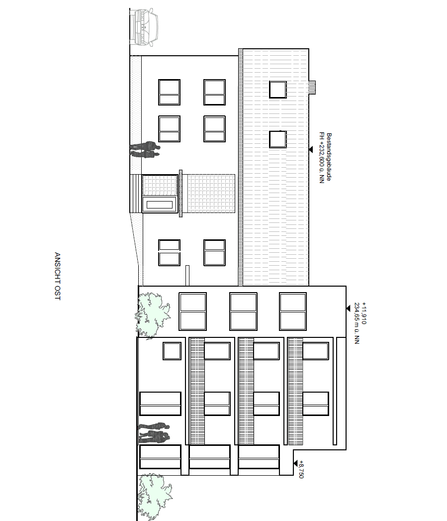
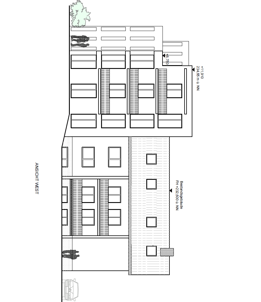
Just outside the spa park grounds of the municipality of Bad Bellingen, adjacent to an older existing building, a standalone new construction project is taking shape, consisting of seven residential units. The two apartments each on the ground floor, first floor, and second floor offer living spaces between 48 m² and 49 m² with two rooms. The penthouse apartment on the third floor features an additional bedroom and a living space of over 80 m². All apartments benefit from a bright and pleasant living climate thanks to the abundance of floor-to-ceiling windows. The thoughtful layout with an open living/kitchen and dining area emphasizes the modernity of the project. The bathrooms of all apartments are equipped with barrier-free showers, with the three east-facing ones as well as the large one in the attic floor additionally featuring a window. The ground floor apartments are accessible without steps and are therefore ideally suited for senior couples. On the large terrace, you can enjoy either the morning or the evening sun. The apartments on the upper floors are accessed via the staircase, and the number of steps is very manageable due to the few floors. These units feature a balcony instead of a terrace, with the penthouse apartment even offering two.
Bad Bellingen is a community of over 5,000 inhabitants in the northwest of the Lörrach district and is located right at the tri-border area of Germany, France, and Switzerland. The entrance to Federal Motorway No. 5 is just a 10-minute drive away, making the cities of Lörrach reachable in 30 minutes, Mulhouse in 40 minutes, and Basel also in 30 minutes. The latter is well known for its international airport. The transportation network is complemented by the regional trains and express services of the Rhine Valley Railway, with Bad Bellingen itself having its own station.
Since the discovery of thermal springs in the 1950s, the community has made a name for itself as a spa and tourist destination beyond the region. The local economy and therefore the infrastructure of the town have greatly benefited from this. Close by, the spa park—with its numerous leisure activities such as the popular Balinea thermal bath, a barefoot path, playground, and fitness course—is accessible on foot from the new project. It is surrounded by various daily shops, a large supermarket, and a range of culinary gastronomy offers. The nearby Rhine and the adjacent Hertinger Forest add to the natural diversity.
– Sustainable construction using the energy-efficient KfW 40 standard
– Underfloor heating in all rooms (air-water heat pump)
– Modernly designed living concept with an open kitchen
– Floor-to-ceiling plastic windows (triple-glazed) with electric aluminum shutters
– Flooring: parquet in the living and sleeping areas and 60x60 cm tiles in the bathroom
– Wall covering: painted non-woven fabric in the living and sleeping areas and 60x30 cm tiles in the bathroom
– Timeless bathroom design with barrier-free shower, window, and sanitary fixtures or fittings from the renowned companies Duravit and Hansgrohe
Property characteristics
| Age | Over 5050 years |
|---|---|
| Condition | New-build |
| Floor | 1. floor out of 4 |
| Usable area | 49 m² |
| Available from | 01/12/2026 |
|---|---|
| Layout | 2 bedroom |
| Listing ID | 981077 |
| Price per unit | €4,286 / m2 |
What does this listing have to offer?
| Balcony | |
| Parking |
| Basement | |
| MHD 1 minute on foot |
What you will find nearby
Still looking for the right one?
Set up a watchdog. You will receive a summary of your customized offers 1 time a day by email. With the Premium profile, you have 5 watchdogs at your fingertips and when something comes up, they notify you immediately.


















