
Flat for sale 3+kk • 87 m² without real estateGelsenkirchen Horst Nordrhein-Westfalen 45899
Gelsenkirchen Horst Nordrhein-Westfalen 45899Public transport 5 minutes of walking • Lift • GarageWelcome to your new home in Gelsenkirchen-Horst – a modern, barrier-free 3.5-room apartment that perfectly combines light, comfort, and functionality. Two covered balconies (balcony + loggia), high-quality underfloor heating, and floor-to-ceiling windows create a pleasant living experience with plenty of daylight and space to relax. Here, you can enjoy peaceful living with short distances – ideal for couples, small families, or anyone who values barrier-free, comfortable living.
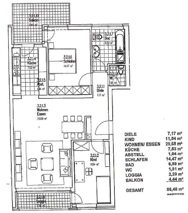
Room Layout & Features
The apartment covers 86.48 m² and impresses with a well-thought-out layout:
• Spacious living room with dining area – bright, open, and with access to the small balcony
• Bedroom with floor-to-ceiling windows and access to the large balcony
• Child’s or guest room with a balcony door
• Separate kitchen (equipped with appliances, recirculating extractor hood, external vent available)
• Daylight bathroom with shower (Grohe rain shower, 2021), bathtub with massage function, and two windows
• Guest WC with exhaust fan
• Hallway with a comfortable layout
The entire apartment is equipped with underfloor heating.
All windows feature electric shutters (new in 2021), and the bathroom has manual shutters with belts.
Two Balconies for Every Moment of the Day
The covered balconies extend your living space outdoors:
• The smaller balcony (living room & child’s room) is ideal for your morning coffee.
• The large balcony (kitchen & bedroom) offers space for a cozy seating area or a dining table for four – perfect for warm summer evenings.
Everyday Comfort
• Underground parking space with wallbox (11 kW, 2023) right at the entrance – ensuring comfortable in- and out-loading
• Cellar room (5.48 m²) as well as a designated space for a washing machine and dryer
• Communal garden with sandbox and seating areas
• Bicycle storage and an elevator available
• DSL & cable connection included along with radio reading of the meters
Modernizations & Condition
The apartment has been regularly modernized and is in excellent, ready-to-move-in condition:
• 2021: Electric shutters, new flooring (in the living, bedroom, and child's room), rain shower (Grohe)
• 2023: Wallbox in the underground garage
• 2025: Digital electricity meter
• Application for a balcony power plant (south-facing, approx. 500–600 kWh per annum) has been submitted – available for private use
The homeowners’ association is very well positioned:
A very good maintenance reserve ensures long-term security.
The monthly service charge (including heating, water, reserve fund, elevator, hallway cleaning, underground garage cleaning, winter service, garden maintenance) amounts to €476.00 with currently three persons.
Conclusion
This apartment combines comfort, quality, and an excellent location.
Barrier-free access, modern equipment, two balconies, and an underground parking space with wallbox make it an ideal home for discerning buyers who value well-maintained, carefree living.
Here you won’t have to compromise – this is an apartment that unites comfort and a zest for life.
Central & Green
Gelsenkirchen-Horst convinces with a pleasant mix of nature, culture, and urban proximity.
The historic Horst Castle with its park, community center, and city library is just a few minutes’ walk away.
Shopping opportunities such as Netto, Rossmann, dm, Penny, and REWE are conveniently within walking distance.
Schools, daycare centers, doctors, and pharmacies are located in the immediate vicinity.
The Schloss Horst bus stop (approximately a 6-minute walk) provides connections to Essen, Bottrop, Gladbeck, and downtown Gelsenkirchen.
The nearby Nordsternpark invites you for walks, bike rides, and cultural events – a highlight for leisure and recreation.
Highlights at a Glance
• Barrier-free, light-filled 3.5-room apartment
• Two covered balconies
• Underground parking space with 11 kW wallbox
• Underfloor heating in all rooms
• Modern sanitary facilities with rain shower & bathtub with whirlpool function
• Well-maintained homeowners’ association with a high reserve
• Central location in Gelsenkirchen-Horst – everything within walking distance
• Application for a balcony power plant (2025)
A comprehensive worry-free package including hallway cleaning, underground garage cleaning, winter service, and elevator
Property characteristics
| Age | Over 5050 years |
|---|---|
| Layout | 3+kk |
| Listing ID | 979683 |
| Usable area | 87 m² |
| Condition | Good |
|---|---|
| Floor | 2. floor |
| EPC | C - Economical |
| Price per unit | €2,759 / m2 |
What does this listing have to offer?
| Balcony | |
| Basement | |
| Lift |
| Wheelchair accessible | |
| Garage | |
| MHD 5 minutes on foot |
What you will find nearby
Still looking for the right one?
Set up a watchdog. You will receive a summary of your customized offers 1 time a day by email. With the Premium profile, you have 5 watchdogs at your fingertips and when something comes up, they notify you immediately.
























