
Flat for sale 3+1 • 94 m² without real estateMünchen Johanneskirchen Bayern 81927
The light-filled 3-room maisonette apartment on the 3rd and 4th floors of a well-maintained multi-family house at Preziosastr. 5a offers an ideal home for families, couples needing extra space, or discerning singles with approximately 93.3 m² of living space. It impresses with an intelligent, spacious layout, abundant natural light, and high-end features. The living concept is clearly geared toward comfort and well-being.
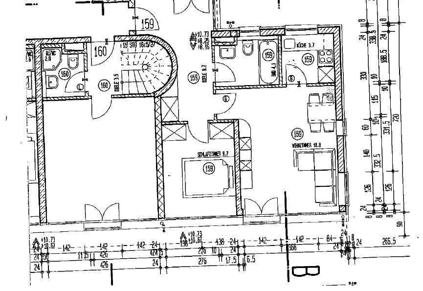
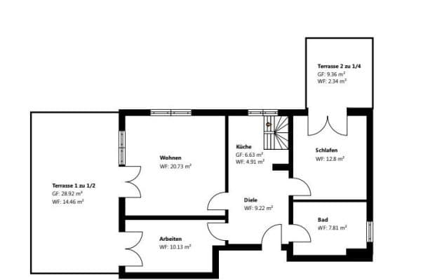
At its heart is the bright living room on the fourth floor (about 30 m²) with its high ceiling and direct access to a spacious roof terrace that can almost be used as a fourth room. The fourth floor is reached via a spiral staircase within the apartment and does not have its own external entrance. Thanks to its eastward orientation, a pleasant indoor climate prevails even on warm summer days. Two generously sized awnings provide additional shade and privacy—perfect for breakfast or unwinding after work.
The separate kitchen is fitted with a high-quality built-in kitchen from the brand Schüller (2010), a granite countertop, as well as electrical appliances from Siemens and Miele. Most of these appliances have been replaced within the last five years.
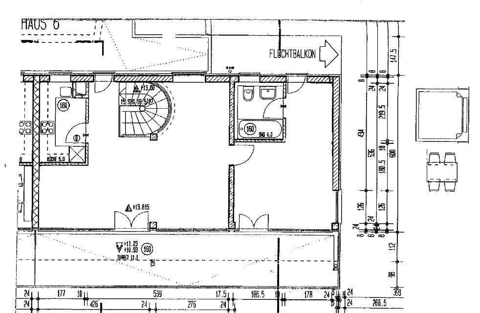
The two spacious bedrooms (19.6 m² and 16.2 m²) face east and can be flexibly used as a children’s room or an office. Departing from the original floor plan, the partition wall between the room originally designated as a “dressing room” and the bedroom on the 4th floor was removed, significantly enhancing the sense of space. Each bedroom has its own bathroom with a shower, sink, mirrored cabinet, and toilet. Both bathrooms were comprehensively modernized in 2012 and 2013, respectively. The daylight bathroom on the 4th floor offers room for a washing machine and dryer (included in the purchase price). The interior bathroom on the 3rd floor is ventilated by an exhaust fan and is well illuminated by five LED ceiling spotlights.
The apartment comes with a basement storage compartment and a parking space (not a duplex). A permit for the installation of a wallbox for the parking space has already been obtained.
Both the apartment and the building have been continuously modernized and are in excellent condition. This charming maisonette thoughtfully combines space, light, and functionality, and is attractive for both owner-occupiers and investors.
Preziosastraße is located in the sought-after Munich district of Bogenhausen, in the family-friendly neighborhood of Johanneskirchen. The area is known for its modern urban planning, spacious green areas, traffic-calmed zones, and its lively community.
The Freischützstraße residential quarter, designed by Steidle + Partner, is considered an architectural highlight of urban residential culture. In the immediate vicinity there are playgrounds, sports fields, daycares, and an elementary school, all accessible without having to cross busy streets. A secondary school and a high school are about a 15-minute walk away, and a Waldorf school can be reached in six minutes by car or eight minutes by bicycle.
For daily needs, there are two nearby shopping centers with supermarkets, shops, restaurants, and a beer garden. The Englischer Garten is also just a short walk away: within 20 minutes you can reach Emmeramsmühle, the gateway to the Isar meadows, and expansive green areas.
Transportation connections are excellent: the Johanneskirchen S-Bahn station (an eight-minute walk away) connects to the main train station and the airport in about 20 minutes. Bus and tram lines are also nearby. By car, you can reach the A9 toward Nuremberg in ten minutes. Despite the excellent accessibility, the location remains pleasantly quiet.
For leisure activities, the Feringasee in the north, the Isar riverbank in the west, and Cosimabad in the south are all inviting destinations that are easily accessible by bicycle or tram.
Johanneskirchen and the Freischützstraße residential quarter epitomize modern, sustainable, and family-friendly living, making them perfect for anyone who wishes to combine urban life with a connection to nature.
Included in the purchase price are the built-in kitchen, awnings, washing machine + dryer (Miele), and several custom-built pieces of furniture and appliances.
The apartment will be available for occupancy at the beginning of March.
Property characteristics
| Age | Over 5050 years |
|---|---|
| Layout | 3+1 |
| Listing ID | 975387 |
| Usable area | 94 m² |
| Condition | Good |
|---|---|
| Floor | 3. floor out of 5 |
| EPC | D - Less economical |
| Price per unit | €7,394 / m2 |
What does this listing have to offer?
| Basement | |
| Lift |
| Garage | |
| MHD 0 minutes on foot |
What you will find nearby
Still looking for the right one?
Set up a watchdog. You will receive a summary of your customized offers 1 time a day by email. With the Premium profile, you have 5 watchdogs at your fingertips and when something comes up, they notify you immediately.


























