
House for sale 5+1 • 128 m² without real estateHintergasse / Am Martinsberg, , Rhineland-Palatinate
Overall, on the approximately 1,580.00 m² property, 2 terraced houses and 1 semi-detached house will be built.
Here, a semi-detached house including the plot and parking spaces is for sale.
The property owner has obtained the building permit and now intends to build on this plot and sell it with a residential building.
All necessary construction services will be provided by Lebensplatz Projekte GmbH.
The houses will be constructed using timber construction with appropriate thermal insulation and a photovoltaic system.
This makes KfW funding possible.
The houses impress with plenty of space, low heating costs, and many extras.
The local community of Siefersheim is located in the western part of Rheinhessen, in the district of Alzey-Worms, and is part of the collective municipality of Wöllstein in Rhineland-Palatinate. The wine village is situated about 10 km west of Alzey and approximately 15 km east of Bad Kreuznach, nestled in a hilly cultivated landscape between vineyards, meadows, and nature reserves.
This location also makes the area attractive to tourists – for example, the Hiwweltour “Heideblick” passes through the district.
In terms of transportation, Siefersheim is well connected via the nearby A61. Regional bus lines as well as a community bus provide connections to the surrounding area and the collective municipality administration in Wöllstein.
In Wöllstein (about 4 km away) you will find a good selection of shopping facilities: REWE, ALDI, Netto, a drugstore, several bakeries, and butchers. Additionally, there are doctors, pharmacies, and various smaller service providers available.
The following services are included in the purchase price:
• Earthworks for the foundation slab and the preparation of the outdoor areas
• All utility connections for the houses
• All drainage systems
• Paving for paths, terraces, and parking areas
• Storage compartment dividers on the terraces
• Housing for the garbage containers
• Barbed wire fence along the property boundary
• Topsoil with lawn seeding
• 2 external parking spaces with a charging station (wallbox)
• House built in timber construction with mineral insulation
• Heat pump for heating and hot water
• Central ventilation system with heat recovery
• Underfloor heating
• Floor finishes of your choice
• Photovoltaic system of approximately 5 kWp and battery storage of approximately 5 kWh
• Plastic windows with electric shutters
• High-quality aluminum front door
• Solid staircase with hardwood steps (oak)
• Ancillary construction costs and energy consultant
Not included are the additional purchase costs and the costs of the partition declaration.
Property characteristics
| Age | Over 5050 years |
|---|---|
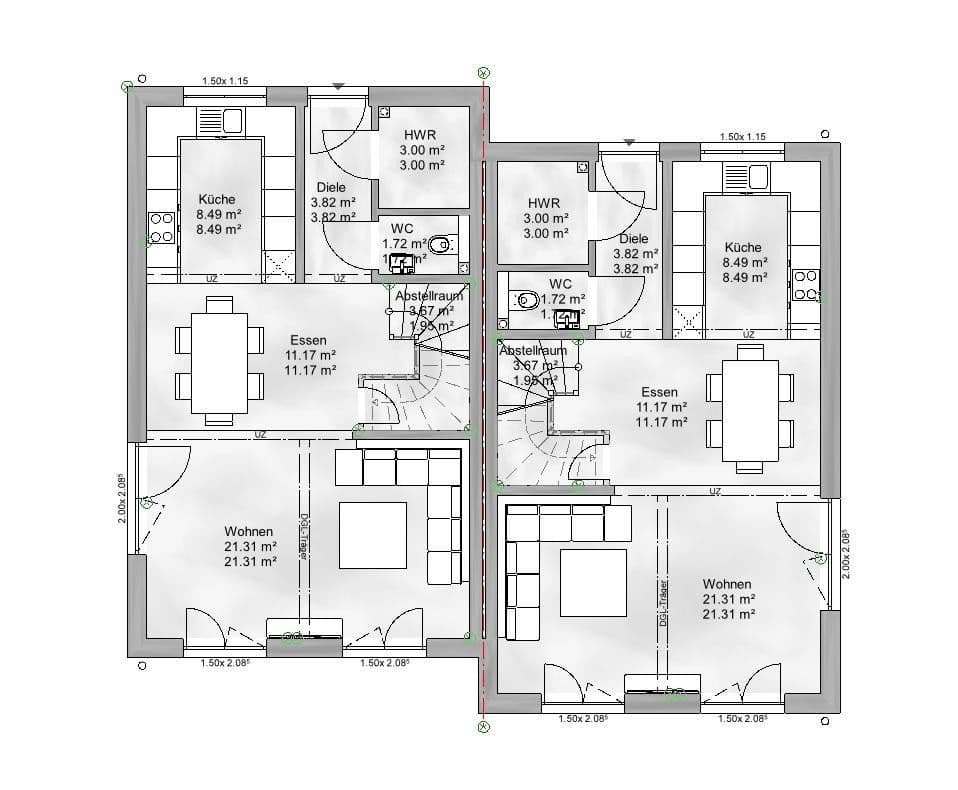
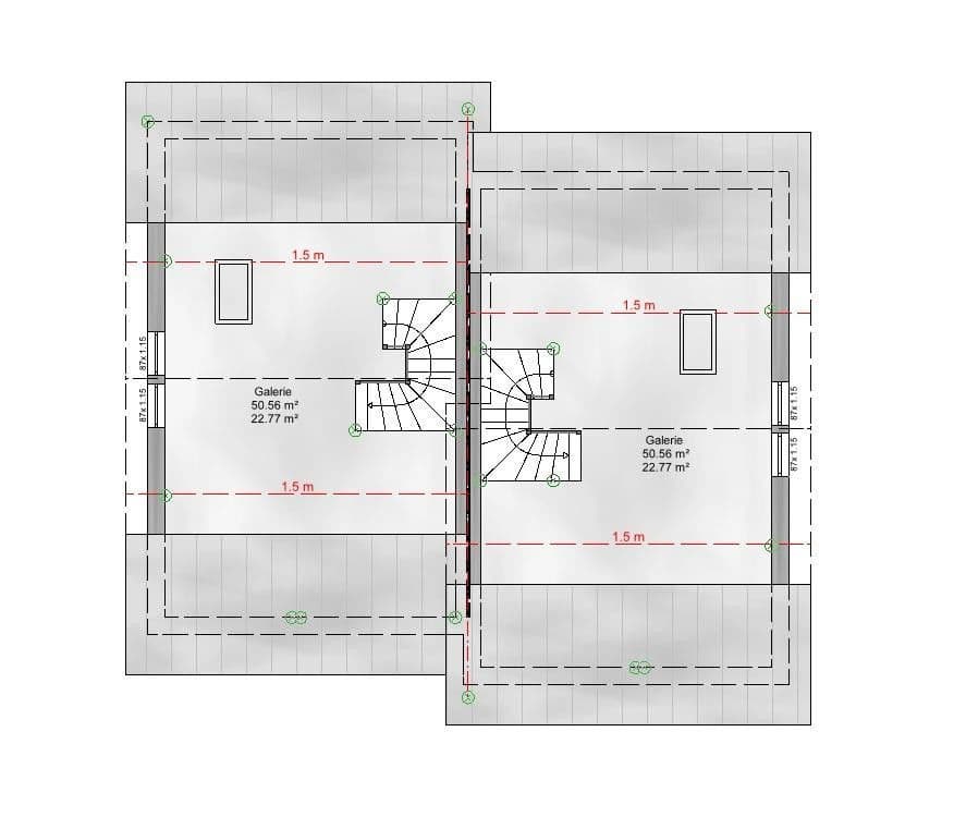
| Layout | 5+1 |
| Usable area | 128 m² |
| Total floors | 2 |
| Condition | New-build |
|---|---|
| Listing ID | 966720 |
| Land space | 208 m² |
| Price per unit | €3,891 / m2 |
What does this listing have to offer?
| Parking | |
| Terrace |
| MHD 3 minutes on foot |
What you will find nearby
Still looking for the right one?
Set up a watchdog. You will receive a summary of your customized offers 1 time a day by email. With the Premium profile, you have 5 watchdogs at your fingertips and when something comes up, they notify you immediately.








