
House for sale 5+1 • 127 m² without real estateHintergasse / Am Martinsberg, , Rhineland-Palatinate
Here is the translation of the text:
Overall, on the approximately 1,580.00 m² plot, one semi-detached house and two terraced houses are being developed. This is one of four end row houses with its own plot. The owner of the property has received the building permit and now wishes to develop the plot and sell it as a residential building. All necessary construction services will be provided by Lebensplatz Projekte GmbH. The houses will be built using timber construction with appropriate thermal insulation and fitted with a photovoltaic system. This makes KfW funding possible. The houses impress with plenty of space, low heating costs, and many extras.
The municipality of Siefersheim is located in the western part of Rheinhessen, in the district of Alzey-Worms, and is part of the Verbandsgemeinde Wöllstein in Rhineland-Palatinate. The wine village is situated approximately 10 km west of Alzey and about 15 km east of Bad Kreuznach, nestled in a hilly cultural landscape between vineyards, meadows, and nature reserves. This location also makes the area attractive for tourism – for example, the Hiwweltour “Heideblick” passes through the district.
In terms of transportation, Siefersheim is well connected via the nearby A61. Regional bus lines as well as a community bus provide access to the surrounding area and the collective municipality administration in Wöllstein. In Wöllstein (approximately 4 km away) you will find a good selection of shopping options: REWE, ALDI, Netto, a drugstore, several bakeries, and butcher shops. In addition, there are doctors, pharmacies, and various small service providers available.
The following services are included in the purchase price:
– Earthworks for the foundation slab and the landscaping of the outdoor areas
– All utility connections for the houses
– All drainage systems
– Paving for pathways, terraces, and parking areas
– Storage partitions on the terraces
– Enclosure of the waste containers
– Barbed wire fence along the property boundary
– Topsoil with seeding for a lawn
– 2 outdoor parking spaces including one space with a wallbox
– House constructed with timber framing and mineral insulation
– Heat pump for heating and hot water
– Central ventilation system with heat recovery
– Underfloor heating
– Flooring according to choice
– Photovoltaic system of approximately 5 kWp and battery storage of about 5 kWh
– uPVC windows with electric shutters
– High-quality aluminum front door
– Solid staircase with solid wood steps (Eiche)
– Ancillary construction costs and energy consultant
Purchase-related ancillary costs and the costs for the partition declaration are not included.
Property characteristics
| Age | Over 5050 years |
|---|---|
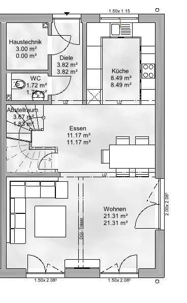
| Layout | 5+1 |
| Usable area | 127 m² |
| Total floors | 2 |
| Condition | New-build |
|---|---|
| Listing ID | 966694 |
| Land space | 232 m² |
| Price per unit | €3,984 / m2 |
What does this listing have to offer?
| Parking | |
| Terrace |
| MHD 3 minutes on foot |
What you will find nearby
Still looking for the right one?
Set up a watchdog. You will receive a summary of your customized offers 1 time a day by email. With the Premium profile, you have 5 watchdogs at your fingertips and when something comes up, they notify you immediately.








