
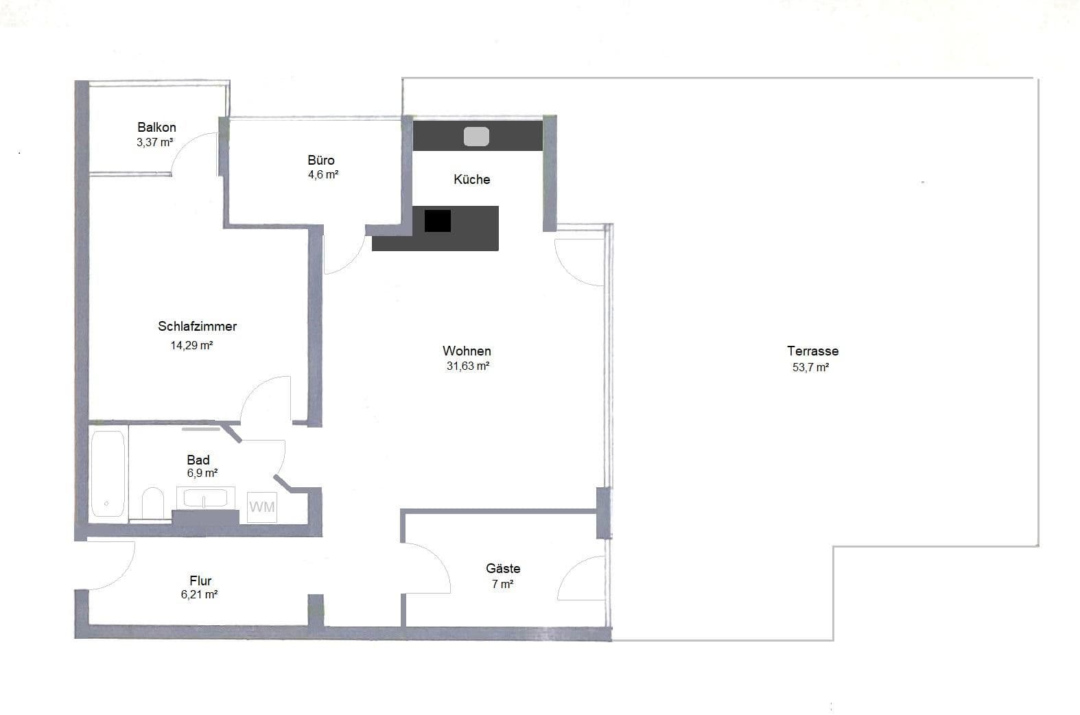
Flat for sale 3+kk • 100 m² without real estateHamburg Niendorf Hamburg 22455
Hamburg Niendorf Hamburg 22455Public transport 1 minute of walking • Lift • GarageFor sale is an extensively modernized 3.5-room condominium with a large roof terrace, located in the beautiful Hamburg-Niendorf. The recently completed work included a complete redesign of the apartment, including the bathroom and kitchen, among other features with finely plastered and polished walls, large format tiles measuring 60x120 cm and 80x80 cm, and LED ceiling spotlights in the hallway and bathroom. The new, open kitchen is equipped with modern handleless fronts, a dishwasher, an induction cooktop, a fridge/freezer combination, and much more.
The apartment comes with an underground parking space, which is already included in the price. The condominium fees include all common items such as reserve funds, management fees, heating costs, other operating expenses, as well as, in this case, the costs for hot water production by the central heating system plus the water itself.
The building, constructed in 1972, is well maintained, with many of the owners living in it themselves and continually keeping it in good repair.
The apartment is located at Paul-Sorge-Straße 142b, 22455 Hamburg-Niendorf. All daily necessities can be found within walking distance. The connection to public transportation is also very good, thanks to the U-Bahn station U2 Schippelsweg right at the doorstep.
Property characteristics
| Age | Over 5050 years |
|---|---|
| Condition | After reconstruction |
| Floor | 2. floor |
| Usable area | 100 m² |
| Available from | 05/12/2025 |
|---|---|
| Layout | 3+kk |
| Listing ID | 963563 |
| Price per unit | €4,250 / m2 |
What does this listing have to offer?
| Balcony | |
| Garage | |
| MHD 1 minute on foot |
| Basement | |
| Lift |
What you will find nearby
Still looking for the right one?
Set up a watchdog. You will receive a summary of your customized offers 1 time a day by email. With the Premium profile, you have 5 watchdogs at your fingertips and when something comes up, they notify you immediately.



















