
House for sale 4+1 • 124 m² without real estateFrauental Steiermark 8523
Compact and well thought-out – a spatial wonder on a small floor plan.
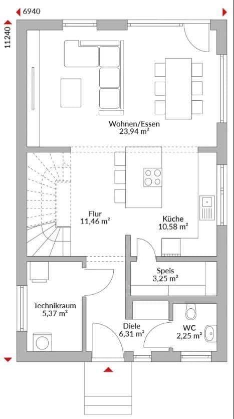
Despite the limited footprint, this house meets all the requirements of modern living. The kitchen is functionally designed, and the utility room provides ample space for building services and storage. The bathroom is equipped with both a bathtub and a shower, and an additional guest WC is available. The hallway offers generous closet space, and the children’s rooms and bedrooms provide good storage options. The living/dining area impresses with large windows and open transitions that visually enlarge the space.
Ideal for anyone who values the essentials – without compromising on comfort.
On your property or …
We can currently offer the following plots:
Güssing: Approximately 2,600 m² – plot sizes and locations freely selectable
-----------------------------------------------------------------------------------------
Pichling near Stainz: Approximately 7,500 m² building land – plot sizes and locations freely selectable
-----------------------------------------------------------------------------------------
Kraubath in Groß St. Florian: Approximately 5,000 m² building land – plot sizes and locations freely selectable
-----------------------------------------------------------------------------------------
8530 Deutschlandsberg: Approximately 2,180 m² building land. Approved project with 4 living units.
The owner is still open to further offers; plot sizes and locations are freely selectable
-----------------------------------------------------------------------------------------
Oberer Bahnweg 14, 8523 Frauental: 1,000 m² building land with an approved semi-detached house.
The construction project is still freely selectable
-----------------------------------------------------------------------------------------
The plot owner and the house builder are not in a close economic relationship!
Single-family house with 4 rooms – exclusive features!
Turnkey, including delivery and installation from the top of the foundation.
️ Snow load reinforced roof structure
️ Air-to-water heat pump and underfloor heating
️ Room ventilation with heat recovery (summer cooling)
️ Electric shutters throughout the entire house
️ Floor finishes and sanitary fixtures freely selectable
️ Photovoltaic preparation
️ All-round worry-free package
Plots ranging from 500 m² to 1,500 m² are available upon request!
DIY potential possible – entirely according to your ideas.
Consultation & Sales:
Ms. Tatjana Wyss
+43 676 553 77 47
tatjana.wyss@danwood.at
Secure your initial consultation now!
Request a building description and catalogs!
For this, it is necessary for you to provide your telephone number, email address, and physical address.
Thank you very much!
FINANCING CALCULATOR
https://www.finaustria.at/finanzierungsrechner
MORE OFFERS!
https://qr.scan.page/uploads/pdf/1752348182250_686ba1debcb60.pdf
Property characteristics
| Condition | New-build |
|---|---|
| Listing ID | 961308 |
| Land space | 1 m² |
| Price per unit | €2,577 / m2 |
| Layout | 4+1 |
|---|---|
| Usable area | 124 m² |
| Total floors | 2 |
What does this listing have to offer?
| Garage |
| MHD 0 minutes on foot |
What you will find nearby
Still looking for the right one?
Set up a watchdog. You will receive a summary of your customized offers 1 time a day by email. With the Premium profile, you have 5 watchdogs at your fingertips and when something comes up, they notify you immediately.



















