
House for sale 4+1 • 124 m² without real estateDeutschlandsberg Steiermark 8530
Compact and well thought-out – a space wonder on a small footprint.
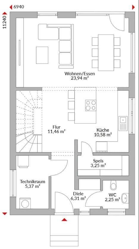
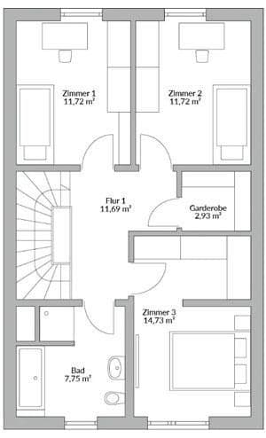
Despite its limited area, this house meets all the requirements of modern living. The kitchen is designed functionally, and the technical room offers ample space for building services and storage. The bathroom is equipped with both a bathtub and a shower, and there is an additional guest WC available. The entrance hall provides generous closet space, while the children’s and other bedrooms offer good storage options. The living/dining area impresses with large windows and open transitions that visually expand the space.
Ideal for anyone who values the essentials – without sacrificing comfort.
On your property or …
We can currently offer the following plots:
Güssing: Approximately 2,600 m² – Plot sizes and locations are freely selectable.
-----------------------------------------------------------------------------------------
Pichling near Stainz: Approximately 7,500 m² of buildable land – Plot sizes and locations are freely selectable.
-----------------------------------------------------------------------------------------
Kraubath in Groß St. Florian: Approximately 5,000 m² of buildable land – Plot sizes and locations are freely selectable.
-----------------------------------------------------------------------------------------
8530 Deutschlandsberg: Approximately 2,180 m² of buildable land. Approved project with 4 residential units.
The owner is still open to further offers – plot sizes and locations are freely selectable.
-----------------------------------------------------------------------------------------
Oberer Bahnweg 14, 8523 Frauental: 1,000 m² of buildable land with an approved semi-detached house project – still freely selectable.
-----------------------------------------------------------------------------------------
The property owner and the builder are not in a close economic relationship!
Single-family house with 4 rooms – Exclusive features!
Turnkey including delivery and assembly from the top of the foundation.
• Snow load reinforced roof structure
• Air-to-water heat pump and underfloor heating
• Residential ventilation with heat recovery (summer cooling)
• Electric shutters throughout the house
• Choice of floor coverings and sanitary fixtures
• Photovoltaic preparation
• An all-around worry-free package
Self-build is possible – entirely according to your wishes.
Consultation & Sales:
Ms. Tatjana Wyss
+43 676 553 77 47
tatjana.wyss@danwood.at
Secure your initial consultation now!
Request a building description and catalogs!
For this, it is necessary that you provide your telephone number, email address, and physical address.
Thank you!
FINANCIAL CALCULATOR
https://www.finaustria.at/finanzierungsrechner
MORE OFFERS!
https://qr.scan.page/uploads/pdf/1752348182250_686ba1debcb60.pdf
Property characteristics
| Condition | New-build |
|---|---|
| Listing ID | 961306 |
| Land space | 1 m² |
| Price per unit | €2,577 / m2 |
| Layout | 4+1 |
|---|---|
| Usable area | 124 m² |
| Total floors | 2 |
What does this listing have to offer?
| Garage |
| MHD 1 minute on foot |
What you will find nearby
Still looking for the right one?
Set up a watchdog. You will receive a summary of your customized offers 1 time a day by email. With the Premium profile, you have 5 watchdogs at your fingertips and when something comes up, they notify you immediately.



















