
House for sale 4+1 • 124 m² without real estateGroß St. Florian Steiermark 8524
Despite its small footprint, this house meets all the demands of modern living. This space wonder satisfies all the requirements of contemporary living – with maximum functionality. Ideal for everyone who plans deliberately and does not want to miss out on anything. A well-thought-out house that surprises: with a light-filled living area, clever room layout, and everything that modern living demands. For people who love the essentials – and value comfort.
Functional, efficient, comfortable: This house shows how much quality of life can be found in compact architecture. For those who plan with foresight – and use space intelligently.
On your property, throughout AUSTRIA
We can currently offer the following properties:
Güssing: Approximately 2,600m² property sizes and locations freely selectable
-----------------------------------------------------------------------------------------
Pichling near Stainz: approximately 7,500m² building land with property sizes and locations freely selectable
-----------------------------------------------------------------------------------------
Kraubath in Groß St. Florian: Approximately 5,000m² building land with property sizes and locations freely selectable
-----------------------------------------------------------------------------------------
8530 Deutschlandsberg: Approximately 2,180m² building land. Approved project with 4 residential units
The owner is still open to further offers – property sizes and locations freely selectable
-----------------------------------------------------------------------------------------
Oberer Bahnweg 14, 8523 Frauental: 1,000m² building land with an approved semi-detached house building project freely selectable
-----------------------------------------------------------------------------------------
The property owner and the house builder are not in a close economic relationship!
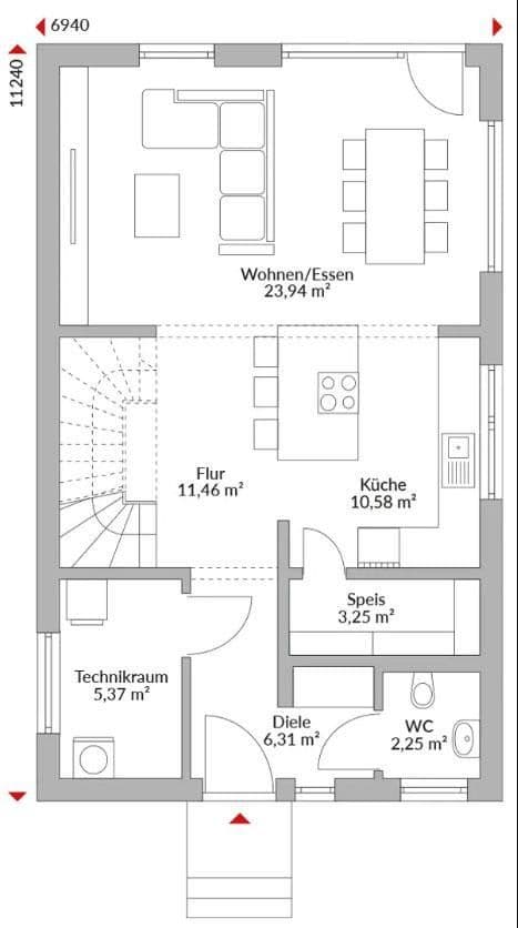
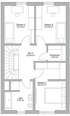
Detached house with 4 rooms – Exclusive features!
Turnkey including delivery & installation from the top of the foundation.
️ Snow load-reinforced roof structure
️ Air-water heat pump & underfloor heating
️ Residential ventilation with heat recovery (summer cooling)
️ Electric shutters throughout the house
️ Choice of floor coverings & sanitary fixtures
️ Photovoltaic preparation
️ All-round care package
Properties from 500 m² up to 1,500 m² available on request!
Personal input possible – entirely according to your ideas.
Consultation & Sales:
Ms. Tatjana Wyss
+43 676 553 77 47
tatjana.wyss@danwood.at
Secure your initial consultation now!
More offers:
https://qr.scan.page/uploads/pdf/1752348182250_686ba1debcb60.pdf
Request a building description and catalogs!
To do so, it is necessary that you provide your telephone number, email address, and address.
Thank you very much!
Property characteristics
| Condition | New-build |
|---|---|
| Listing ID | 961307 |
| Land space | 1 m² |
| Price per unit | €2,577 / m2 |
| Layout | 4+1 |
|---|---|
| Usable area | 124 m² |
| Total floors | 2 |
What does this listing have to offer?
| Garage |
| MHD 2 minutes on foot |
What you will find nearby
Still looking for the right one?
Set up a watchdog. You will receive a summary of your customized offers 1 time a day by email. With the Premium profile, you have 5 watchdogs at your fingertips and when something comes up, they notify you immediately.


















