
House for sale 4+1 • 124 m² without real estatePichling bei Stainz Steiermark 8524
Below is the translation of the text into English:
Despite its small footprint, this house meets all the demands of modern living. This spatial marvel satisfies all the requirements of contemporary living – with maximum functionality. Ideal for those who plan deliberately and do not want to compromise on anything. A well-thought-out house that surprises: featuring a light-flooded living area, clever room layout, and everything that modern living requires. For people who love the essentials – and appreciate comfort.
Functional, efficient, comfortable: This house shows how much quality of life can be found in compact architecture. For everyone planning with vision – and using space intelligently.
On your property or …
We can currently offer the following properties:
Güssing: Approximately 2,600 m² property sizes and plot locations freely selectable
-----------------------------------------------------------------------------------------
Pichling near Stainz: Approximately 7,500 m² building land, property sizes and plot locations freely selectable
-----------------------------------------------------------------------------------------
Kraubath in Groß St. Florian: Approximately 5,000 m² building land, property sizes and plot locations freely selectable
-----------------------------------------------------------------------------------------
8530 Deutschlandsberg: Approximately 2180 m² building land. Approved project with 4 residential units
Owner is still open to further offers – property sizes and plot locations freely selectable
-----------------------------------------------------------------------------------------
Oberer Bahnweg 14, 8523 Frauental: 1000 m² building land with an approved semi-detached house
Construction project freely selectable
-----------------------------------------------------------------------------------------
The property owner and the house builder are not in a close economic relationship!
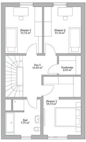
Single-family house with 4 rooms – Exclusive equipment!
Turnkey including delivery & assembly from the top of the foundation.
️ Snow load reinforced roof truss
️ Air-water heat pump & underfloor heating
️ Ventilation system with heat recovery (summer cooling)
️ Electric roller shutters throughout the entire house
️ Floor coverings & sanitary fixtures freely selectable
️ Photovoltaic preparation
️ All-around worry-free package
Self-performance possible – entirely according to your ideas.
Consultation & Sales:
Ms. Tatjana Wyss
+43 676 553 77 47
tatjana.wyss@danwood.at
Secure your initial consultation now!
Request a building description and catalogs!
To do so, it is necessary to provide your telephone number, email address, and address.
Thank you!
FINANCING CALCULATOR
https://www.finaustria.at/finanzierungsrechner
MORE OFFERS!
https://qr.scan.page/uploads/pdf/1752348182250_686ba1debcb60.pdf
Property characteristics
| Condition | New-build |
|---|---|
| Listing ID | 961305 |
| Land space | 1 m² |
| Price per unit | €2,577 / m2 |
| Layout | 4+1 |
|---|---|
| Usable area | 124 m² |
| Total floors | 2 |
What does this listing have to offer?
| Garage |
| MHD 3 minutes by car |
What you will find nearby
Still looking for the right one?
Set up a watchdog. You will receive a summary of your customized offers 1 time a day by email. With the Premium profile, you have 5 watchdogs at your fingertips and when something comes up, they notify you immediately.



















