
House for sale 5+1 • 132 m² without real estateMünchen Trudering Bayern 81827
The terraced mid-house, with construction beginning in 2008 and completion in 2009, was built using solid brick construction.
It is part of a three-unit block. The neighboring houses are semi-detached homes and single-family houses.
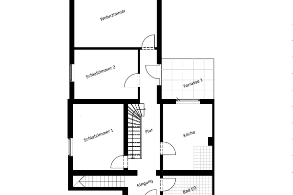
On the ground floor, there is the entrance area with a cloakroom, a guest WC, and the fitted kitchen with a glass sliding door opening onto the living and dining area.
From the bright living room with a fireplace connection, two floor-to-ceiling double doors open onto the terrace and garden.
The upper floor offers one room, also with two floor-to-ceiling double doors, as well as another room.
The bathroom is equipped with a bathtub and a separate shower.
The two bright rooms in the attic are distinguished by particularly large dormer windows.
Underfloor, all water connections for an additional bathroom are available here.
In the basement, you will find the hobby/guest room with parquet flooring, underfloor heating, and two large overhead skylights; the cellar; the large laundry/workroom; as well as the heating system (which is space-savingly installed under the staircase).
The house is located in the southern part of the Waldtrudering district.
The nearest bus stop, Am Hochacker (serving 3 bus lines), is 100 meters away.
From here, you can reach two subway and two S-Bahn stations (in 5 and 10 minutes, respectively).
Also 100 meters away is the Waldtrudering Forest, a landscape conservation area.
A daycare center, kindergarten, and schools are within an 800-meter radius.
There are daily necessities shops within 800 meters (two different options), another shopping center 1.2 km away, and the Life München and PEP shopping centers are each 2.5 km away (or a 6-8 minute bus ride).
The house is oriented to the southwest.
All rooms in the house are equipped with underfloor heating (except the cellar and the laundry/workroom).
All rooms have electric shutters.
In the entrance area, kitchen, bathroom, guest WC, and cellar the tiling is in a light color,
while in all other rooms, including the hallways, there is light parquet flooring.
The terrace is covered but not enclosed.
The garage is a single garage (additional cost of €35,000).
The property is actually divided into separate lots.
Property characteristics
| Age | Over 5050 years | 
|---|---|
| Layout | 5+1 | 
| EPC | B - Very economical | 
| Land space | 100 m² | 
| Condition | Good | 
|---|---|
| Listing ID | 960983 | 
| Usable area | 132 m² | 
| Price per unit | €7,917 / m2 | 
What does this listing have to offer?
| Basement | |
| MHD 4 minutes on foot | 
| Garage | |
| Terrace | 
What you will find nearby
Still looking for the right one?
Set up a watchdog. You will receive a summary of your customized offers 1 time a day by email. With the Premium profile, you have 5 watchdogs at your fingertips and when something comes up, they notify you immediately.





















