
Flat for sale 2+kk • 58 m² without real estateMünchen Forstenried Forstenried Bayern 81476
This stylish 2-room apartment is located on the top floor of a very well-maintained multi-family building constructed in 2014, in a quiet and highly sought-after residential area of Munich-Forstenried. With 58 m² of living space, it impresses with a cleverly designed layout and a generously open living feel – ideal for singles, couples, or investors.
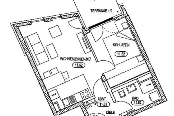
With ceiling heights of over 3.5 meters, an exceptionally airy and striking ambiance is created. The bright living and dining area delights with floor-to-ceiling windows that allow plenty of daylight to flood in and provide access to a sunny balcony – perfect for enjoying relaxed outdoor evenings after work.
The modern, open-plan kitchen seamlessly integrates into the living area and offers an excellent setting for cooking and dining. The tranquilly situated bedroom provides ample space for a double bed and a large wardrobe. In the elegant, light-filled bathroom, you will find high-quality sanitary fixtures and a comfortable bathtub. Additionally, a practical storage room within the apartment ensures extra tidiness and storage space.
High-end features such as solid wood parquet flooring, triple-glazed windows, and underfloor heating create a cozy living climate throughout the year. A basement storage compartment as well as an optionally available underground parking space complete this attractive real estate offer.
The property is located in one of Munich’s most popular residential areas, in the peaceful and established neighborhood of Forstenried in the southwest of the state capital. Derfflingerstraße 9 stands out due to its pleasantly green surroundings, well-kept neighborhood, and first-class infrastructure – ideal for anyone looking to combine urban living with a high quality of life.
Forstenried is part of the Thalkirchen-Obersendling-Forstenried-Fürstenried-Solln district and is renowned for its family-friendly, safe, and nature-oriented atmosphere. In the immediate vicinity, you will find a variety of shopping opportunities for daily necessities, doctors, pharmacies, cafés, as well as kindergartens and schools – all conveniently within walking distance.
Transportation is also well catered for: The Forstenrieder Allee U-Bahn station (U3) is just a few minutes’ walk away, providing direct access to downtown Munich in about 15 minutes. Via the nearby Mittlerer Ring and the A95, you can quickly reach other districts as well as the Bavarian pre-alpine region.
For nature lovers and outdoor enthusiasts, the surrounding area offers a wealth of recreational options: the Forstenrieder Park, the forest adventure center, and numerous cycling and hiking trails invite you to enjoy relaxing moments in the greenery – relaxation right at your doorstep.
This apartment is sold directly by the owner – without an agent and without additional commission. For you as the buyer, this means a significant price advantage of approximately EUR 19,000, as no brokerage fee is charged.
Property characteristics
| Age | Over 5050 years |
|---|---|
| Layout | 2+kk |
| Listing ID | 960949 |
| Usable area | 58 m² |
| Condition | Very good |
|---|---|
| Floor | 2. floor out of 3 |
| EPC | C - Economical |
| Price per unit | €8,483 / m2 |
What does this listing have to offer?
| Balcony | |
| Garage |
| Basement | |
| MHD 1 minute on foot |
What you will find nearby
Still looking for the right one?
Set up a watchdog. You will receive a summary of your customized offers 1 time a day by email. With the Premium profile, you have 5 watchdogs at your fingertips and when something comes up, they notify you immediately.














