
House for sale 5+1 • 141 m² without real estate, Brandenburg
, BrandenburgPublic transport 6 minutes of walking • ParkingProperty Description
Direct sale from the owner – no broker commission!
Welcome to your new oasis in Eichwalde near Berlin – a charming, green location by Zeuthen Lake. Here stands a modern family house (new build 2025) with a garden that perfectly combines tranquility, comfort, and individuality. The garden is not yet finished and thus offers plenty of space for your own design ideas – whether natural, family-friendly, or low-maintenance.
Just a few minutes’ walk separate you from the water and everyday life:
• 3 minutes to the swimming area at Zeuthen Lake
• 1 minute to the nearest bus stop
A home for families, nature lovers, and watersports enthusiasts who are looking for something special.
________________________________________
Features
The house was built in accordance with the latest energy regulations (EnEV 2024) and impresses with its well-thought-out room layout, high-quality materials, and state-of-the-art building technology.
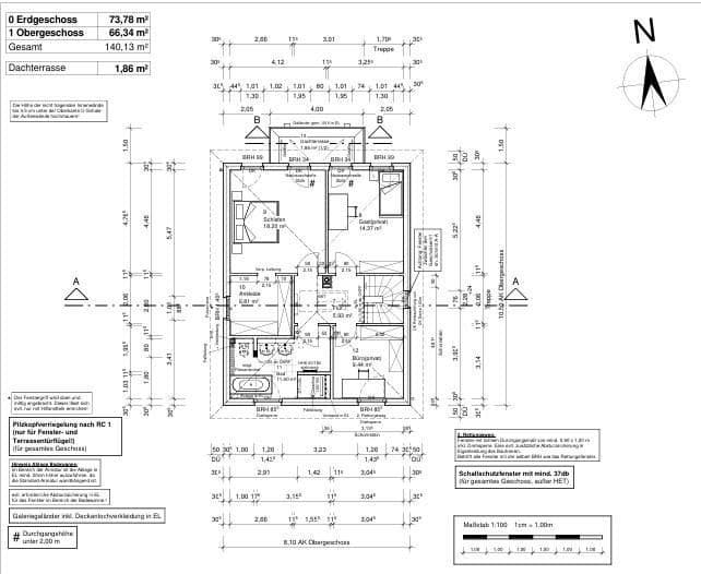
Ground Floor:
• Bright, spacious living and dining area with floor-to-ceiling windows
• Fireplace connection prepared
• Access to the terrace via a bay window
• Spacious kitchen/dining area with room for individual design (the kitchen can be created according to your personal ideas)
• Guest shower room with high-quality sanitary fixtures
• Utility room equipped with modern technology
Upper Floor:
• Two bedrooms/guest rooms, each with balcony access
• Additionally, a dressing room and an office/home office
• Large family bathroom with:
o Bathtub
o Large shower
o Double sink
o Hand-picked tiles & designer faucets
Technology & Energy:
• Construction year 2024 / Completion 2025
• Energy efficient according to the latest standards
• Photovoltaic system prepared (empty conduits available)
• Underfloor heating, modern heating technology, fiber optic connection
• All media connections in line with current technological standards
Location, Location, Location – only 3 minutes to Zeuthen Lake!
Start your day with the sunrise over the water – or enjoy the view right from one of the balcony rooms of your new home.
Eichwalde is pure idyll!
Located just outside the capital and in the green belt area, Eichwalde is an independent municipality in the Dahme-Spreewald district. Its location at the southeastern edge of Berlin offers the perfect combination of nature, relaxation, and proximity to the city.
The family house is situated on a quiet side street, only a 3-minute walk from Zeuthen Lake or the Dahme River. The area is characterized by well-maintained single-family houses on generous plots in a purely residential neighborhood without through traffic – here you can enjoy peace, privacy, and a rural atmosphere.
In the summer months, the nearby swimming area is a popular destination for swimmers and water sports enthusiasts, while in winter a soothing silence prevails. Walks along Havellandstraße or the banks of the Dahme invite you to slow down.
Along the water, you will find cozy excursion spots, cafés, and marinas – ideal for boat owners, sailors, or stand-up paddlers. Hardly any region around Berlin offers so many opportunities for leisure and nature experiences right on your doorstep.
Transport Connections & Infrastructure:
Just a few meters from the house, a bus stop serves routes to the S-Bahn station Zeuthen and S-Bahn station Königs Wusterhausen. Despite the close proximity to all transport links, the house is pleasantly quiet on a side street.
The S-Bahn station Eichwalde is approximately a 7-minute bike ride or 5 minutes by car away. From there, lines S8 and S46 quickly and directly connect you to Berlin-Westend, Südkreuz, or Königs Wusterhausen.
All your daily needs can be met in the vicinity of the station:
Supermarkets, pharmacies, bakeries, restaurants, kindergartens, and schools. Humboldt-Gymnasium Eichwalde is nearby, as are numerous kindergartens and primary schools in the surrounding communities of Schulzendorf, Zeuthen, and Schmöckwitz.
For larger purchases and weekend outings, you can visit the A10 Center in Wildau (approximately 12 minutes by car) or the Waltersdorf commercial center with IKEA and many other specialty stores.
By car, you can reach:
• Berlin Alexanderplatz in about 35 minutes
• Kurfürstendamm in about 35 minutes
Here, on the southeastern edge of the capital, awaits a village-idyllic residential setting with high recreational value – quiet, green, and at the same time excellently connected. A place where you live in harmony with the seasons and look forward to coming home every day.
Features
The house was built to the latest energetic standards (EnEV 2024) and impresses with its well-thought-out room layout, high-quality materials, and modern building technology.
Ground Floor:
• Bright, spacious living and dining area with floor-to-ceiling windows
• Fireplace connection prepared
• Access to the terrace via a conservatory/bay window
• Spacious kitchen/dining area with room for individual design
• Guest shower room with high-quality sanitary fixtures
• Utility room with cutting-edge technology
Upper Floor:
• Two bedrooms/guest rooms, each with balcony access
• Additionally, a dressing room and an office/home office
• Large family bathroom with:
o Bathtub
o Large shower
o Double sink
o Hand-picked tiles & designer faucets
Technology & Energy:
• Construction year 2024 / Completion 2025
• Energy efficient according to the latest standards
• Photovoltaic system prepared (empty conduits available)
• Underfloor heating, modern heating technology, fiber optic connection
• All media connections installed according to current standards
Additional Documents
Complete building and planning documents for the property are available:
• Architectural drawings, construction documents, and a complete construction process file
• All invoices from installers and craftsmen
• Complete electrical and installation plans
• Detailed site plans and a description of the property’s features
This comprehensive documentation ensures that the entire development process of the house is transparently and traceably recorded.
Property characteristics
| Age | Over 5050 years |
|---|---|
| Layout | 5+1 |
| EPC | A - Extremely economical |
| Land space | 525 m² |
| Price per unit | €6,028 / m2 |
| Condition | New-build |
|---|---|
| Listing ID | 956243 |
| Usable area | 141 m² |
| Total floors | 1 |
What does this listing have to offer?
| Balcony | |
| MHD 6 minutes on foot |
| Parking | |
| Terrace |
What you will find nearby
Still looking for the right one?
Set up a watchdog. You will receive a summary of your customized offers 1 time a day by email. With the Premium profile, you have 5 watchdogs at your fingertips and when something comes up, they notify you immediately.





