
House for sale 5+1 • 200 m² without real estate, Brandenburg
, BrandenburgPublic transport 1 minute of walking • Parking • GarageExclusive Architect-Designed House with a High Standard
This charming single-family house in the sought-after location of Neuenhagen near Berlin offers you and your family an ideal home with plenty of space and comfort. The property spans three floors and impresses with a practical layout as well as a friendly and inviting atmosphere.
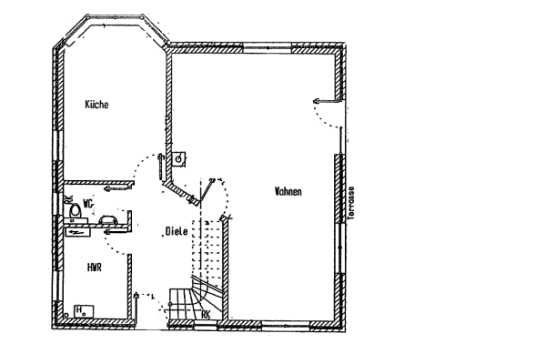
Ground Floor
– Entrance Area: A spacious and bright reception area that creates a positive first impression.
– Hallway: The hallway leads to all important rooms and includes a small storage room for additional storage space.
– Kitchen: The modern, well-equipped kitchen offers ample space for socializing while cooking and dining.
– Living Room: The large living room is equipped with its own TV and a stereo area, ideal for cozy evenings with family or friends.
– Bathroom: The practical bathroom on this floor is equipped with a shower.
Upper Floor:
– Bedroom: A spacious bedroom with access to its own balcony, inviting you to relax outdoors.
– Dressing Room: A stylish room with a dressing area and access to an additional balcony, ideal for fashion enthusiasts.
– Bathroom: The bathroom on the upper floor features a shower tray – perfect for a relaxing time.
– Additional Room: Another flexible room that can be used as a dressing room or children’s room.
Attic:
– Office: A quiet office with a view of the front garden, making it perfect for working from home while providing privacy.
– Room: An additional room that can be used in various ways, whether as a guest room or hobby space.
– WC: A practical small WC for extra comfort and functionality in the attic.
The attractive architect-designed house with high-quality equipment is located in the western part of the municipality of Neuenhagen on a paved street near the old Trainierbahn. It is about 2.8 km to the Hönow U-Bahn station (approximately a 10-minute bike ride) and about 1.7 km to the Hoppegarten S-Bahn station (approximately a 20-minute walk). Two daycare centers and an elementary school with a secondary school are within walking distance (900 meters).
The municipality of Neuenhagen is situated in close proximity to the eastern outskirts of Berlin. The Berlin A10 motorway (Berliner Autobahnring) and federal roads 1/5 are each accessible within a few kilometers. The new Tesla factory in Grünheide-Freienbrink can be reached in only 20 minutes by car. Neuenhagen is directly connected to the capital by S-Bahn. Berlin's center can be reached in about 40 minutes by S-Bahn or car. Bus connections are available within the town as well as to neighboring communities. With approximately 19,000 inhabitants and a growing trend, Neuenhagen is regarded as a garden city due to its relaxed building pattern with abundant greenery.
The “Neuenhagener Trainierbahn” nature reserve is located only a 5-minute walk from the house and is inviting for jogging and walking in nature, and is particularly popular with dog owners.
Daycare centers, several elementary schools, a career-oriented secondary school, and a high school can be reached on foot, by bicycle, or by bus. Various shopping, service, and medical facilities complete the amenities of this preferred residential area.
At the rear of the property, there is a practical shed that provides storage space for gardening tools or equipment.
– Heating and Energy Efficiency: The house is heated by a modern heat pump, ensuring an energy-efficient and cost-saving heating solution and optimal indoor climate – in addition, a large fireplace serves the dining and living area.
At the rear of the property, there is a practical shed that provides storage space for gardening tools or equipment.
Availability: – The house can be handed over around Q2/2026.
Property characteristics
Age | Over 5050 years |
---|---|
Layout | 5+1 |
Usable area | 200 m² |
Total floors | 2 |
Condition | Good |
---|---|
Listing ID | 952606 |
Land space | 686 m² |
Price per unit | €3,725 / m2 |
What does this listing have to offer?
Balcony | |
Garage | |
MHD 1 minute on foot |
Wheelchair accessible | |
Parking | |
Terrace |
What you will find nearby
Still looking for the right one?
Set up a watchdog. You will receive a summary of your customized offers 1 time a day by email. With the Premium profile, you have 5 watchdogs at your fingertips and when something comes up, they notify you immediately.