
House for sale 5+1 • 141 m² without real estate, Brandenburg
Object Description
Direct sale from the owner – no broker fee!
Welcome to your new oasis in Eichwalde near Berlin – a charming, green place by the Zeuthener See. Here you will find a modern single-family house (new build 2025) with a garden that perfectly combines tranquility, comfort, and individuality.
The garden is not yet completed and thus offers plenty of space for your own design ideas – whether natural, family-friendly, or low-maintenance.
Only a few minutes’ walk separate you from the water and everyday life:
• 3 minutes to the swimming area at Zeuthener See
• 1 minute to the nearest bus stop
A home for families, nature lovers, and water sports enthusiasts who are looking for something special.
________________________________________
Features
The house was built according to the latest energy regulations (EnEV 2024) and impresses with its well-thought-out layout, high-quality materials, and state-of-the-art home technology.
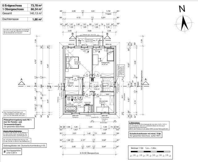
Ground Floor:
• Bright, spacious living and dining area with floor-to-ceiling windows
• Connection prepared for a wood-burning stove
• Access to the terrace via a bay window
• Spacious living kitchen with room for individual customization (the kitchen can be designed according to your own ideas)
• Guest shower room with high-quality sanitary fixtures
• Utility room with state-of-the-art technology
First Floor:
• Two bedroom/guest rooms, each with balcony access
• Additionally, a dressing room and an office/home office
• Large family bathroom with
o Bathtub
o Large shower
o Double sink
o Carefully selected tiles & branded fixtures
Technology & Energy:
• Built in 2024 / Completion in 2025
• Energy efficient according to the latest standards
• Photovoltaic system prepared (empty conduits available)
• Underfloor heating, modern heating technology, fiber-optic connection
• All media connections according to current technological standards
Location, Location, Location – just 3 minutes to Zeuthener See!
Start your day with the sunrise over the water – or enjoy the view directly from one of the balcony rooms in your new home.
Eichwalde is pure idyll!
Located on the outskirts of the capital and within the green belt, Eichwalde is an independent municipality in the Dahme-Spreewald district. Positioned at the southeastern city limit of Berlin, it offers the perfect combination of nature, relaxation, and proximity to the city.
The single-family house is situated on a quiet side street, only a 3-minute walk from Zeuthener See or the Dahme River. The area is characterized by well-maintained single-family houses on spacious plots in an exclusively residential area without through traffic – here you can enjoy peace, privacy, and a rural atmosphere.
In the summer months, the nearby swimming area is a popular destination for swimmers and water sports enthusiasts, while in the winter a soothing stillness takes over. Walks along Havellandstraße or by the banks of the Dahme invite you to slow down.
Along the water, you will find cozy excursion spots, cafés, and marinas – ideal for boat owners, sailors, or stand-up paddlers. Hardly any region around Berlin offers so many opportunities for leisure and nature experiences right at your doorstep.
Transport & Infrastructure:
Just a few meters from the house, the bus heading toward Zeuthen S-Bahn station and Königs Wusterhausen S-Bahn station stops. Despite its proximity to all transportation links, the house is pleasantly quiet on a side street.
Eichwalde S-Bahn station can be reached in about 7 minutes by bicycle or 5 minutes by car. From here, you can quickly and directly get to Berlin-Westend, Südkreuz, or Königs Wusterhausen via lines S8 and S46.
Everything for everyday needs is available in the vicinity of the station:
Supermarkets, pharmacies, bakeries, restaurants, daycare centers, and schools. The Humboldt Gymnasium Eichwalde is nearby, as are several kindergartens and primary schools in the surrounding municipalities of Schulzendorf, Zeuthen, and Schmöckwitz.
For larger purchases and weekend outings, the A10 Center in Wildau (about a 12-minute drive) or the Waltersdorf commercial center with IKEA and many other specialty stores offer ideal options.
By car you can reach:
Berlin Alexanderplatz in approximately 35 minutes
Kurfürstendamm in approximately 35 minutes
Here, on the southeastern edge of Berlin, awaits a village-idyllic residential setting with high recreational value – quiet, green, and yet excellently connected.
A place where you live in harmony with the seasons and look forward to coming home every day.
Features
The house was built according to the latest energy regulations (EnEV 2024) and impresses with its well-thought-out layout, high-quality materials, and state-of-the-art home technology.
Ground Floor:
• Bright, spacious living and dining area with floor-to-ceiling windows
• Connection prepared for a wood-burning stove
• Access to the terrace via a sunroom/bay window
• Spacious living kitchen with room for individual customization
• Guest shower room with high-quality sanitary fixtures
• Utility room with state-of-the-art technology
First Floor:
• Two bedroom/guest rooms, each with balcony access
• Additionally, a dressing room and an office/home office
• Large family bathroom with
o Bathtub
o Large shower
o Double sink
o Carefully selected tiles & branded fixtures
Technology & Energy:
• Built in 2024 / Completion in 2025
• Energy efficient according to the latest standards
• Photovoltaic system prepared (empty conduits available)
• Underfloor heating, modern heating technology, fiber-optic connection
• All media connections according to current technological standards
Additional / Documentation
All construction and planning documents for the property are fully available:
• Architectural drawings, construction documents, and a complete record of the construction process
• All invoices from installers and craftsmen
• Complete wiring and installation plans
• Detailed site plans and property equipment description
Thus, the entire construction process of the house is transparently and comprehensively documented.
Property characteristics
| Age | Over 5050 years |
|---|---|
| Layout | 5+1 |
| EPC | A - Extremely economical |
| Land space | 525 m² |
| Price per unit | €5,312 / m2 |
| Condition | New-build |
|---|---|
| Listing ID | 970791 |
| Usable area | 141 m² |
| Total floors | 1 |
What does this listing have to offer?
| Balcony | |
| MHD 6 minutes on foot |
| Parking | |
| Terrace |
What you will find nearby
Still looking for the right one?
Set up a watchdog. You will receive a summary of your customized offers 1 time a day by email. With the Premium profile, you have 5 watchdogs at your fingertips and when something comes up, they notify you immediately.









