
Flat for sale 3+1 • 96 m² without real estateReinbeker Redder 57a Hamburg Lohbrügge Hamburg 21031
Below is the English translation of the text:
At the street Reinbeker Redder 55, 55a, 57, 57a in Hamburg, Boberg district, the new residential neighborhood “Alte Gärtnerei” is emerging, comprising a total of 71 living units spread across four buildings and an underground garage with 64 parking spaces.
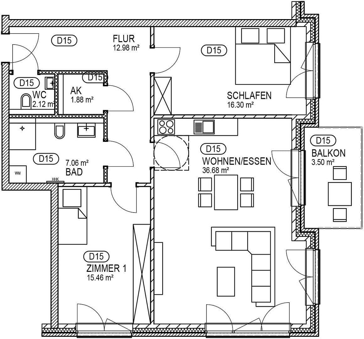
The offered 3-room apartment D15, located in the “Alte Gärtnerei” residential neighborhood, is situated on the first floor of Building D. The heart of the apartment is the spacious living and dining area of approximately 36.7 m². Here you enjoy plenty of space for cozy evenings, social gatherings, and personal design possibilities. From this area, you have direct access to the sunny balcony of about 7 m², inviting you to relax outdoors. Numerous thoughtful design features have been incorporated into the living spaces to make everyday living comfortable.
Upon entering your apartment, you find yourself in an inviting hallway that provides access to all rooms. Immediately to the right in the hallway is your guest WC, and further on you will find the storage room. Then comes your bathroom, featuring a curbless shower. Another room branching off from the hallway offers flexible use – ideal as a work, guest, or children’s room. The apartment is completed by your quiet bedroom, a pleasant retreat for rest and relaxation.
Compact, well planned, and equipped with everything you need to feel at home.
The sale is commission-free, directly from the developer and can be viewed immediately.
The completion of the development is expected in June 2026.
Nestled among allotment gardens as well as single- and multi-family houses, the “Alte Gärtnerei” neighborhood presents itself in an attractive manner. The location at Reinbeker Redder 57a in Hamburg Boberg is as central as it is livable.
Within walking distance, you can explore an attractive environment not far from the recreational area Boberger Dünen and the Boberger Ausgleichswiesen.
On the border of Hamburg and Schleswig-Holstein, your future tenants will experience, in addition to the central location between Hamburg City and Hamburg Bergedorf, a high level of leisure and recreation opportunities.
Short distances to nature or leisure activities such as golf, fitness, tennis, or the exclusive Vabali SPA complex give this location a very high recreational value.
Public playgrounds, nature walks, and nearby local amenities — all within walking distance — complete the “Alte Gärtnerei” location, making it extremely attractive for all generations.
This apartment also includes a storage room of approximately 7.7 m² in the basement.
Features:
- Efficiency house according to the former KfW 55 standard
- Elevator system from the underground garage to the residential floors
- Underfloor heating
- External roller shutters on all windows and patio doors
- Walls with painter’s fleece and white paint finish
- Bathrooms: tiled, wall-hung WC, towel radiator, curbless shower unit
- Design vinyl flooring in wood look in the living and sleeping areas
- Heat energy supplied by district heating
Further features will be provided with our building description.
Additional Services:
- Kitchens (self-installed) – We are happy to refer you to our long-time kitchen designer.
- Underground parking spaces can be additionally acquired from €35,000 each.
All visualizations, furnishings, furniture proposals, graphics, and dimensions are for illustration purposes only and are non-binding, without constituting any legal basis.
Quick Information:
State: Hamburg, District: Hamburg-Lohbrügge – Gemarkung Boberg, Neighborhood: Alte Gärtnerei – 71 residential units, Building: House B – 15 residential units, 1st bicycle storage – 65 parking spaces, 2nd bicycle storage – 113 parking spaces, Underground garage 64 – car parking spaces. Distances: Kindergarten: 1.2 km, Primary school: 1.6 km, Comprehensive school: 2.8 km, High school: 1.7 km, BG Clinic: 1.7 km, Bergedorf Clinic: 3.3 km, University Hamburg Bergedorf: 4.8 km, City Center Bergedorf: 4.5 km, Reinbek center: 5.4 km, Hamburg City Center: 14.5 km, Motorway A1 exit Hannover/Lübeck: 3.2 km, Motorway A24 exit Berlin: 8.2 km, Local convenience stores: 600 m, Public playground: 450 m.
The developer is the project development company Reinbeker Redder 55 mbH.
Implemented by np Projektentwicklung GmbH from Mölln with over 25 years of experience in apartment construction.
For inquiries regarding this exposé, please contact Mr. Robert Wolff of np Projektentwicklung GmbH from Mölln.
Imprint
Information according to § 5 TMG:
np Projektentwicklung GmbH
Hindenburgstraße 15e
23879 Mölln
Represented by:
Mr. Marcus Pape – Managing Director, np Projektentwicklung GmbH
Contact:
Phone: +49 (0) 4542 99 59 10
Fax: +49 (0) 4542 99 59 199
Email: info@np-projektentwicklung.de
Commercial Register:
Entry in the commercial register.
Register Court: Amtsgericht Lübeck
Registration number: HRB 18431 HL
Property characteristics
| Age | Over 5050 years |
|---|---|
| Layout | 3+1 |
| Listing ID | 1012700 |
| Usable area | 96 m² |
| Condition | New-build |
|---|---|
| Floor | 1. floor out of 3 |
| EPC | B - Very economical |
| Price per unit | €6,197.40 / m2 |
What does this listing have to offer?
| Balcony | |
| Garage | |
| MHD 3 minutes on foot |
| Basement | |
| Lift |
What you will find nearby
Still looking for the right one?
Set up a watchdog. You will receive a summary of your customized offers 1 time a day by email. With the Premium profile, you have 5 watchdogs at your fingertips and when something comes up, they notify you immediately.


























