
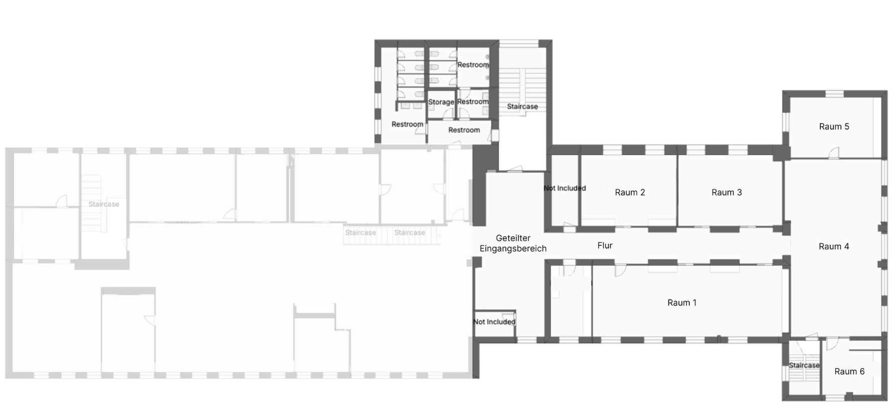
Office to rent • 415 m² without real estateLeopoldstraße 55 München Schwabing Bayern 80802
Leopoldstraße 55 München Schwabing Bayern 80802Public transport 2 minutes of walking • ParkingSpacious office spaces & new kitchen
Plenty of natural light thanks to large windows in every room.
The space has been comprehensively renovated recently, with a completely new kitchen installation.
Unfurnished – you can design the office according to your personal vision.
The office is located at Leopoldstraße 55, right at Münchner Freiheit – one of the most attractive locations in Munich. The connectivity is excellent: subway, bus, and tram stops are just a few steps away. Additionally, there are numerous restaurants, cafés, and shopping opportunities in the immediate vicinity.
Individual equipment and expansion solutions are possible by arrangement.
Flexible agreements regarding rental duration and price.
Property characteristics
| Available from | 20/04/2026 |
|---|---|
| Floor | Ground floor |
| Land office | 415 m² |
| Condition | After reconstruction |
|---|---|
| Listing ID | 1012344 |
| Price per unit | €0 / m2 |
What does this listing have to offer?
| Parking |
| MHD 2 minutes on foot |
What you will find nearby
Still looking for the right one?
Set up a watchdog. You will receive a summary of your customized offers 1 time a day by email. With the Premium profile, you have 5 watchdogs at your fingertips and when something comes up, they notify you immediately.









