
House for sale 5+1 • 229 m² without real estateOberhausen Dümpten Nordrhein-Westfalen 46045
In the heart of Oberhausen, an exceptional opportunity awaits you: A spacious plot of approximately 3,000 m² featuring a gutted flat-roof bungalow along with additional, approved building potential.
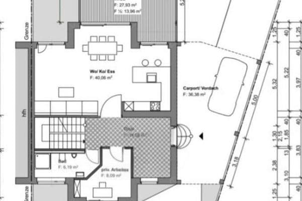
The existing building was formerly used as a residential house. In the meantime, permission for commercial use has been obtained – which, if needed, can of course be converted back to strictly residential use. The property offers ideal conditions for a modern, open design after renovation thanks to its generous floor area of approximately 229 m² and above-average ceiling height.
Special Highlights:
• Generous plot (approximately 3,000 m²) – a rarity in this area
• Additional construction already approved (a second building is possible)
• Flexible use: Residential, commercial, or a combination of both
• A multi-generational concept is achievable
• Already gutted – the perfect foundation for individual design
• District heating is available
• Three garages and secured access
• A quiet, green atmosphere – an oasis in the middle of the city
Usage Potential:
This property is ideally suited for:
• Private users seeking generous, single-level living
• Multi-generational living with plenty of space
• Combining living and working spaces
• Investors / project developers who wish to utilize the additional building potential
Condition:
The existing building requires renovation, but it has already been gutted. This provides you with maximum design freedom without the costs of demolition.
The property is centrally located in 46045 Oberhausen, with good access to the A40 motorway, while also offering a high level of privacy and tranquility. Shopping, schools, transport connections, and urban life are all within minutes.
Property characteristics
| Age | Over 5050 years |
|---|---|
| Layout | 5+1 |
| Usable area | 229 m² |
| Total floors | 1 |
| Condition | Before reconstruction |
|---|---|
| Listing ID | 1010356 |
| Land space | 3,000 m² |
| Price per unit | €3,449.78 / m2 |
What does this listing have to offer?
| Wheelchair accessible | |
| Garage | |
| Terrace |
| Basement | |
| MHD 2 minutes on foot |
What you will find nearby


House for saleMülheim an der Ruhr Mülheim an der Ruhr Nordrhein-Westfalen 45473- 6+1
- 149 m²
- 398 m²
€678,000

Still looking for the right one?
Set up a watchdog. You will receive a summary of your customized offers 1 time a day by email. With the Premium profile, you have 5 watchdogs at your fingertips and when something comes up, they notify you immediately.







