
- 2 bedroom
- 62 m²
This well-designed 2-room apartment with approximately 54.55 m² of living space is located in a quiet area in the center of Fürstenfeldbruck and offers an ideal opportunity for anyone looking to create their new home according to their own ideas. The apartment on the 2nd floor is available immediately and is not rented, making it suitable for both owner-occupiers and investors. Currently, the apartment is in a “Sleeping Beauty” state, waiting to shine anew with fresh ideas and some modernization. This situation offers plenty of potential for personalized design and value appreciation.
The covered south-facing balcony provides pleasant lighting and invites you to spend time outdoors.
In addition to its well-thought-out layout, the apartment impresses with numerous practical storage solutions: built-in wardrobes, a separate storage room, a lockable dry basement compartment, and a directly accessible attic all provide extra space for everyday items. An existing fitted kitchen is already part of the apartment.
In addition to the apartment, a lockable underground parking space (25,000 Euros) and an outdoor parking space (10,000 Euros) must be purchased.
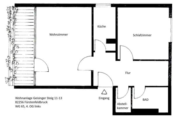
Floor plan layout:
• 1 living room with an open dining area
• 1 bedroom
• 1 bathroom
• 1 hallway
• 1 storage room
• 1 attic
The monthly service charge is 321 Euros, of which 45.83 Euros go towards the reserve.
Address: Holzstraße 28, 82256 Fürstenfeldbruck
The apartment is located in the attractive area of Fürstenfeldbruck, a highly sought-after residential town in the western Munich metropolitan area. The town combines a high quality of life, excellent infrastructure, and a nature-friendly environment. Notably, its central yet quiet location is a highlight. The center of Fürstenfeldbruck—with its numerous shops, cafés, restaurants, and retail opportunities—is within walking distance. Kindergartens, schools, daily convenience stores, doctors, and other service providers are also nearby.
The S-Bahn connection towards Munich is easily accessible and provides a quick link to the city center of Munich. Additionally, a well-developed public transport network with several bus lines offers flexible mobility within the town and to the surrounding communities.
Furthermore, Fürstenfeldbruck offers high recreational and leisure value. The proximity to the Amper River, numerous walking and cycling paths, green spaces, and a variety of sports and leisure opportunities—such as the AmperOase leisure center—ensure a high quality of life and make the area particularly attractive.
Features:
• Approximately 54.55 m² of living space
• Two well-designed rooms
• Not rented and available immediately
• South-facing balcony with a pleasant sun orientation
• Fitted kitchen present
• Bathroom with window and bathtub
• Separate storage room within the apartment (possibly usable as a home office)
• Practical built-in wardrobes
• Additional storage space in the attic
• Cable connection for TV and Internet available in addition to the copper line – fast Internet and streaming possible
• Lockable dry basement compartment
• Dedicated washing machine connection in the basement with a laundry room
• Bicycle parking space in the underground garage
Included in the offer:
• 1 lockable underground parking space (additional 25,000 Euros)
• 1 outdoor parking space (additional 10,000 Euros)
Both parking spaces are part of the sale and will be sold together with the apartment.
The sale is private and COMMISSION-FREE, so no commission is charged to the buyer. The apartment offers an excellent opportunity for buyers who recognize its potential and wish to design their new home according to their own ideas.
If you are interested, we look forward to your inquiry and will be happy to arrange a personal viewing appointment.
| Age | Over 5050 years |
|---|---|
| Condition | Good |
| Floor | 2. floor out of 2 |
| EPC | E - Wasteful |
| Price per unit | €5,836.36 / m2 |
| Available from | 27/04/2026 |
|---|---|
| Layout | 2 bedroom |
| Listing ID | 1009979 |
| Usable area | 55 m² |
| Balcony | |
| Garage | |
| MHD 1 minute on foot |
| Basement | |
| Parking |




Still looking for the right one?
Set up a watchdog. You will receive a summary of your customized offers 1 time a day by email. With the Premium profile, you have 5 watchdogs at your fingertips and when something comes up, they notify you immediately.