
Flat for sale 2+kk • 81 m² without real estateCannabichstr. 9 München Untergiesing Bayern 81543
This charming pre-war apartment is located on the third floor of a listed residential complex built in 1927 in a very quiet area on Cannabichstraße in the popular Munich district of Untergiesing.
The apartment offers approximately 81 m² of living space and impresses with classic pre-war features such as a ceiling height of around 2.97 m, historic doors dating back to the building’s construction, and original oak herringbone hardwood flooring that underscores its unique character.
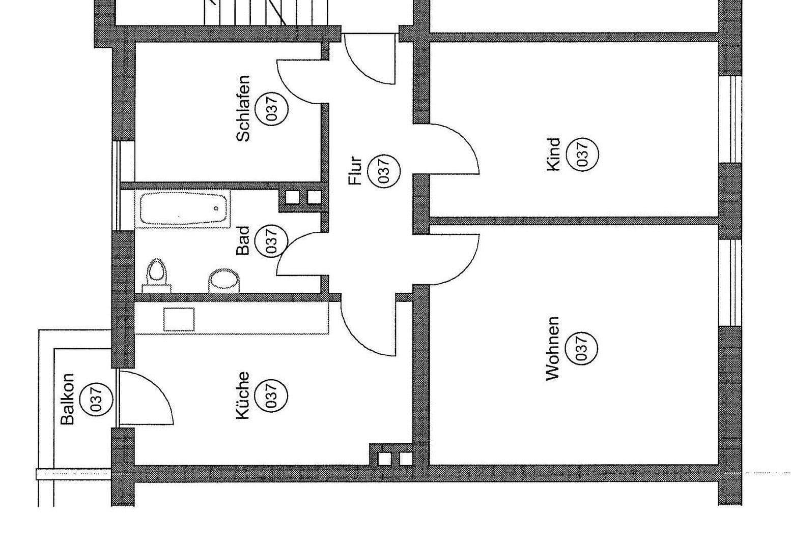
The floor plan comprises two spacious rooms, a living kitchen, a daylight bathroom, and an additional small room (approximately 9 m²), which is ideal for use as a study, guest room, or dressing room.
A balcony overlooking the quiet and large inner courtyard complements the apartment and provides a pleasant retreat right in the heart of the city.
The apartment is well maintained but in need of renovation, offering the chance to customize a classic Munich pre-war apartment to your own taste. As a listed property, it is especially attractive to buyers with a high tax burden (§§ 7i and 10f EStG).
The property also includes a parking space in the large inner courtyard of the residential complex.
Please note, there is no elevator.
The apartment is situated in a very quiet yet central location in the popular Munich district of Untergiesing.
A key advantage of this location is its proximity to the Isar, which is approximately a 12-minute walk away and ranks among the city’s most popular leisure and recreational areas.
By car, you can reach the middle ring road in the area of Candidplatz in about 4 minutes, and by bicycle, Marienplatz can be reached in a maximum of 15 minutes.
The Kolumbusplatz subway station is about a 5-minute walk away and offers excellent connections to Munich’s city center and many other districts via lines U1, U2, U7, and U8. In addition, bus lines 52 and 58 (or 68, the “Cityring”) run toward the city center and the main train station.
Shopping opportunities, restaurants, cafés, schools, and other daily facilities are located in the immediate vicinity.
This location therefore combines central accessibility, well-established infrastructure, and a high quality of life.
• Approx. 81 m² living space
• 2.5 rooms
• Classic pre-war ceiling height (approx. 2.97 m)
• Original oak herringbone hardwood flooring (listed building)
• Historic doors from the year of construction
• Balcony (approx. 5 m²)
• Daylight bathroom with bathtub and shower option
• Basement storage room (approx. 8 m²)
• Large communal inner courtyard
• Outdoor parking space in the inner courtyard
• Bicycle parking spaces in the inner courtyard
• Bicycle storage room in the building at Cannabichstraße 9
• Central heating
• Decentralized hot water supply via electric boiler and gas water heater
• Connection available for a fireplace
An energy certificate does not have to be issued for listed properties. In the Monument Atlas of the Free State of Bavaria, the apartment is listed as part of a so-called “large residential area” under the reference number D-1-62-000-5344.
The monthly homeowners’ fee for the apartment was/has been increased from €270 to €630 in the years 2025 and 2026 due to an upcoming renovation of the sewage connections; the additional funds collected by the condominium are exclusively allocated to the reserve fund for the entire complex. This increase is temporary and solely serves to save up for financing this measure. This saving phase is expected to end no later than the year 2027.
Property characteristics
| Age | Over 5050 years |
|---|---|
| Condition | Before reconstruction |
| Floor | 3. floor out of 5 |
| Usable area | 81 m² |
| Available from | 05/04/2026 |
|---|---|
| Layout | 2+kk |
| Listing ID | 1009065 |
| Price per unit | €8,605 / m2 |
What does this listing have to offer?
| Balcony | |
| Parking |
| Basement | |
| MHD 3 minutes on foot |
What you will find nearby
Still looking for the right one?
Set up a watchdog. You will receive a summary of your customized offers 1 time a day by email. With the Premium profile, you have 5 watchdogs at your fingertips and when something comes up, they notify you immediately.




























