
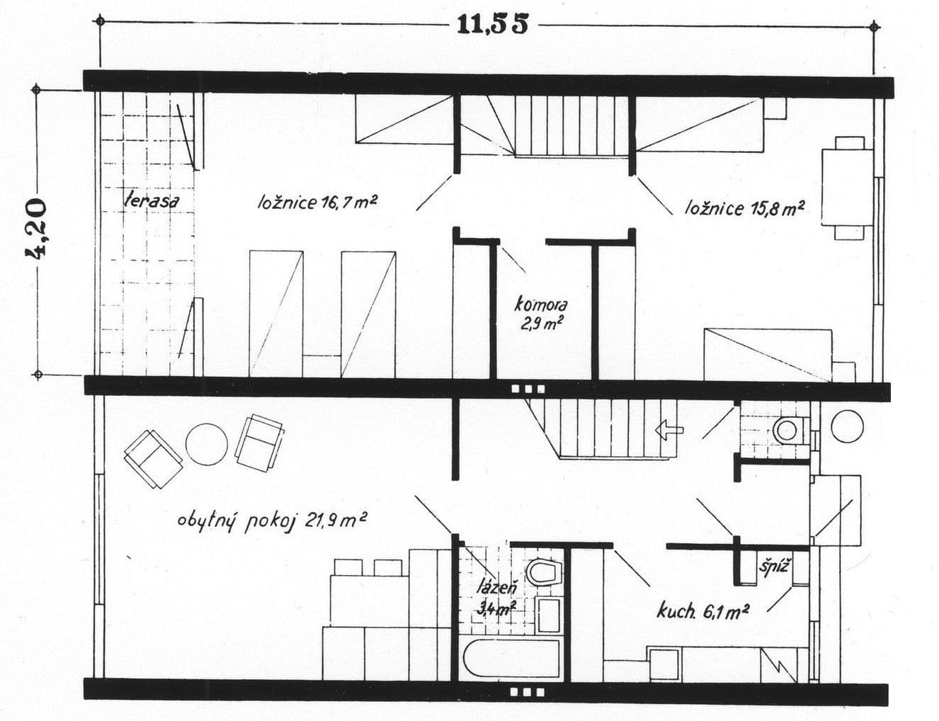
Flat to rent 3+1 • 91 m² without real estateSolidarity, Prague - Strašnice
Interested?
Communicate all private owners and save CZK 36,000 on commissions.
**Bydlení, kde se ráno probouzíte do zeleně a večer usínáte v naprostém klidu 🌿**
Hledáte místo, kde si opravdu odpočinete od ruchu města, ale přitom budete mít metro i vše potřebné na dosah? Tento byt v řadovém rodinném domku nabízí přesně takovou kombinaci – klid, zeleň a příjemnou komunitní atmosféru.
🏡 **Proč si toto bydlení zamilujete**
* výjimečně klidné prostředí ideální pro pohodové bydlení i kvalitní spánek
* přátelská sousedská atmosféra a příjemný komunitní život
* možnost parkování přímo před domem (na Solidaritě opravdu vzácné)
* park a zeleň přímo před domem – ideální na procházky i relax
* dvě zahrádky – jedna před domem na ranní kávu, druhá za domem pro drobné zahrádkaření
⚙️ **Vybavení a stav**
* nový plynový kondenzační kotel Protherm s dálkovým ovládáním přes aplikaci (2025)
* krásné parkety, nové malby a lakování (2025)
* vysokorychlostní optický internet 1000 Mbit/s – ideální pro práci z domova i zábavu
🛍️ **Skvělá dostupnost a občanská vybavenost**
* obchody v docházkové vzdálenosti (Albert, Billa)
* v okolí škola, školka, divadlo i restaurace
* tramvajová zastávka Zborov jen 3 minuty pěšky
* stanice metra Strašnická přibližně 15 minut chůze
✨ Místo, kde můžete žít klidně, pohodlně a přitom zůstat v dosahu města.
Property characteristics
| Available from | 01/04/2026 |
|---|---|
| Building construction | Brick |
| Fully furnished | Fully furnished |
| Heating | Gas boiler |
| Location | Quiet area |
| Price per unit | CZK 396 / m2 |
| Condition | Very good |
|---|---|
| Layout | 3+1 |
| Floor | 2. floor out of 2 |
| Listing ID | 1007620 |
| Usable area | 91 m² |
What does this listing have to offer?
| Front garden 32 m² | |
| Parking |
| Loggia balcony: 6.3 m² | |
| MHD 2 minutes on foot |
What you will find nearby
Interested?
Communicate all private owners and save CZK 36,000 on commissions.
Still looking for the right one?
Set up a watchdog. You will receive a summary of your customized offers 1 time a day by email. With the Premium profile, you have 5 watchdogs at your fingertips and when something comes up, they notify you immediately.





















