
Flat to rent 3+kk • 94 m² without real estateV Třešňovce, Prague - Hrdlořezy
Interested?
Communicate all private owners and save CZK 36,000 on commissions.
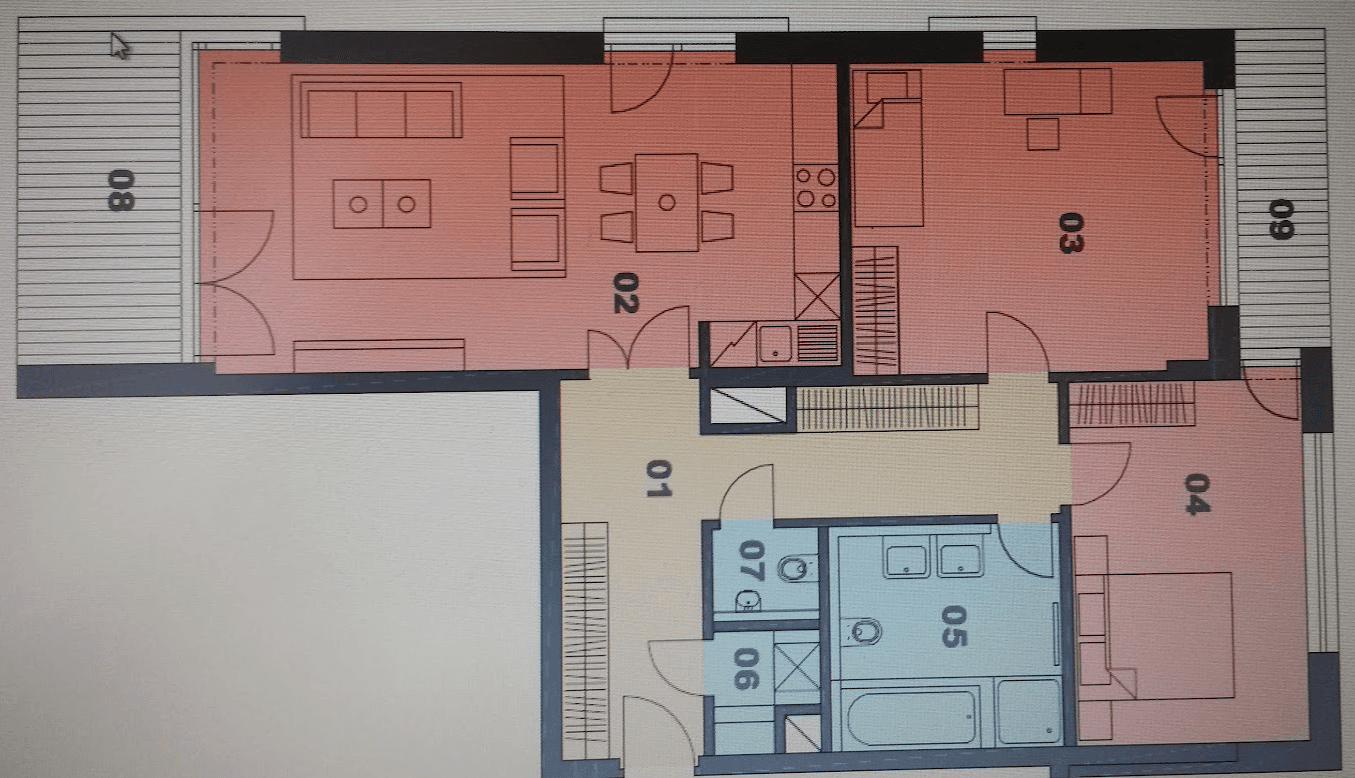
Nabízím k pronájmu krásný byt 3+kk o rozloze 94 m², situovaný ve velmi dobrém stavu v cihlové budově. Tento prostorný byt se nachází v 2. podlaží z celkových 5, přičemž jeho dispozice umožňuje příjemné a praktické uspořádání jednotlivých místností. V bytě jsou 2 velké vestavěné skříně v chodbě a jedna v ložnici. Částečně vybavený interiér nabízí možnost rychlého nastěhování a zároveň si můžete doplnit vybavení dle vlastních představ a potřeb.
Byt disponuje 2x také balkónem o ploše 8 a 7 m², ideálním pro relaxaci i posezení. Pro ty, kteří ocení další úložné prostory, je k dispozici sklep o rozloze 2,5 m². V domě je zajištěn výtah, což výrazně usnadňuje každodenní pohyb po budově. K nemovitosti rovněž patří garážové stání, která poskytuje bezpečné místo pro vaše vozidlo.
Celkově jedná se o komfortní bydlení s promyšleným rozložením, jež splní očekávání náročnějších zájemců.
V případě zájmu mne prosím kontaktujte skrz zprávy / komunikační platformu a domluvíme si prohlídku. Prosím napište něco o sobě, kdo bude v bytě bydlet, jaká je vaše profese atd. Pouze přímý zájemce
Property characteristics
| Available from | 01/07/2026 |
|---|---|
| Building construction | Brick |
| Fully furnished | Partly |
| Listing ID | 1006856 |
| Usable area | 94 m² |
| Condition | Very good |
|---|---|
| Layout | 3+kk |
| Floor | 2. floor out of 5 |
| Location | Quiet area |
| Price per unit | CZK 383 / m2 |
What does this listing have to offer?
| Balcony: 15 m² | |
| Garage |
| Basement: 2.5 m² | |
| Lift |
What you will find nearby
Interested?
Communicate all private owners and save CZK 36,000 on commissions.



Flat to rentPod Zahrady, Přezletice - Přezletice, Středočeský Region- 3+kk
- 96 m²
CZK 32,900 + CZK 6,000CZK 34,900
Save CZK 2,000

Still looking for the right one?
Set up a watchdog. You will receive a summary of your customized offers 1 time a day by email. With the Premium profile, you have 5 watchdogs at your fingertips and when something comes up, they notify you immediately.








