
House for sale • 170 m² without real estate, Baden-Württemberg
, Baden-WürttembergPublic transport less than a minute of walking • Parking • GarageWelcome to your new home!
Offered is a single-family house with a subsidiary apartment, a double garage, and a large garden located in Emmendingen – Mundingen in a very quiet residential area with a magnificent view.
The house, built in 1973, has three floors. It features a total living area of 170 sqm and stands on a plot measuring 952 sqm.
The main apartment covers an area of 105 sqm. In addition to the kitchen, the bright bathroom with WC, shower, bathtub, and 2 washbasins, a separate WC, and the living room, there are two additional rooms.
From the balcony, which is accessible from the living room, you can fully enjoy your morning coffee and the magnificent view.
The apartment also includes a covered terrace that is not visible from the street.
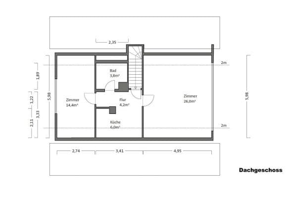
The upper floor is reached via a spiral staircase. There you will find an additional room with 25 sqm of floor area, which is not counted as living space.
Next to it is an extra area where further children’s rooms can be created or used as storage.
In the basement, there is the approximately 65 sqm large subsidiary apartment with a kitchen, living room, bedroom, an additional small room, and the bright bathroom with WC and shower.
The subsidiary apartment has a separate entrance. You could rent it out or live in it yourself.
Additionally, there are two basement rooms, each with its own washing machine connection, as well as the boiler room for the gas heating system.
The property is in a wonderfully quiet location in a peaceful residential area. In just a few minutes, you can walk to the vineyards.
The nearest bus stop is about 100 m away.
In Mundingen, there is a kindergarten and an elementary school. All secondary schools are located in Emmendingen.
All daily necessities can be reached within a few minutes by car, and in some cases even on foot or by bike.
Freiburg city center is about 30 minutes away by car or public transport. Emmendingen center is only about 3 km away and if needed, you can reach the motorway in approximately 4 km.
Mundingen also has a train station from which you can easily travel towards Freiburg or Offenburg.
The district town of Emmendingen, with 28,000 inhabitants, is located north of Freiburg in the beautiful Black Forest.
The village, with approximately 2,000 inhabitants, is the largest district of Emmendingen. Viticulture has a very long tradition in Mundingen. It is set in a wonderful landscape and invites you to enjoy hikes and bike rides around Mundingen and in the Black Forest.
Distances:
100 m to the bus stop
500 m to the vineyards
1 km to shops for daily needs
1 km to the Teningen-Mundingen train station
3 km to Emmendingen city center / main train station
4 km to the A5 motorway connection
30 minutes to Freiburg city center / main train station
For the children:
700 m to kindergarten
300 m to elementary school
3 km to secondary schools (in Emmendingen via bus or bike)
- commission-free -
Broker inquiries are not desired!
Property characteristics
| Age | Over 5050 years |
|---|---|
| Condition | Good |
| EPC | D - Less economical |
| Land space | 952 m² |
| Price per unit | €4,059 / m2 |
| Available from | 14/03/2026 |
|---|---|
| Listing ID | 998801 |
| Usable area | 170 m² |
| Total floors | 3 |
What does this listing have to offer?
| Balcony | |
| Garage | |
| MHD 0 minutes on foot |
| Basement | |
| Parking | |
| Terrace |
What you will find nearby
Still looking for the right one?
Set up a watchdog. You will receive a summary of your customized offers 1 time a day by email. With the Premium profile, you have 5 watchdogs at your fingertips and when something comes up, they notify you immediately.
















