
House for sale • 250 m² without real estate, Baden-Württemberg
, Baden-WürttembergPublic transport 2 minutes of walking • Parking • GarageMulti-family house with 3 residential units – completely refurbished in 2020/21 – with barn & garages
For sale is a beautiful, light-filled multi-family house with a total of 3 residential units. The entire building was extensively refurbished in 2020/2021 and offers plenty of space as well as numerous usage possibilities – ideal for families, multi-generational living, or as an investment.
Renovation works 2020/21:
• Roof completely renewed and expanded
• New windows
• Exterior facade renewed and insulated
• Electrical and water installations replaced
Apartment layout:
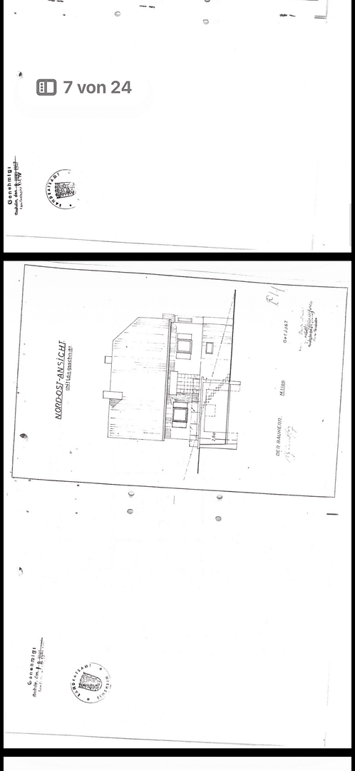
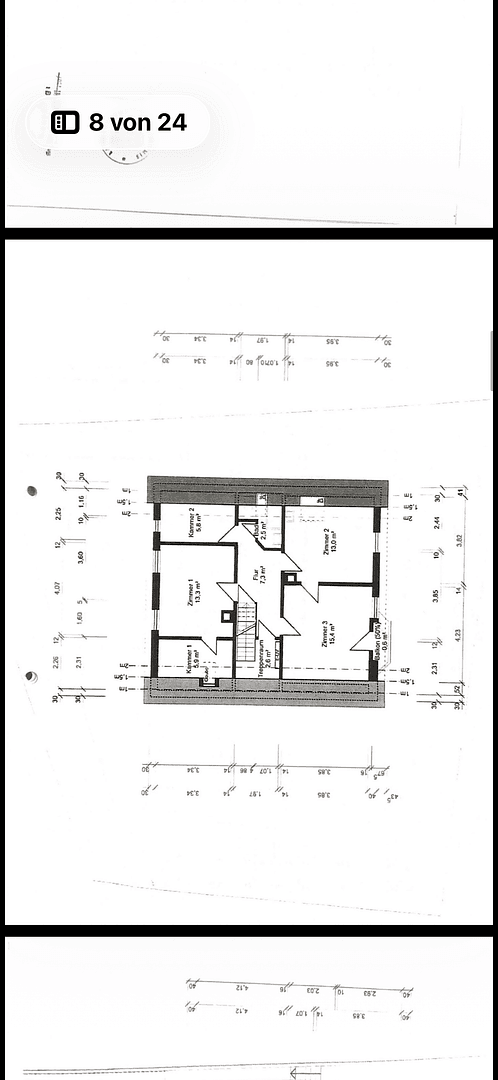
• Ground floor: 2-room apartment, approx. 65 m², fully tiled and very spacious
• Upper floor: 3-room apartment with access to a terrace, approx. 90 m²
• Attic (duplex): 5.5-room apartment on two levels, approx. 130 m²
All apartments are bright, welcoming, and well designed.
The house is overall in good condition, with some parts in need of renovation (see pictures).
Outdoor area:
On the property, there is a barn that can be used in various ways or, if needed, demolished to create additional space.
In addition, there are 2 garages with doors and 3 extra parking spaces available – providing space for up to 5 vehicles in total.
Conclusion:
A spacious, modernized house with a solid structure, plenty of light, and potential – perfect for families or as an investment property!
Partially in need of renovation and all information is provided with reservations and without any guarantee. Individual offers and discussions will be arranged in person on site.
For further pictures or if you are interested, please get in touch.
Yours sincerely,
M. Keskin
The house is located in the idyllic district of Obergimpern, which belongs to the town of Bad Rappenau in the Heilbronn district. Obergimpern combines peaceful, rural living with an excellent connection to the surrounding area. All important facilities – from shopping options and medical care to schools and leisure and recreation possibilities – are conveniently accessible in Bad Rappenau and the surrounding towns. The area offers everything your heart desires: a natural setting, a pleasant neighborhood, and at the same time, very good infrastructure.
12 minutes from Sinsheim
12 minutes from Heilbronn
Property characteristics
| Age | Over 5050 years |
|---|---|
| Listing ID | 998167 |
| Usable area | 250 m² |
| Total floors | 4 |
| Condition | Before reconstruction |
|---|---|
| EPC | C - Economical |
| Land space | 406 m² |
| Price per unit | €2,192 / m2 |
What does this listing have to offer?
| Balcony | |
| Basement | |
| Parking | |
| Terrace |
| Wheelchair accessible | |
| Garage | |
| MHD 2 minutes on foot |
What you will find nearby
Still looking for the right one?
Set up a watchdog. You will receive a summary of your customized offers 1 time a day by email. With the Premium profile, you have 5 watchdogs at your fingertips and when something comes up, they notify you immediately.




















































