
Flat for sale 4+1 • 102 m² without real estate, Baden-Württemberg
, Baden-WürttembergPublic transport 1 minute of walking • Lift • GarageThis attractive maisonette apartment on the 2nd/3rd floor impresses with its interior design. The four inviting rooms include a bathroom as well as a separate guest toilet.
The apartment is conveniently accessible by elevator.
The property is situated in a building constructed in 2000 and is heated by central heating. The monthly condominium fee currently amounts to €490.
One special feature is not only a balcony, but also a garden at the house that you can use for relaxation.
An included item in the interior design is a fitted kitchen available for purchase separately.
In addition, the apartment comes with a basement storage room with practical storage space and an underground parking space (purchase price €20,000). This means no more long searches for a parking spot.
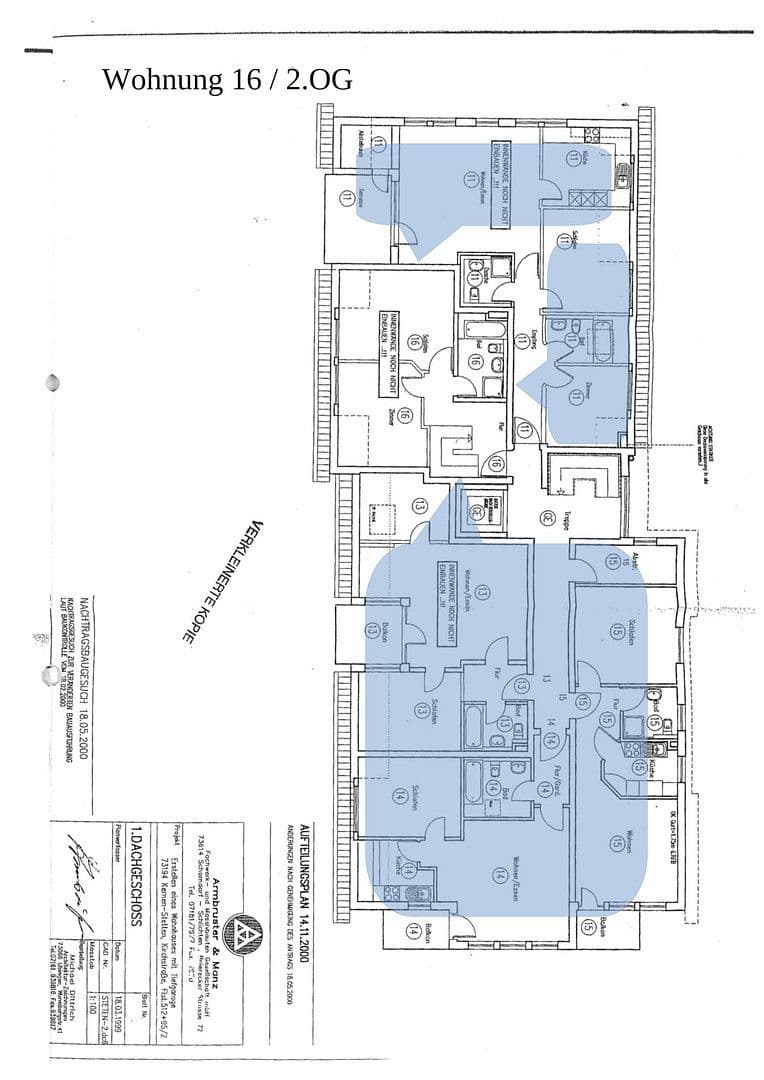
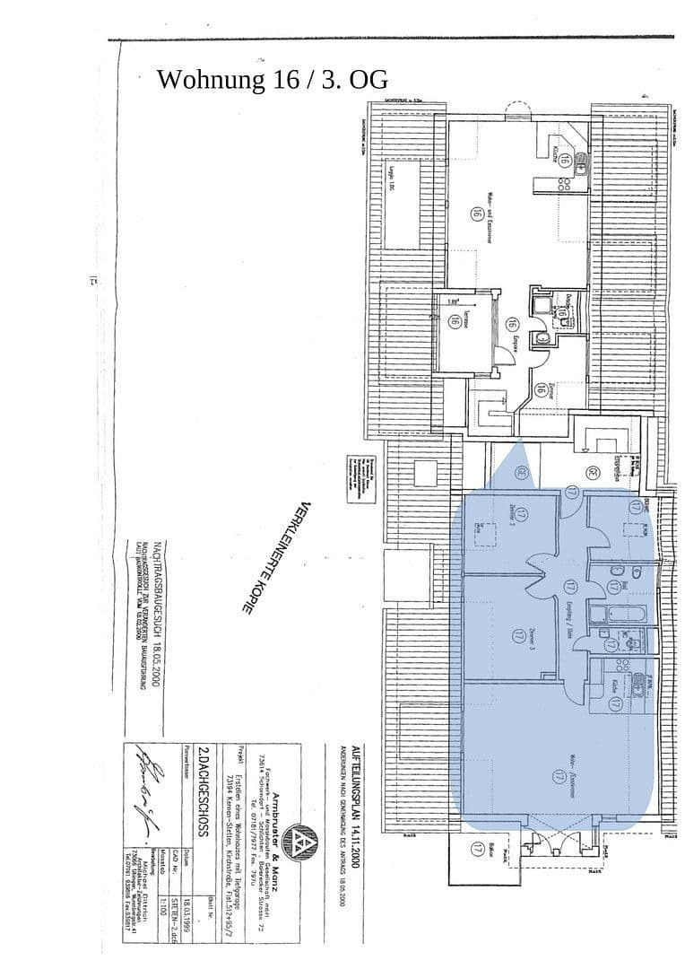
The property is centrally located in the town opposite the church. The apartment is located on the 2nd/3rd floor of a well-maintained 12-family house, built in 2000, and is easily accessible by an elevator.
The apartment’s balcony is south-facing and features an electric awning.
The apartment offers a very pleasant living atmosphere. It is bright, cheerful, and inviting.
The layout of the apartment is very good. The upper floor comprises two bedrooms, a bathroom (with double washbasin, shower cabin, and toilet) and a cloakroom next to the entrance.
The attic floor features, in addition to the living/dining room and the kitchen, an office/children’s room and a toilet with a washbasin and built-in furniture for a washing machine and dryer.
Additionally, the apartment includes a locked basement storage room on the lower level (approx. 7 m²).
The apartment is located in Kernen in the beautiful Remstal, in the town center with very good infrastructure.
Good transportation connections via B29 to Stuttgart and Schorndorf. The S-Bahn (S2 Stuttgart – Schorndorf) is approximately 2.5 km away, and several bus lines (with connections to Rommelshausen/Waiblingen, Esslingen, or Fellbach to Stuttgart’s subway network) are within walking distance.
Kindergartens and an elementary school are within walking distance. Nearby, there is a supermarket, restaurants, bakeries, doctors, a fitness studio, and a green park area.
The surrounding area with vineyards, the Schurwald forest, and orchards in the immediate vicinity offers high leisure and recreational value.
Good and well-maintained equipment:
• Living and dining area tiled
• Bedrooms with parquet or laminate flooring
• Office/children’s room with cork flooring
• Kitchen, bathrooms, and toilet tiled
Lower Living Level:
• Two bedrooms
• Cloakroom
• Bathroom with double washbasin/shower/toilet
Upper Living Level:
• Living/dining area and kitchen
• Office/children’s room
• Mezzanine above the internal staircase
• Guest toilet with washbasin and built-in furniture for washing machine and dryer
• Balcony with awning
The fitted kitchen and various furnishings, including washbasin cabinets, are to be purchased (approx. €10,000).
Basement storage room of approx. 7 m²
- Gas central heating
- Shared laundry room, bicycle and waste disposal room
- Pavilion with seating area in the communal garden
An energy consumption certificate is available. The final energy consumption is 84 kWh/(m²·a). The main energy source for heating is gas.
Monthly condominium fee €490, WEG reserves approx. €92,000.
Underground parking space €20,000.
Property characteristics
| Age | Over 5050 years |
|---|---|
| Condition | Good |
| Floor | 2. floor out of 2 |
| EPC | C - Economical |
| Price per unit | €4,250 / m2 |
| Available from | 10/03/2026 |
|---|---|
| Layout | 4+1 |
| Listing ID | 997807 |
| Usable area | 102 m² |
What does this listing have to offer?
| Balcony | |
| Garage | |
| MHD 1 minute on foot |
| Basement | |
| Lift |
What you will find nearby
Still looking for the right one?
Set up a watchdog. You will receive a summary of your customized offers 1 time a day by email. With the Premium profile, you have 5 watchdogs at your fingertips and when something comes up, they notify you immediately.

























