
Flat for sale 3+1 • 103 m² without real estateObinger Str. 1A Eggstätt Eggstätt Bayern 83125
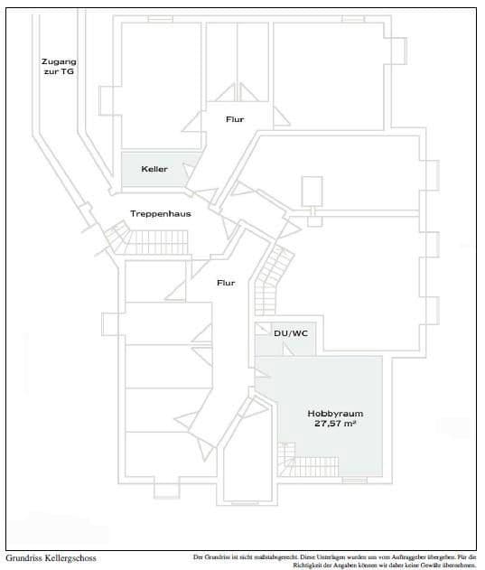
This charming apartment is located in an extremely well-maintained multi-family building in a quiet area. The exclusive impression continues inside the 8-unit building with an underground garage. On the ground floor, the apartment is divided into two bedrooms, a bathroom, a guest WC, a hallway and corridor, as well as a separate kitchen and a spacious living-dining area. To the south and west, a private garden and terrace enclose the rooms. White louvered windows, white interior doors, and the apartment’s own white lacquered wooden staircase leading to the basement emphasize the bright, light-filled character of the apartment. The finished area in the basement of approximately 28 m² is included in the living area specification with 14 m². This space has a clear height of 2.36 m and a window with a bevel in a masonry opening of approximately 1.34 m². From the living area, large French doors open onto a park-like garden. An outdoor parking space and two underground parking spaces (each valued at EUR 25,000) are already included in the purchase price. The apartment is sold as a complete package including the parking spaces.
Five kilometers northwest of Chiemsee, nestled between gentle hills and numerous lakes, lies the town of Eggstätt. The Eggstätter-Hemhofer lake district is the pride of Eggstätt, as it belongs to Bavaria’s oldest nature reserve (1939). More than 100 years ago, the first "Sommerfrischler" discovered the charm of the place for themselves.
Dreamlike hiking and cycling trails lead through an enchanting and unique lakescape. Many cultural and entertainment offerings in and around Eggstätt invite you to take part: in the House of the Guest or at other venues, a varied program takes place throughout the year—from the Hoagascht festivities to local heritage and folklore evenings, from chamber concerts to street concerts, from peasant theater to forest festivals. For active leisure, Chiemsee and the Eggstätter lake district offer optimal swimming and sailing opportunities. Hiking, climbing, cycling, and all kinds of winter sports are available in the nearby Chiemgauer Alps. There are also provisions nearby for golf enthusiasts and horse lovers. Bad Endorf (8 km away), Prien am Chiemsee (10 km away), Rosenheim, and Traunstein (each 23 km away) are in the vicinity. In Bad Endorf, you will find rail connections in both directions—toward Munich as well as towards Salzburg. Additionally, the town offers shopping opportunities, kindergartens, and a primary school. All secondary schools can be found in Prien am Chiemsee, Traunstein, and Rosenheim. Salzburg Airport can be reached in about 40 minutes, and Munich Airport in about 90 minutes. Eggstätt is a charming town with Bavarian character and genuine hospitality.
In recent years, the following renovations have been carried out in the apartment: oak parquet flooring in the living room and hallway, and a new high-quality fitted kitchen (included in the purchase price).
Property characteristics
| Age | Over 5050 years |
|---|---|
| Layout | 3+1 |
| Usable area | 103 m² |
| Condition | Good |
|---|---|
| Listing ID | 991560 |
| Price per unit | €5,388 / m2 |
What does this listing have to offer?
| Basement | |
| Parking | |
| Terrace |
| Garage | |
| MHD 2 minutes on foot |
What you will find nearby
Still looking for the right one?
Set up a watchdog. You will receive a summary of your customized offers 1 time a day by email. With the Premium profile, you have 5 watchdogs at your fingertips and when something comes up, they notify you immediately.













