
Flat for sale 3+kk • 124 m² without real estateKoblberg 3 Soyen Koblberg Bayern 83564
We are selling our well-maintained 3.5-room apartment in a quiet location on the outskirts of Soyen, with close proximity to Wasserburg am Inn.
The apartment is particularly suitable for couples, young families, and people who appreciate a peaceful living environment and excellent home office possibilities.
This apartment has been a very pleasant home for us for years – especially because of its tranquility, generous space, and flexible room layout.
It is located on the first floor of a small multi-unit building with only three residential units, in a quiet cul-de-sac without through traffic. Although its official address is Soyen, it is actually located closer to Wasserburg am Inn than to the center of Soyen.
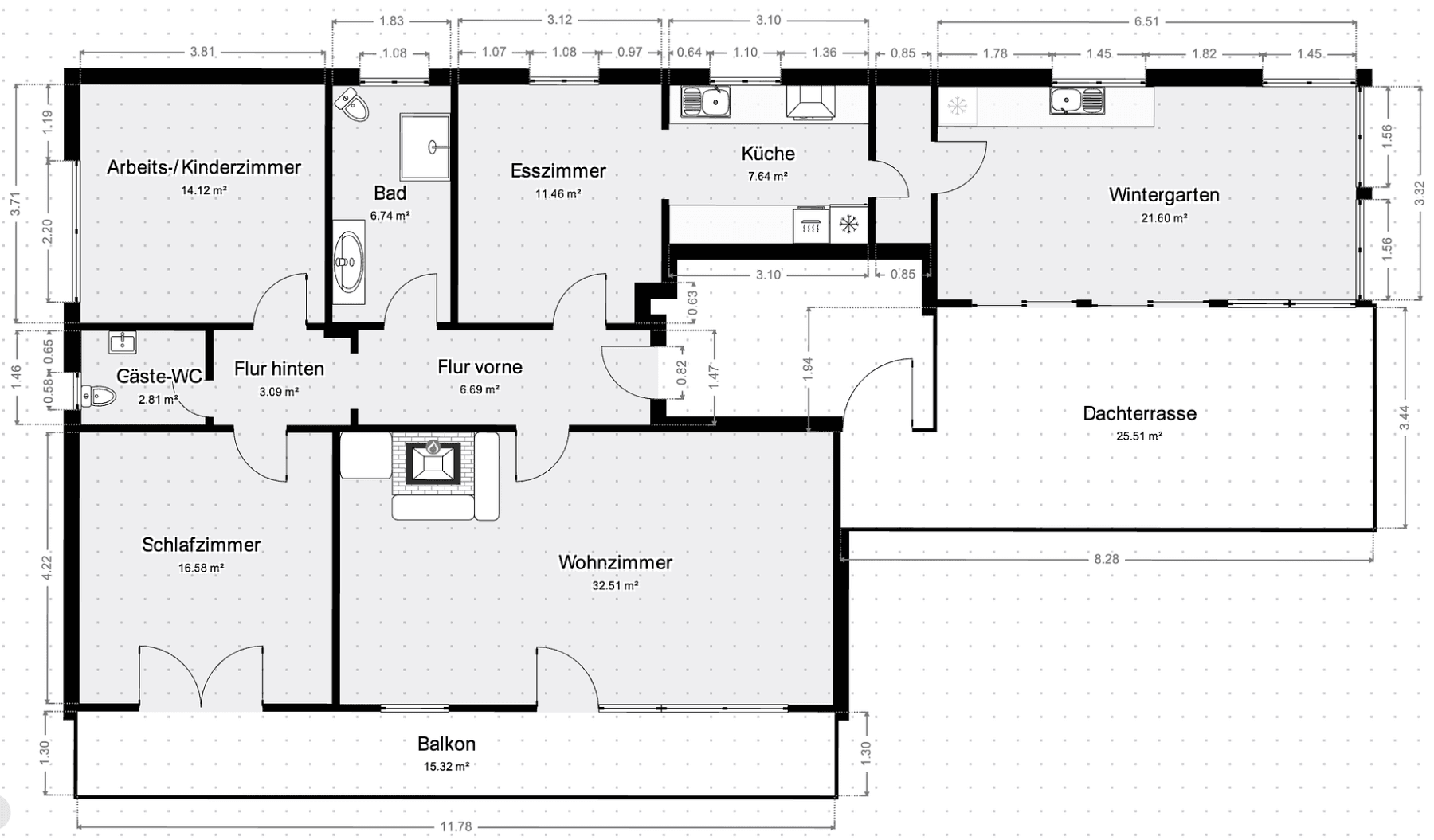
The approximate 124 m² of living space is spread over 3.5 rooms:
• A spacious living room with access to the balcony
• A bedroom, also with access to the balcony
• A fully functional study, ideal for a home office
• A dining room that opens directly onto the kitchen and is therefore counted as a half room
The conservatory is unheated and is not included in the living area. However, due to its good insulation, it can be used year-round. From here, there is direct access to the large roof terrace, which belongs exclusively to the apartment. Additionally, there is a lockable access to the roof terrace via the staircase, which proves very practical in everyday life.
The apartment is well-maintained and ready for immediate occupancy.
The bathroom features a shower, and there is also a separate guest toilet. The fitted kitchen is functional and part of the apartment. In winter, the tiled stove in the living room provides pleasant warmth.
The apartment also includes two spacious basement storage rooms, a garage with a wallbox for electric vehicles, as well as an additional outdoor parking space. On the roof, there is a photovoltaic system that is jointly used by the building community. A fiber optic connection is also available in the building.
The apartment is located in a quiet residential area on the outskirts of Soyen, without through traffic, and is closer to Wasserburg am Inn than to the center of Soyen. The environment is quiet and pleasantly secluded, without being isolated.
Wasserburg am Inn, with its shopping facilities, doctors, schools, restaurants, and train station, can be reached in a short time. Facilities for daily needs are available in both the direction of Soyen and Wasserburg. The location is particularly suitable for people who want to live in peace yet desire good connections.
Property characteristics
| Age | Over 5050 years |
|---|---|
| Condition | Good |
| Floor | 1. floor out of 2 |
| EPC | D - Less economical |
| Price per unit | €4,347 / m2 |
| Available from | 15/02/2026 |
|---|---|
| Layout | 3+kk |
| Listing ID | 990719 |
| Usable area | 124 m² |
What does this listing have to offer?
| Balcony | |
| Garage | |
| MHD 1 minute on foot |
| Basement | |
| Parking |
What you will find nearby
Still looking for the right one?
Set up a watchdog. You will receive a summary of your customized offers 1 time a day by email. With the Premium profile, you have 5 watchdogs at your fingertips and when something comes up, they notify you immediately.




























